Sheen's says ..
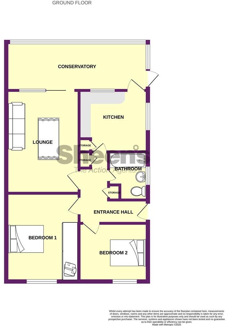
** REFURBISHMENT REQUIRED ** Sheen's Estate Agents are pleased to offer for sale this TWO BEDROOM SEMI-DETACHED BUNGALOW located in Lime Close of Clacton-on-Sea. The property is in need of REFURBISHMENT which presents a fantastic opportunity for you to unleash your creativity and design a home ta...
Property Oracle says ..
The property is a semi-detached bungalow located in Clacton-on-Sea, Essex. The asking price is £200,000. The average house price in the area is significantly higher at £340,786, and the average price per square foot is £380. However, the provided square footage for this property is 0.00 sqft, making a direct price per sqft comparison impossible. The property appears to be in need of some modernisation. The kitchen and bathroom are dated, and the decor throughout suggests that an update would be beneficial. The garden is present, but it could benefit from some landscaping. The property benefits from a garage. While the location is close to several schools, the Ofsted ratings for some are not available, making a definitive statement on the quality of local schooling difficult. The proximity to Clacton-on-Sea train station is a positive aspect, offering convenient access to transport links. Considering the property’s condition, the relatively small size (if the 0.00 sqft is an error), and the need for modernisation, the list price of £200,000 may appear reasonable compared to some nearby properties, but further investigation into the actual square footage is needed for a more accurate assessment of value. The presence of a garden is a positive feature, and the proximity to transport links and schools is also beneficial.
Therefore, we give this property 6 / 10. *Disclaimer: This is our option and does constitute a recommendation or financial advice. Do your own research. *
- Price
- 6
- Condition
- 5
- Location
- 7
- Land
- 6
- Bedrooms
- 2
- Bathrooms
- 1
- Sqft (est)
- 80.00
The heatmap indicates the level of crime in the area. The color of the heatmap indicates the crime severity and recency.
Metrics Year-on-Year
- Average area value
- 350,323.00 £Decreased by 1.18 %
- Est sale value
- 34,480.00 £Increased by 20.73 %
- Average area rental value
- 1,334.00 £/moDecreased by 2.49 %
- Est letting value
- 80.00 £/moUnchanged by 0.00 %
- Est rental Yield
- 4.57 %Decreased by 1.30 %
- Crime Rate
- 7.00 %Unchanged by 0.00 %
Agent Activity
Sheen's marked this listing as sold.
Sheen's created the listing.
Nearby Schools
| Name | Type | Ofsted | Distance |
|---|---|---|---|
| Oakwood Infant And Nursery School | Community School | Good | 0.66 KM |
| Ten1 Sydney House Family Hub | Children's Centre | 0.70 KM | |
| St Clare'S Catholic Primary School | Academy Sponsor Led | Good | 0.73 KM |
| Alton Park Junior School | Academy Converter | 0.90 KM | |
| Ravens Academy | Academy Sponsor Led | Special Measures | 0.92 KM |
Images
Nearby Streets
| Name | Average Price | Average Sqft | Distance |
|---|---|---|---|
| Laburnum Close | £ 270,000 | 0 | 0.00 KM |
| Birch Close | £ 274,998 | 0 | 0.00 KM |
| Queen's Road | £ 340,000 | 0 | 0.00 KM |
| Link Road | £ 0 | 0 | 0.00 KM |
| Estuary Crescent | £ 0 | 0 | 0.00 KM |
Nearby Transport
| Name | NLC | TLC | Distance |
|---|---|---|---|
| Clacton-On-Sea | 6850 | CLT | 2.22 KM |
| Thorpe-Le-Soken | 6857 | TLS | 6.74 KM |
| Weeley | 6859 | WEE | 6.94 KM |
Nearby Listings
| Address | Price | Type | Score | Distance |
|---|---|---|---|---|
| Lime Close, Clacton-On-Sea | £ 200,000 | BUY | 6 / 10 | 0.00 KM |
| Lake Avenue, Clacton-On-Sea | £ 250,000 | BUY | 6 / 10 | 0.11 KM |
| Coopers Lane, Clacton-on-Sea | £ 195,000 | BUY | 6 / 10 | 0.14 KM |
| Lake Walk, Clacton on Sea | £ 160,000 | BUY | 6 / 10 | 0.14 KM |
| Coopers Lane, Clacton on Sea | £ 260,000 | BUY | 6 / 10 | 0.16 KM |
Nearby Properties
| Address | Price | Distance |
|---|---|---|
| 10 Laburnum Close | £ 137,500 | 0.05 KM |
| 7 Laburnum Close | £ 268,000 | 0.05 KM |
| 1 Laburnum Close | £ 141,500 | 0.05 KM |
| 8 Laburnum Close | £ 117,500 | 0.05 KM |
| 12 Laburnum Close | £ 155,500 | 0.05 KM |