Dale Walk, Dartford, DA2 6JA
By James Gorey Estate Agents
£ 410,000
Reviews
3 out of 5 stars
James Gorey Estate Agents says ..
Chain Free | Requires Modernisation | Popular Fleet Estate | Downstairs Shower Room | Probate has been Granted | Garage-En-Bloc | Conservatory | EPC: D (58) & Council tax: D
Property Oracle says ..
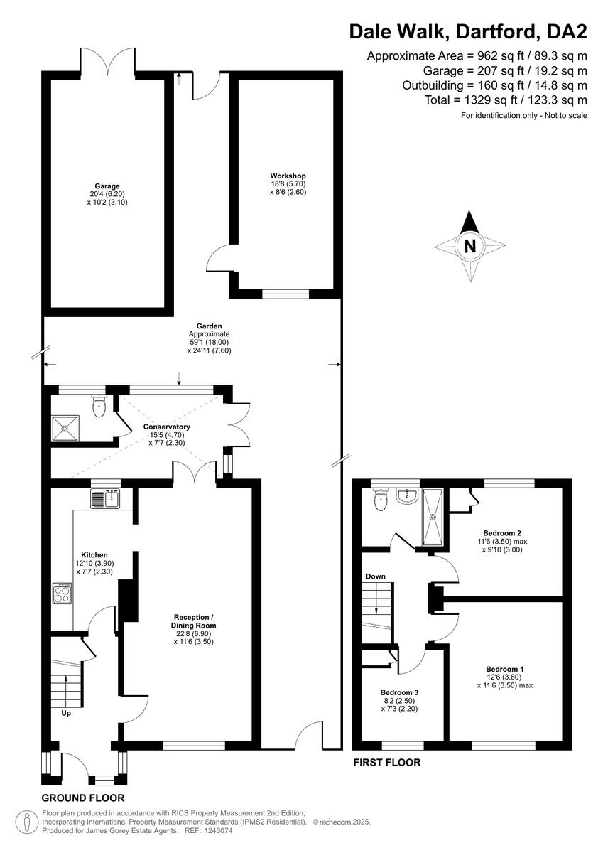
The property is located on Dale Walk in Dartford, Kent. Based on the provided information and images, the property appears to be a three-bedroom house with two bathrooms and a sizable garden. The property’s condition seems to be average; while it is habitable, some updating or cosmetic improvements might enhance its appeal. The kitchen and bathrooms appear functional but could benefit from modernization. The property’s location is reasonably convenient, with nearby schools, including The Brent Primary School (rated Outstanding), and several train stations within a reasonable distance. However, the lack of specific details on the property’s proximity to shops and other amenities makes a definitive judgment on location difficult. The list price of £410,000 requires further analysis due to missing square footage data for nearby listings. A comparison with similar properties in the area and an assessment of the average price per square foot would be needed to determine if the list price is reasonable. The presence of a garden is a positive aspect, adding to the property’s overall value.
Therefore, we give this property 6 / 10. *Disclaimer: This is our option and does constitute a recommendation or financial advice. Do your own research. *
- Price
- 0
- Condition
- 6
- Location
- 7
- Land
- 7
- Bedrooms
- 3
- Bathrooms
- 2
- Sqft (est)
- 962.00
The heatmap indicates the level of crime in the area. The color of the heatmap indicates the crime severity and recency.
Metrics Year-on-Year
- Average area value
- 425,373.00 £Increased by 2.90 %
- Est sale value
- 777,296.00 £Increased by 96.12 %
- Average area rental value
- 1,100.00 £/moDecreased by 38.13 %
- Est letting value
- 1,924.00 £/moIncreased by 100.00 %
- Est rental Yield
- 3.10 %Decreased by 39.92 %
- Crime Rate
- 9.00 %Unchanged by 0.00 %
Agent Activity
James Gorey Estate Agents created the listing.
Nearby Schools
| Name | Type | Ofsted | Distance |
|---|---|---|---|
| Fleetdown Primary Academy | Academy Converter | 0.34 KM | |
| The Brent Primary School | Academy Converter | Outstanding | 0.86 KM |
| The Leigh Academy | Academy Sponsor Led | Good | 0.89 KM |
| The Gateway Primary Academy | Academy Converter | Good | 0.95 KM |
| Stone Lodge School | Free Schools | 1.32 KM |
Images
Nearby Streets
| Name | Average Price | Average Sqft | Distance |
|---|---|---|---|
| Princes Road | £ 415,000 | 0 | 0.00 KM |
| Radfield Drive | £ 325,000 | 0 | 0.00 KM |
| Wiltshire Close | £ 0 | 0 | 0.00 KM |
| Gore Road | £ 375,000 | 0 | 0.00 KM |
| Brentfield Road | £ 426,250 | 0 | 0.00 KM |
Nearby Transport
| Name | NLC | TLC | Distance |
|---|---|---|---|
| Stone Crossing | 5248 | SCG | 2.85 KM |
| Dartford | 5101 | DFD | 3.00 KM |
| Farningham Road | 5105 | FNR | 3.87 KM |
| Greenhithe For Bluewater | 5138 | GNH | 4.38 KM |
| Purfleet | 7453 | PFL | 5.12 KM |
Nearby Listings
| Address | Price | Type | Score | Distance |
|---|---|---|---|---|
| Dale Walk, Dartford, DA2 6JA | £ 410,000 | BUY | 6 / 10 | 0.00 KM |
| Lunedale Road, Dartford, Kent, DA2 | £ 350,000 | BUY | 7 / 10 | 0.09 KM |
| Oaklands Road, Dartford, DA2 | £ 375,000 | BUY | 6 / 10 | 0.10 KM |
| Lunedale Road, Dartford | £ 325,000 | BUY | 6 / 10 | 0.14 KM |
| Lunedale Road, Dartford, Kent, DA2 | £ 400,000 | BUY | 6 / 10 | 0.15 KM |
Nearby Properties
| Address | Price | Distance |
|---|---|---|
| 33 Dale Walk | £ 310,000 | 0.04 KM |
| 27 Dale Walk | £ 210,000 | 0.04 KM |
| 13 Dale Walk | £ 265,000 | 0.04 KM |
| 7 Dale Walk | £ 310,000 | 0.04 KM |
| 3 Dale Walk | £ 240,000 | 0.04 KM |