Icknield Way, Baldock, Hertfordshire SG7 5FH
By McCarthy Stone
£ 435,000
Reviews
3 out of 5 stars
McCarthy Stone says ..
Warm and welcoming, Apartment 56 is a beautiful apartment. This energy-efficient contemporary home is ideal for relaxed, low-maintenance living with a vibrant community and friendly-faces just outside your front door.
Property Oracle says ..
Therefore, we give this property 7 / 10. *Disclaimer: This is our option and does constitute a recommendation or financial advice. Do your own research. *
- Price
- 7
- Condition
- 9
- Location
- 8
- Land
- 6
- Bedrooms
- 2
- Bathrooms
- 0
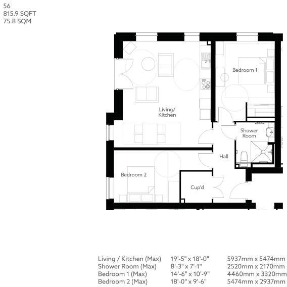
- Sqft (est)
- 815.90
The heatmap indicates the level of crime in the area. The color of the heatmap indicates the crime severity and recency.
Metrics Year-on-Year
- Average area value
- 347,000.00 £Decreased by 1.86 %
- Est sale value
- 425,083.90 £Increased by 29.28 %
- Average area rental value
- 1,311.00 £/moDecreased by 4.93 %
- Est letting value
- 815.90 £/moUnchanged by 0.00 %
- Est rental Yield
- 4.53 %Decreased by 3.21 %
- Crime Rate
- 12.00 %Unchanged by 0.00 %
from 353,594.00 £
from 328,807.70 £
from 1,379.00 £/mo
from 815.90 £/mo
from 4.68 %
from 12.00 %
Agent Activity
McCarthy Stone created the listing.
Nearby Schools
| Name | Type | Ofsted | Distance |
|---|---|---|---|
| The Knights Templar School | Academy Converter | Good | 0.46 KM |
| Brandles School | Academy Special Sponsor Led | 0.69 KM | |
| Hartsfield Junior Mixed And Infant School | Community School | Good | 1.09 KM |
| Nh2 Holly Blue Family Centre | Children's Centre | 1.16 KM | |
| St Mary'S Infants' School | Voluntary Controlled School | Requires improvement | 1.16 KM |
Images
Nearby Streets
| Name | Average Price | Average Sqft | Distance |
|---|---|---|---|
| Lavender Court | £ 275,000 | 0 | 0.00 KM |
| Pepys Way | £ 0 | 0 | 0.00 KM |
| Park Gardens | £ 400,000 | 0 | 0.00 KM |
| Elm Park | £ 0 | 0 | 0.00 KM |
| Back Lane | £ 0 | 0 | 0.00 KM |
Nearby Transport
| Name | NLC | TLC | Distance |
|---|---|---|---|
| Baldock | 6084 | BDK | 0.53 KM |
| Letchworth Garden City | 6089 | LET | 4.30 KM |
| Hitchin | 6086 | HIT | 8.97 KM |
| Arlesey | 6171 | ARL | 9.06 KM |
Nearby Listings
| Address | Price | Type | Score | Distance |
|---|---|---|---|---|
| Icknield Way, Baldock, Hertfordshire SG7 5FH | £ 435,000 | BUY | 7 / 10 | 0.00 KM |
| Icknield Way, Baldock, Hertfordshire SG7 5FH | £ 290,000 | BUY | 6 / 10 | 0.00 KM |
| Icknield Way, Baldock, Hertfordshire SG7 5FH | £ 210,000 | BUY | 6 / 10 | 0.00 KM |
| Icknield Way, Baldock, Hertfordshire SG7 5FH | £ 315,000 | BUY | 7 / 10 | 0.00 KM |
| Icknield Way, Baldock, Hertfordshire SG7 5FH | £ 413,500 | BUY | 6 / 10 | 0.00 KM |
Nearby Properties
| Address | Price | Distance |
|---|---|---|
| 28 Brewery Lane | £ 565,000 | 0.11 KM |
| 7 Brewery Lane | £ 123,000 | 0.11 KM |
| 4 Brewery Lane | £ 255,000 | 0.11 KM |
| 2 Brewery Lane | £ 239,950 | 0.11 KM |
| 1 Brewery Lane | £ 260,000 | 0.11 KM |