JO
Pauls Dene Road, Salisbury
By Jordan & Mason
£ 399,950
Jordan & Mason says ..
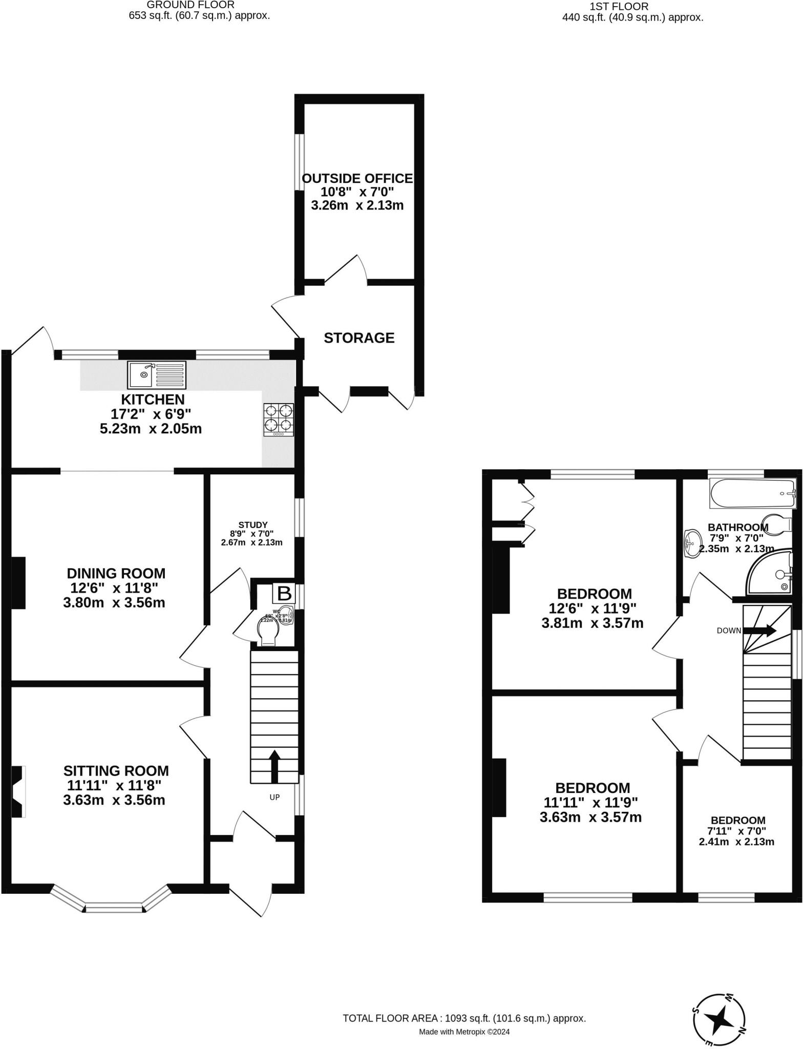
An attractive, semi-detached, three-bedroom family home set in an elevated position, enjoying picturesque views of Old Sarum. EPC:C The Property The property features a spacious entrance hallway with an understairs cupboard and a downstairs W.C. The sitting room boasts a feature bay window to t...
- Bedrooms
- 3
- Bathrooms
- 1
The heatmap indicates the level of crime in the area. The color of the heatmap indicates the crime severity and recency.
Metrics Year-on-Year
- Average area value
- 351,250.00 £Decreased by 27.24 %
- Average area rental value
- 1,650.00 £/moDecreased by 48.60 %
- Est rental Yield
- 5.64 %Decreased by 29.32 %
- Crime Rate
- 3.00 %Unchanged by 0.00 %
from 482,750.00 £
from 3,210.00 £/mo
from 7.98 %
from 3.00 %
Agent Activity
Jordan & Mason created the listing.
Nearby Schools
| Name | Type | Ofsted | Distance |
|---|---|---|---|
| South Wilts Grammar School | Academy Converter | Good | 0.88 KM |
| Exeter House Special School | Academy Special Converter | Good | 1.00 KM |
| Wyndham Park Infants' School | Academy Converter | 1.08 KM | |
| St Mark'S Cofe Junior School, Salisbury | Academy Converter | Good | 1.09 KM |
| Leehurst Swan School | Other Independent School | 1.46 KM |
Images
Nearby Streets
| Name | Average Price | Average Sqft | Distance |
|---|---|---|---|
| Beatrice Road | £ 0 | 0 | 0.00 KM |
| Radnor Road | £ 200,000 | 0 | 0.00 KM |
| Park Court | £ 0 | 0 | 0.00 KM |
| Portway | £ 800,000 | 0 | 0.00 KM |
| Stratford Court | £ 0 | 0 | 0.00 KM |
Nearby Transport
| Name | NLC | TLC | Distance |
|---|---|---|---|
| Salisbury | 5663 | SAL | 2.13 KM |
Nearby Listings
| Address | Price | Type | Score | Distance |
|---|---|---|---|---|
| Pauls Dene Road, Salisbury, SP1 | £ 399,950 | BUY | Unknown | 0.03 KM |
| Castle Road, Salisbury, Wiltshire, SP1 | £ 1,950,000 | BUY | Unknown | 0.11 KM |
| Castle Road, Salisbury, Wiltshire, SP1 | £ 1,500,000 | BUY | 7 / 10 | 0.11 KM |
| Juniper Drive, Salisbury, SP1 | £ 430,000 | BUY | 7 / 10 | 0.18 KM |
| Castle Road, Salisbury, SP1 | £ 475,000 | BUY | Unknown | 0.20 KM |
Nearby Properties
| Address | Price | Distance |
|---|---|---|
| 15 Pauls Dene Road | £ 355,000 | 0.01 KM |
| 5 Pauls Dene Road | £ 245,000 | 0.01 KM |
| 10 Pauls Dene Road | £ 376,000 | 0.01 KM |
| 25 Pauls Dene Road | £ 70,500 | 0.01 KM |
| 6 Pauls Dene Road | £ 249,000 | 0.01 KM |