14/2F2 Barony Street, Edinburgh, EH3 6PE
ST

14/2F2 Barony Street, Edinburgh, EH3 6PE

By Sturrock, Armstrong and Thomson

£ 310,000

Reviews

3 out of 5 stars

Sturrock, Armstrong and Thomson says ..

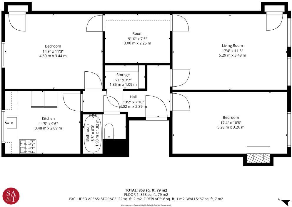
14 (2F2) Barony Street is a generously proportioned, Grade B Listed, second-floor, two-bedroom flat forming part of a traditional stone-built Georgian tenement in the highly sought-after New Town. While well maintained, the property would now benefit from general modernisation, offering excellent...

Property Oracle says ..

This is a two-bedroom flat located in the City Centre of Edinburgh. The property benefits from a desirable location with access to a communal garden. However, the property requires significant renovation, which is reflected in its condition. The asking price appears reasonable considering the location and the need for refurbishment. The property is a period property.

Therefore, we give this property 6 / 10. *Disclaimer: This is our option and does constitute a recommendation or financial advice. Do your own research. *

Price
7
Condition
3
Location
8
Land
7
Bedrooms
2
Bathrooms
1
Sqft (est)
899.96

The heatmap indicates the level of crime in the area. The color of the heatmap indicates the crime severity and recency.

Metrics Year-on-Year

Average area value
322,952.00 £
Decreased by 27.89 %
from 447,880.00 £
Est sale value
309,586.24 £
Decreased by 6.52 %
from 331,185.28 £
Average area rental value
1,604.00 £/mo
Decreased by 7.50 %
from 1,734.00 £/mo
Est letting value
899.96 £/mo
Unchanged by 0.00 %
from 899.96 £/mo
Est rental Yield
5.96 %
Increased by 28.17 %
from 4.65 %
Crime Rate
0.00 %
from 0.00 %

Agent Activity

  • Sturrock, Armstrong and Thomson created the listing.

Nearby Schools

NameTypeOfstedDistance
Merchiston Castle SchoolOffshore Schools8.61 KM

Images

Primary Property Image Property Image 2 Property Image 3 Property Image 4 Property Image 5 Property Image 6 Property Image 7 Property Image 8 Property Image 9 Property Image 10 Property Image 11 Property Image 12 Property Image 13 Property Image 14 Property Image 15 Property Image 16

Nearby Streets

NameAverage PriceAverage SqftDistance
Barony Place £ 370,00000.00 KM
Hart Street Lane £ 000.00 KM
North St Andrew Street £ 000.00 KM
East Scotland Street Lane £ 612,50000.00 KM
Cathedral Lane £ 000.00 KM

Nearby Transport

NameNLCTLCDistance
Edinburgh9328EDB0.70 KM
Haymarket9419HYM3.32 KM
Slateford9236SLA6.76 KM
Kingsknowe9217KGE9.27 KM

Nearby Listings

AddressPriceTypeScoreDistance
14/2F2 Barony Street, Edinburgh, EH3 6PE £ 310,000BUY6 / 100.00 KM
29/6 Barony Street, Edinburgh, EH3 £ 240,000BUY5 / 100.01 KM
New Broughton, Edinburgh, Midlothian £ 575,000BUY7 / 100.06 KM
34/4 Barony Street, Edinburgh, EH3 £ 230,000BUY7 / 100.08 KM
Barony Street, Edinburgh, EH3 £ 360,000BUY6 / 100.08 KM