Withycombe Village Road, Exmouth
By Links Estate Agents
£ 239,950
Reviews
3 out of 5 stars
Links Estate Agents says ..
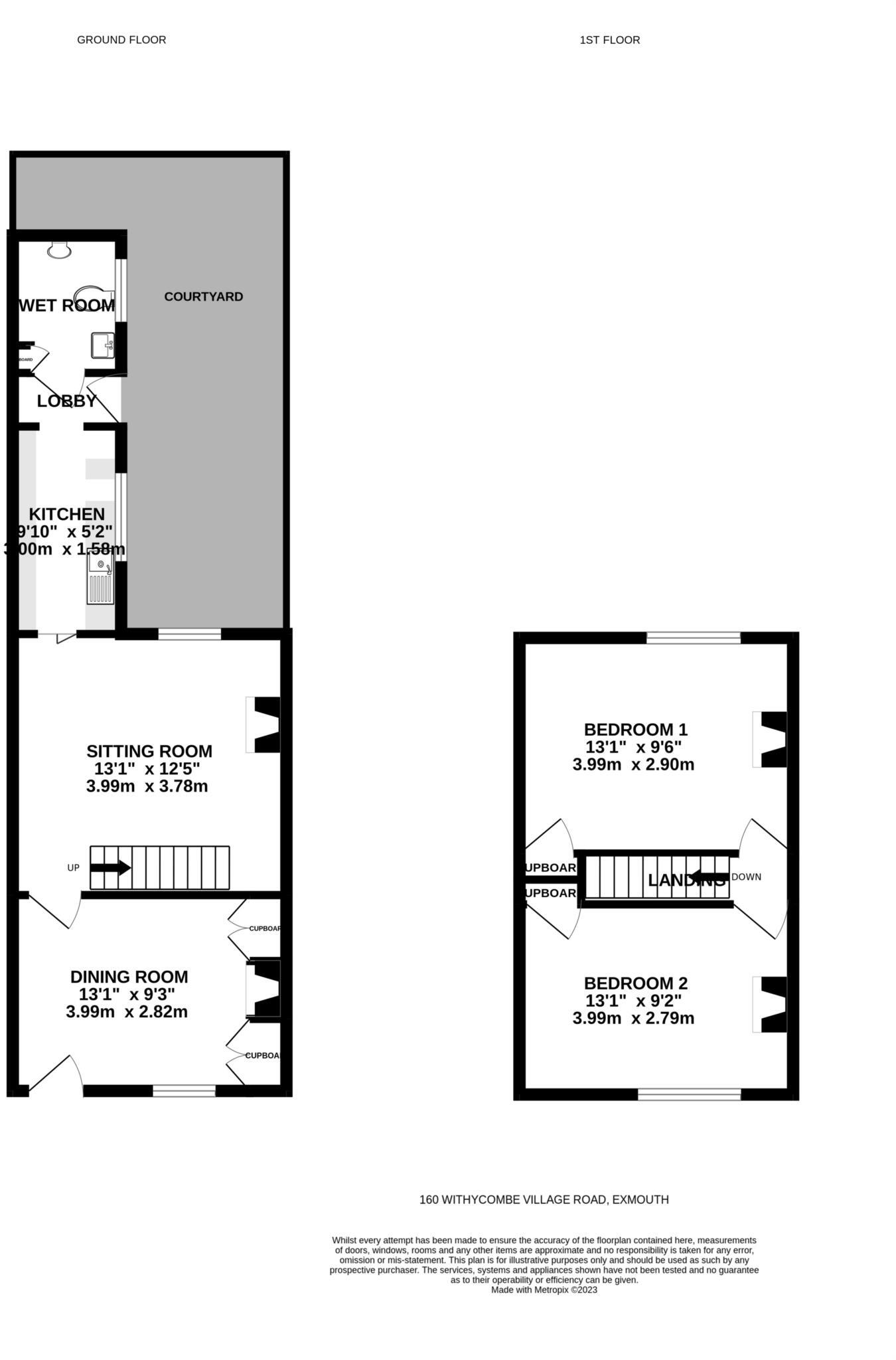
Offered for sale with NO ONWARD CHAIN and presented in immaculate condition throughout, yet still retaining much character, is this 2 double bedroom and 2 reception room mid terraced house with a Courtyard garden to the rear.
Property Oracle says ..
This terraced property is located on Withycombe Village Road in Exmouth, East Devon. The area benefits from being close to Withycombe Raleigh Church of England Primary School (0.08km), which received a good Ofsted rating. Other nearby schools include Exmouth & District Children’s Centre (0.33km), Marpool Primary School (0.49km), and Exmouth Community College (0.86km). The property is also conveniently located near Exmouth train station (1.99km), providing easy access to transportation. The property itself is a two-bedroom, one-bathroom terraced house with a small, enclosed rear garden. The interior appears to be well-maintained and recently updated, with a modern kitchen and bathroom. The property benefits from a fireplace and has traditional features. The list price of £239,950 is slightly below the average price for the area (£349,366), and considering the property’s condition and location, it could be considered good value. However, the lack of plot size data makes it difficult to provide a definitive assessment of the land value.
Therefore, we give this property 6 / 10. *Disclaimer: This is our option and does constitute a recommendation or financial advice. Do your own research. *
- Price
- 7
- Condition
- 8
- Location
- 9
- Land
- 3
- Bedrooms
- 2
- Bathrooms
- 1
- Sqft (est)
- 1,051.63
The heatmap indicates the level of crime in the area. The color of the heatmap indicates the crime severity and recency.
Metrics Year-on-Year
- Average area value
- 322,940.00 £Decreased by 9.74 %
- Est sale value
- 399,619.40 £Increased by 6.44 %
- Average area rental value
- 1,284.00 £/moIncreased by 22.29 %
- Est letting value
- 1,051.63 £/moUnchanged by 0.00 %
- Est rental Yield
- 4.77 %Increased by 35.51 %
- Crime Rate
- 8.00 %Unchanged by 0.00 %
Agent Activity
Links Estate Agents marked this listing as sold.
Links Estate Agents created the listing.
Nearby Schools
| Name | Type | Ofsted | Distance |
|---|---|---|---|
| Withycombe Raleigh Church Of England Primary School | Voluntary Controlled School | Good | 0.08 KM |
| Exmouth & District Children'S Centre | Children's Centre | 0.33 KM | |
| Marpool Primary School | Foundation School | Good | 0.49 KM |
| Exmouth Community College | Academy Converter | Requires improvement | 0.86 KM |
| Brixington Primary Academy | Academy Sponsor Led | Requires improvement | 1.10 KM |
Images
Nearby Streets
| Name | Average Price | Average Sqft | Distance |
|---|---|---|---|
| School Lane | £ 0 | 0 | 0.00 KM |
| Park Terrace | £ 190,000 | 0 | 0.00 KM |
| Park Way | £ 345,000 | 0 | 0.00 KM |
| Broad Park Road | £ 350,000 | 0 | 0.00 KM |
| Brook Meadow | £ 0 | 0 | 0.00 KM |
Nearby Transport
| Name | NLC | TLC | Distance |
|---|---|---|---|
| Exmouth | 5756 | EXM | 1.99 KM |
| Lympstone Village | 5761 | LYM | 4.14 KM |
| Starcross | 3413 | SCS | 5.42 KM |
| Lympstone Commando | 5762 | LYC | 5.92 KM |
| Dawlish Warren | 3409 | DWW | 6.02 KM |
Nearby Listings
| Address | Price | Type | Score | Distance |
|---|---|---|---|---|
| Withycombe Village Road, Exmouth | £ 239,950 | BUY | 6 / 10 | 0.00 KM |
| Withycombe Village Road, Exmouth | £ 234,950 | BUY | 6 / 10 | 0.02 KM |
| Withycombe Village Road, Exmouth | £ 245,000 | BUY | 6 / 10 | 0.04 KM |
| Moorfield Close, Exmouth, Devon, EX8 | £ 300,000 | BUY | Unknown | 0.09 KM |
| Withycombe Village Road, Exmouth, EX8 3AZ | £ 187,500 | BUY | 6 / 10 | 0.15 KM |
Nearby Properties
| Address | Price | Distance |
|---|---|---|
| 156 Withycombe Village Road | £ 230,000 | 0.00 KM |
| 160 Withycombe Village Road | £ 230,000 | 0.00 KM |
| 144 Withycombe Village Road | £ 225,000 | 0.00 KM |
| 136 Withycombe Village Road | £ 250,000 | 0.00 KM |
| 187 Withycombe Village Road | £ 185,000 | 0.00 KM |