Clegram Road, Gloucester, Gloucestershire, GL1
By The Property Centre
£ 200,000
Reviews
2 out of 5 stars
The Property Centre says ..
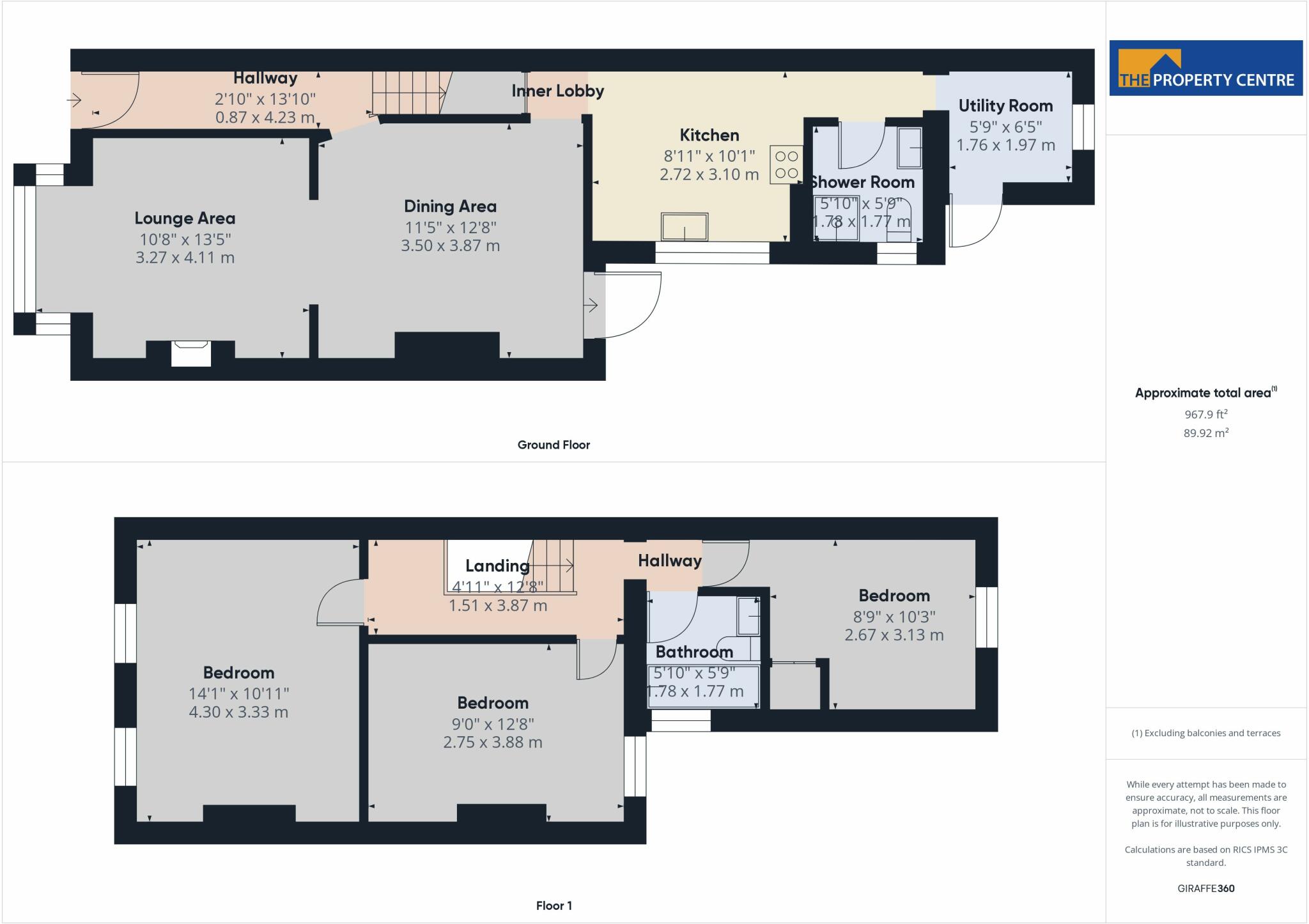
Although requiring some modernisation this property has fantastic potential to become either a great family home or the perfect investment! Accommodation briefly comprises; entrance hall, lounge/diner and kitchen, downstairs shower room and utility room. Upstairs there are three bedrooms a...
Property Oracle says ..
This property is located in Gloucester, a city in Gloucestershire, England. The area has a mix of property types and prices, with some properties needing renovation. The property itself is a 3-bedroom, 2-bathroom house with a total area of 1,034.41 sqft. The average price per sqft in the area is £329.00, which is higher than the average price per sqft of the property. The property is in need of significant renovation, as seen in the photos. The garden is small and requires maintenance. Given the condition of the property and the need for extensive renovations, the asking price of £200,000 may be considered reasonable compared to other properties in the area that need renovation, however, it is significantly below the average price for the area. There are several schools nearby, including Linden Primary School, The Lighthouse, St Paul’s Church of England Primary School, Calton Primary School, and Ribston Hall High School. Gloucester train station is approximately 2.01km away.
Therefore, we give this property 4 / 10. *Disclaimer: This is our option and does constitute a recommendation or financial advice. Do your own research. *
- Price
- 5
- Condition
- 3
- Location
- 6
- Land
- 4
- Bedrooms
- 3
- Bathrooms
- 2
- Sqft (est)
- 1,034.41
- Lot (est)
- 967.89
The heatmap indicates the level of crime in the area. The color of the heatmap indicates the crime severity and recency.
Metrics Year-on-Year
- Average area value
- 345,000.00 £Increased by 40.18 %
- Est sale value
- 503,757.67 £Increased by 90.23 %
- Average area rental value
- 950.00 £/moIncreased by 0.64 %
- Est letting value
- 1,034.41 £/mo
- Est rental Yield
- 3.30 %Decreased by 28.26 %
- Crime Rate
- 5.00 %Unchanged by 0.00 %
Agent Activity
The Property Centre created the listing.
Nearby Schools
| Name | Type | Ofsted | Distance |
|---|---|---|---|
| Linden Primary School | Community School | Good | 0.44 KM |
| The Lighthouse | Children's Centre | 0.52 KM | |
| St Paul'S Church Of England Primary School | Voluntary Controlled School | Good | 0.56 KM |
| Calton Primary School | Community School | Good | 1.07 KM |
| Ribston Hall High School | Academy Converter | Good | 1.20 KM |
Images
Nearby Streets
| Name | Average Price | Average Sqft | Distance |
|---|---|---|---|
| Alma Terrace | £ 180,000 | 0 | 0.00 KM |
| Saint Ann Way | £ 0 | 0 | 0.00 KM |
| Raikes Road | £ 0 | 0 | 0.00 KM |
| High Orchard Street | £ 280,000 | 0 | 0.00 KM |
| Somerset Place | £ 0 | 0 | 0.00 KM |
Nearby Transport
| Name | NLC | TLC | Distance |
|---|---|---|---|
| Gloucester | 4760 | GCR | 2.01 KM |
Nearby Listings
| Address | Price | Type | Score | Distance |
|---|---|---|---|---|
| Clegram Road, Gloucester, Gloucestershire, GL1 | £ 200,000 | BUY | 4 / 10 | 0.00 KM |
| Alma Place, Gloucester, Gloucestershire, GL1 | £ 165,000 | BUY | 6 / 10 | 0.05 KM |
| Alma Place, Gloucester, Gloucestershire, GL1 | £ 180,000 | BUY | 7 / 10 | 0.05 KM |
| Clegram Road, Gloucester | £ 239,995 | BUY | 6 / 10 | 0.05 KM |
| Clegram Road, Gloucester, Gloucestershire, GL1 | £ 270,000 | BUY | 7 / 10 | 0.05 KM |
Nearby Properties
| Address | Price | Distance |
|---|---|---|
| 90 Alma Place | £ 133,000 | 0.04 KM |
| 20 Alma Place | £ 80,000 | 0.04 KM |
| 26 Alma Place | £ 62,000 | 0.04 KM |
| 60 Alma Place | £ 170,000 | 0.04 KM |
| 102 Alma Place | £ 180,000 | 0.04 KM |