Bramleys says ..
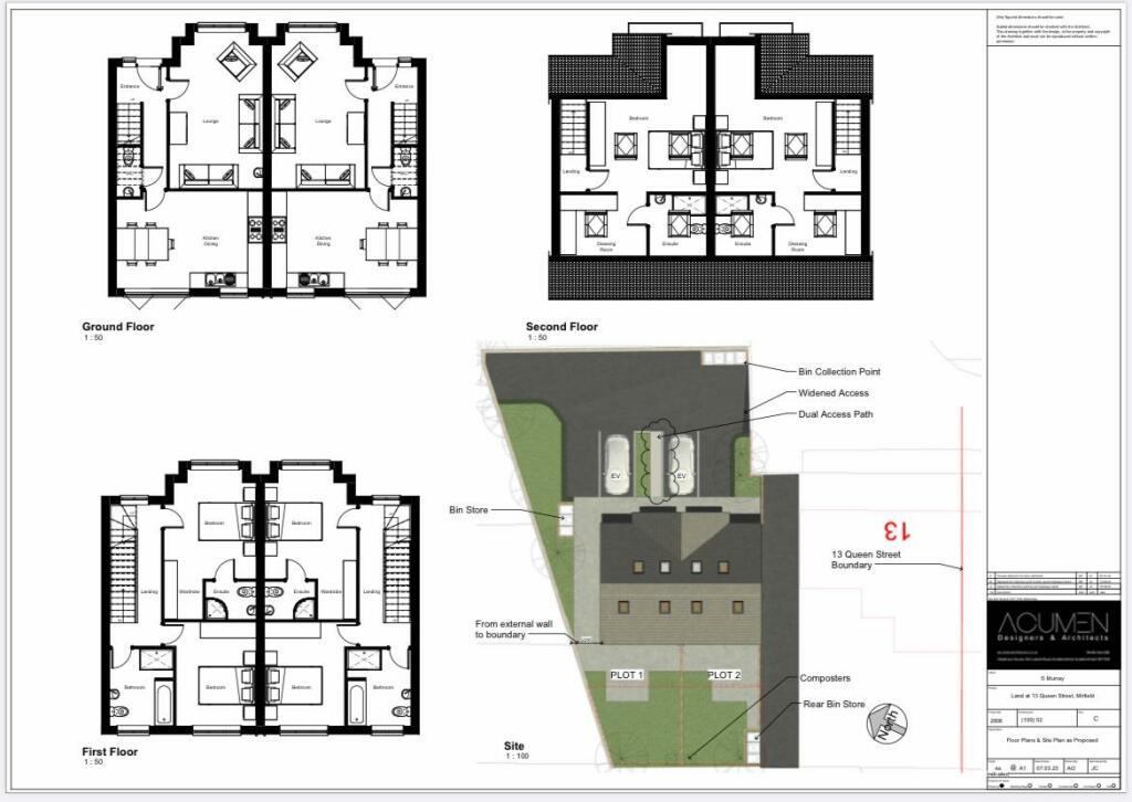
ATTENTION DEVELOPERS/INVESTORS ** PLANNING PERMISSION GRANTED FOR DEMOLITION OF THE EXISTING OUT BUILDING TO ERECT TWO SEMI-DETACHED DWELLINGS ** Application Number 2023/62/91383/E Bramleys welcome to the market this wonderful period 4 bedroom semi detached property offering an abundance...
Property Oracle says ..
This property located on Queen Street, Mirfield, is a four-bedroom semi-detached house currently listed for £430,000. The house possesses characterful features, such as exposed beams and original fireplaces, indicative of its age. However, it requires extensive renovation. The interior photographs reveal outdated décor and finishes, including worn carpets and flooring, and dated kitchen and bathroom fixtures. The kitchen is functional but needs modernisation, while the bathroom displays basic fixtures. The property does benefit from a garden space, which, though currently overgrown, offers potential for landscaping and outdoor enjoyment. Planning permission has already been granted for the demolition of an existing outbuilding and the construction of two semi-detached dwellings, indicating potential development opportunities for investors. The proximity to Mirfield train station and highly-rated schools makes this a convenient location for families and commuters. Overall, the property presents a significant renovation project with potential but is unlikely to appeal to buyers seeking move-in ready accommodation. The current list price needs to reflect the substantial work required, suggesting it may be overvalued in its current state. Therefore, potential buyers will need to carefully evaluate the cost of renovations and potential return on investment before making an offer.
Therefore, we give this property 5 / 10. *Disclaimer: This is our option and does constitute a recommendation or financial advice. Do your own research. *
- Price
- 6
- Condition
- 4
- Location
- 7
- Land
- 5
- Bedrooms
- 4
- Bathrooms
- 1
- Sqft (est)
- 1,000.00
The heatmap indicates the level of crime in the area. The color of the heatmap indicates the crime severity and recency.
Metrics Year-on-Year
- Average area value
- 344,993.00 £Increased by 17.80 %
- Est sale value
- 268,000.00 £Increased by 1.13 %
- Average area rental value
- 1,042.00 £/moIncreased by 19.91 %
- Est letting value
- 0.00 £/mo
- Est rental Yield
- 3.62 %Increased by 1.69 %
- Crime Rate
- 32.00 %Unchanged by 0.00 %
Agent Activity
Bramleys created the listing.
Nearby Schools
| Name | Type | Ofsted | Distance |
|---|---|---|---|
| Crowlees Church Of England Voluntary Controlled Junior And Infant School | Voluntary Controlled School | Outstanding | 0.44 KM |
| Hopton Primary School | Community School | Outstanding | 0.78 KM |
| Castle Hall Academy | Academy Converter | 0.80 KM | |
| Old Bank Academy | Academy Sponsor Led | 1.45 KM | |
| Crossley Fields Junior And Infant School | Community School | Good | 1.50 KM |
Images
Nearby Streets
| Name | Average Price | Average Sqft | Distance |
|---|---|---|---|
| Princess Street | £ 0 | 0 | 0.00 KM |
| Station Road | £ 0 | 0 | 0.00 KM |
| St. Paul's Terrace | £ 0 | 0 | 0.00 KM |
| Town Hall Street | £ 0 | 0 | 0.00 KM |
| Chapel Street | £ 192,500 | 0 | 0.00 KM |
Nearby Transport
| Name | NLC | TLC | Distance |
|---|---|---|---|
| Mirfield | 8518 | MIR | 0.41 KM |
| Ravensthorpe | 8519 | RVN | 4.22 KM |
| Deighton | 8441 | DHN | 6.47 KM |
| Dewsbury | 8326 | DEW | 6.97 KM |
| Batley | 8484 | BTL | 8.74 KM |
Nearby Listings
| Address | Price | Type | Score | Distance |
|---|---|---|---|---|
| Queen Street, Mirfield | £ 430,000 | BUY | 5 / 10 | 0.00 KM |
| St. Pauls Road, Mirfield | £ 380,000 | BUY | 7 / 10 | 0.05 KM |
| King Street, Mirfield, WF14 | £ 215,000 | BUY | 5 / 10 | 0.05 KM |
| King Street, Mirfield | £ 165,000 | BUY | 5 / 10 | 0.08 KM |
| King Street, Mirfield | £ 179,950 | BUY | Unknown | 0.09 KM |
Nearby Properties
| Address | Price | Distance |
|---|---|---|
| 48 St Pauls Road | £ 272,000 | 0.08 KM |
| 39 St Pauls Road | £ 220,000 | 0.08 KM |
| 56 St Pauls Road | £ 318,000 | 0.08 KM |
| 54 St Pauls Road | £ 210,129 | 0.08 KM |
| 45 St Pauls Road | £ 135,000 | 0.08 KM |