Yopa says ..
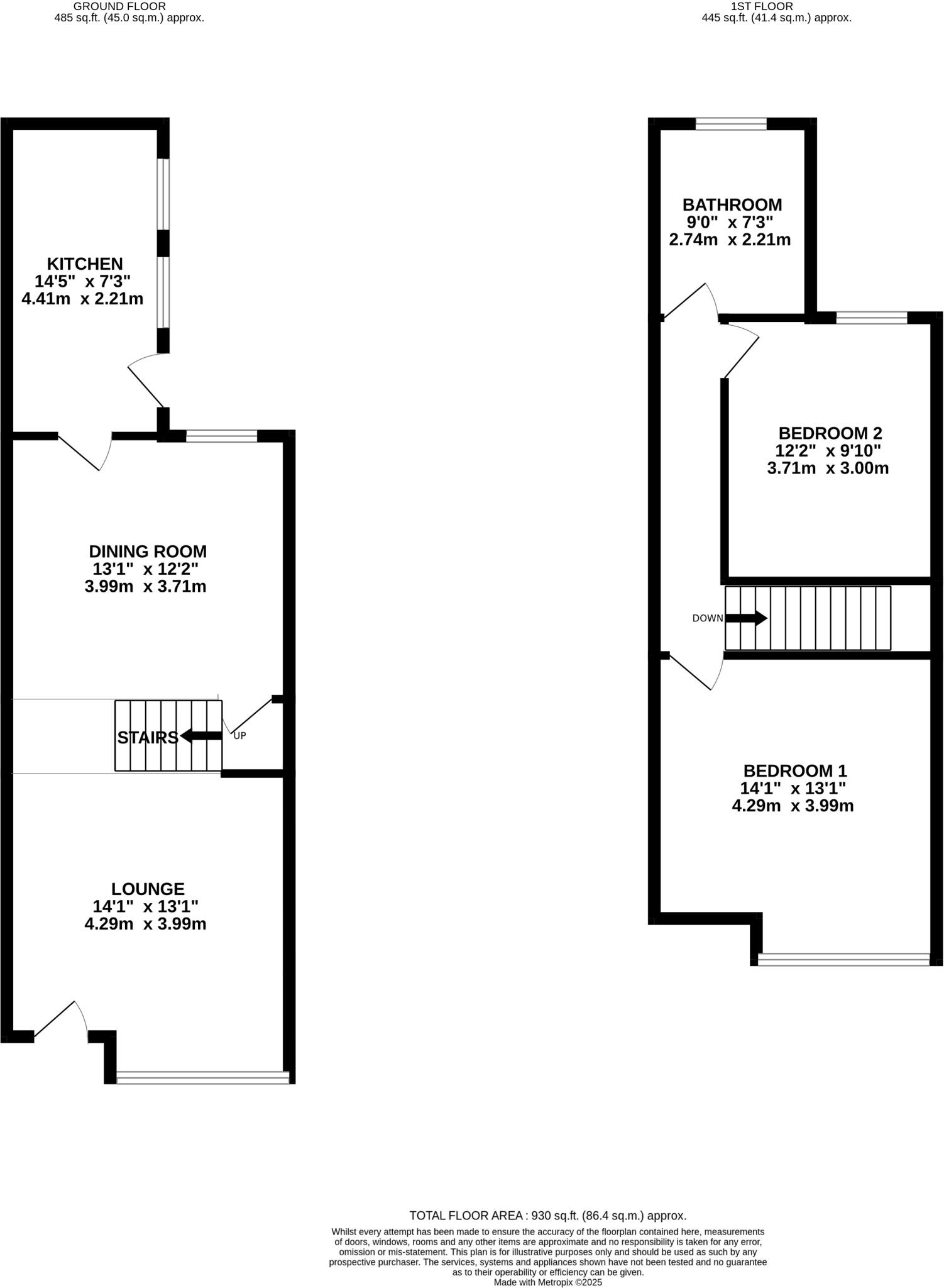
Well-presented 2 bed semi-detached home with tenants in situ paying £800pcm. Two reception rooms, fitted kitchen, private rear garden. Popular Ilkeston location near town centre, canal, and transport links. Ideal investment with immediate rental income.
Property Oracle says ..
The property is a 2-bedroom semi-detached house located on Corporation Road in Ilkeston, Derbyshire. The property is in a fair condition, with some aspects looking modern, but the garden is overgrown and the property may benefit from some modernisation. The property is located within close proximity to several schools and is 2.36 KM from Ilkeston train station. The property is listed at £154,950, which seems reasonable given its condition and location.
Therefore, we give this property 5 / 10. *Disclaimer: This is our option and does constitute a recommendation or financial advice. Do your own research. *
- Price
- 7
- Condition
- 5
- Location
- 6
- Land
- 4
- Bedrooms
- 2
- Bathrooms
- 1
- Sqft (est)
- 817.72
The heatmap indicates the level of crime in the area. The color of the heatmap indicates the crime severity and recency.
Metrics Year-on-Year
- Average area value
- 204,158.00 £Decreased by 5.35 %
- Est sale value
- 236,321.08 £Increased by 34.42 %
- Average area rental value
- 925.00 £/moIncreased by 13.64 %
- Est letting value
- 817.72 £/mo
- Est rental Yield
- 5.44 %Increased by 20.09 %
- Crime Rate
- 12.00 %Unchanged by 0.00 %
Agent Activity
Yopa created the listing.
Nearby Schools
| Name | Type | Ofsted | Distance |
|---|---|---|---|
| R.E.A.L Independent Schools Ilkeston | Other Independent Special School | 0.39 KM | |
| Kensington Junior Academy | Academy Converter | 0.77 KM | |
| Field House Infant School | Academy Converter | 1.11 KM | |
| Hallam Fields Junior School | Community School | Good | 1.12 KM |
| Larklands Infant School | Community School | Good | 1.19 KM |
Images
Nearby Streets
| Name | Average Price | Average Sqft | Distance |
|---|---|---|---|
| Caroline Court | £ 230,000 | 0 | 0.00 KM |
| Charles Close | £ 215,000 | 0 | 0.00 KM |
| Walnut Close | £ 110,000 | 0 | 0.00 KM |
| Repton Drive | £ 210,000 | 0 | 0.00 KM |
| Pedley Street | £ 425,000 | 0 | 0.00 KM |
Nearby Transport
| Name | NLC | TLC | Distance |
|---|---|---|---|
| Ilkeston | 7783 | ILN | 2.36 KM |
| Langley Mill | 1761 | LGM | 7.71 KM |
| Long Eaton | 1829 | LGE | 8.22 KM |
| Attenborough | 1624 | ATB | 9.20 KM |
Nearby Listings
| Address | Price | Type | Score | Distance |
|---|---|---|---|---|
| Corporation Road, Ilkeston, DE7 | £ 154,950 | BUY | 5 / 10 | 0.00 KM |
| Noskwith Street, Ilkeston, Derbyshire, DE7 | £ 89,000 | BUY | 6 / 10 | 0.00 KM |
| Devon Street, Ilkeston, DE7 | £ 160,000 | BUY | 6 / 10 | 0.07 KM |
| Hadley Street, Ilkeston, DE7 | £ 140,000 | BUY | 6 / 10 | 0.08 KM |
| Cromwell Avenue, Ilkeston | £ 200,000 | BUY | 5 / 10 | 0.08 KM |
Nearby Properties
| Address | Price | Distance |
|---|---|---|
| 39 Corporation Road | £ 147,000 | 0.01 KM |
| 35 Corporation Road | £ 96,500 | 0.01 KM |
| 5 Corporation Road | £ 40,000 | 0.01 KM |
| 47 Corporation Road | £ 36,500 | 0.01 KM |
| 29 Corporation Road | £ 94,000 | 0.01 KM |