Eastgate, Macclesfield
HO

Eastgate, Macclesfield

By Holden & Prescott

£ 565,000

Reviews

3 out of 5 stars

Holden & Prescott says ..

The design of this modern townhouse was inspired by the classic Georgian houses that grace many spa towns throughout the country. It is an impressive property that provides exceptional space and style and is a wonderful alternative to the many modern detached houses recently built in Macclesfield...

Property Oracle says ..

Therefore, we give this property 7 / 10. *Disclaimer: This is our option and does constitute a recommendation or financial advice. Do your own research. *

Price
7
Condition
8
Location
8
Land
7
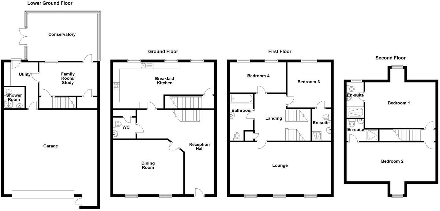
Bedrooms
4
Bathrooms
4
Sqft (est)
2,023.00

The heatmap indicates the level of crime in the area. The color of the heatmap indicates the crime severity and recency.

Metrics Year-on-Year

Average area value
246,667.00 £
Increased by 6.08 %
from 232,521.00 £
Est sale value
582,624.00 £
Increased by 10.77 %
from 525,980.00 £
Average area rental value
1,000.00 £/mo
Decreased by 7.41 %
from 1,080.00 £/mo
Est letting value
2,023.00 £/mo
Unchanged by 0.00 %
from 2,023.00 £/mo
Est rental Yield
4.86 %
Decreased by 12.75 %
from 5.57 %
Crime Rate
4.00 %
Unchanged by 0.00 %
from 4.00 %

Agent Activity

  • Holden & Prescott created the listing.

Nearby Schools

NameTypeOfstedDistance
Puss Bank School And NurseryAcademy Converter0.80 KM
Hurdsfield Community Primary SchoolCommunity SchoolRequires improvement1.31 KM
Hurdsfield Children'S CentreChildren's Centre1.32 KM
Tytherington SchoolAcademy ConverterGood1.38 KM
Parkroyal Community SchoolAcademy ConverterGood1.64 KM

Images

_DSC0898.jpg _DSC0778.jpg _DSC0595.jpg _DSC0575.jpg _DSC0580.jpg _DSC0763.jpg _DSC0773.jpg _DSC0585.jpg _DSC0682.jpg _DSC0560.jpg _DSC0565.jpg _DSC0758.jpg _DSC0708.jpg _DSC0717.jpg _DSC0723.jpg _DSC0733.jpg _DSC0743.jpg _DSC0738.jpg _DSC0833.jpg _DSC0858.jpg _DSC0793.jpg _DSC0838.jpg _DSC0818.jpg _DSC0624.jpg _DSC0848.jpg _DSC0610.jpg _DSC0654.jpg _DSC0650.jpg _DSC0674.jpg _DSC0615.jpg _DSC0883.jpg _DSC0868.jpg _DSC0687.jpg _DSC0698.jpg _DSC0753.jpg _DSC0802.jpg _DSC0923.jpg _DSC0936.jpg _DSC0953.jpg Layer 0.jpg _DSC3164.jpg _DSC3194.jpg _DSC3134.jpg _DSC3139.jpg _DSC3144.jpg _DSC3149.jpg _DSC3154.jpg _DSC3159.jpg _DSC3169.jpg

Nearby Streets

NameAverage PriceAverage SqftDistance
Buxton Road £ 000.00 KM
Cuckstoolpit Hill £ 239,95000.00 KM
King Street £ 000.00 KM
Black Lane £ 170,00000.00 KM
Nicholson Close £ 345,00000.00 KM

Nearby Transport

NameNLCTLCDistance
Macclesfield2871MAC0.37 KM
Prestbury2875PRB4.73 KM
Adlington (Cheshire)2939ADC6.80 KM

Nearby Listings

AddressPriceTypeScoreDistance
Eastgate, Macclesfield £ 565,000BUY7 / 100.00 KM
York Street, Macclesfield £ 179,950BUY5 / 100.04 KM
York Street, Macclesfield, Cheshire, SK10 £ 199,950BUY6 / 100.08 KM
York Street, Macclesfield £ 189,950BUY5 / 100.09 KM
Commongate, Macclesfield £ 240,000BUY7 / 100.09 KM

Nearby Properties

AddressPriceDistance
51 York Street £ 255,0000.08 KM
47 York Street £ 225,0000.08 KM
37 York Street £ 211,9950.08 KM
43 York Street £ 189,9950.08 KM
39 York Street £ 389,9500.08 KM