Grange Avenue, Warrington, Cheshire, WA4
By Pure Investor
£ 300,000
Reviews
2 out of 5 stars
Pure Investor says ..
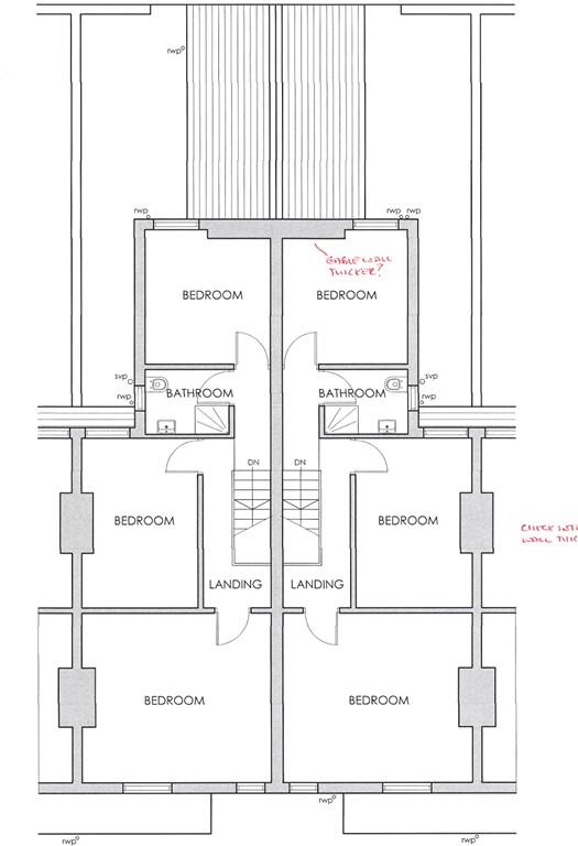
Fully licensed 9-bed HMO (Licence for 10 residents) | Current gross income £4,530 pcm / £54,360 p.a. | Social services tenants - consistent demand & low arrears risk | Potential income £5,720-£6,315 pcm (£68k-£75k+ p.a.) | 9 bedrooms - 5 doubles, 4 singles | Current gross yield of 18.1%
Property Oracle says ..
This is a large terraced property located on Grange Avenue, Warrington. The property offers significant space with 9 bedrooms and 3 bathrooms, making it potentially suitable for a large family or conversion into a rental property. The location is convenient, with proximity to schools and local amenities. However, the interior condition requires significant renovation to bring it up to modern standards. The property includes a rear garden, providing some outdoor space. The asking price of £300,000 appears reasonable given the size and location, but potential buyers should factor in the cost of renovations.
Therefore, we give this property 5 / 10. *Disclaimer: This is our option and does constitute a recommendation or financial advice. Do your own research. *
- Price
- 7
- Condition
- 4
- Location
- 7
- Land
- 5
- Bedrooms
- 9
- Bathrooms
- 3
- Sqft (est)
- 990.00
The heatmap indicates the level of crime in the area. The color of the heatmap indicates the crime severity and recency.
Metrics Year-on-Year
- Average area value
- 231,071.00 £Increased by 18.88 %
- Est sale value
- 290,070.00 £Increased by 35.65 %
- Average area rental value
- 1,039.00 £/moIncreased by 17.67 %
- Est letting value
- 990.00 £/mo
- Est rental Yield
- 5.40 %Decreased by 0.92 %
- Crime Rate
- 10.00 %Unchanged by 0.00 %
Agent Activity
Pure Investor created the listing.
Nearby Schools
| Name | Type | Ofsted | Distance |
|---|---|---|---|
| Alderman Bolton Primary School | Academy Converter | 0.18 KM | |
| Westy Children'S Centre | Children's Centre | 0.29 KM | |
| Sir Thomas Boteler Church Of England High School | Academy Sponsor Led | Good | 0.37 KM |
| St Augustine'S Catholic Primary School | Voluntary Aided School | Good | 0.39 KM |
| Our Lady'S Catholic Primary School | Voluntary Aided School | Good | 0.72 KM |
Images
Nearby Streets
| Name | Average Price | Average Sqft | Distance |
|---|---|---|---|
| Rock Road | £ 155,000 | 0 | 0.00 KM |
| Lower Wash Lane | £ 0 | 0 | 0.00 KM |
| Black Bear Park | £ 0 | 0 | 0.00 KM |
| Bridge Avenue | £ 200,000 | 0 | 0.00 KM |
| Station Road | £ 109,167 | 0 | 0.00 KM |
Nearby Transport
| Name | NLC | TLC | Distance |
|---|---|---|---|
| Padgate | 2387 | PDG | 2.75 KM |
| Warrington Central | 2390 | WAC | 3.11 KM |
| Warrington Bank Quay | 2384 | WBQ | 3.99 KM |
| Birchwood | 2304 | BWD | 5.62 KM |
| Warrington West | 6583 | WAW | 8.02 KM |
Nearby Listings
| Address | Price | Type | Score | Distance |
|---|---|---|---|---|
| Grange Avenue, Warrington, Cheshire, WA4 | £ 300,000 | BUY | 5 / 10 | 0.00 KM |
| Grange Avenue, Warrington | £ 200,000 | BUY | Unknown | 0.03 KM |
| Grange Avenue, Warrington | £ 235,000 | BUY | 6 / 10 | 0.03 KM |
| Rock Road, Latchford, Warrington | £ 180,000 | BUY | Unknown | 0.06 KM |
| Rock Road, Latchford, Warrington | £ 180,000 | BUY | 6 / 10 | 0.06 KM |
Nearby Properties
| Address | Price | Distance |
|---|---|---|
| 39 Grange Avenue | £ 130,000 | 0.00 KM |
| 41 Grange Avenue | £ 108,000 | 0.00 KM |
| 57 Grange Avenue | £ 124,000 | 0.00 KM |
| 42 Grange Avenue | £ 65,000 | 0.00 KM |
| 67 Grange Avenue | £ 175,000 | 0.00 KM |