Hillside, Farningham, Dartford
By Langford Russell
£ 700,000
Reviews
3 out of 5 stars
Langford Russell says ..
Langford Russell welcome this spacious three bedroom detached bungalow to the sales market. Offered to the market CHAIN FREE with no onward chain! Property is located in the heart of Farningham set in a quiet cul-de-sac road, set in close proximity of the Farningham high street with...
Property Oracle says ..
This three-bedroom, two-bathroom bungalow located in Farningham, Kent, presents a compelling proposition for prospective buyers. Situated on Gorse Hill, the property enjoys a peaceful yet conveniently located setting. The provided images showcase a recently modernised home with a notably well-appointed kitchen and bathrooms. These features, combined with the overall aesthetic, suggest a move-in ready condition, minimizing the need for immediate renovations or significant repairs. The garden, although not huge, provides suitable outdoor space. The home also benefits from a driveway providing off-street parking. Accessibility to local amenities, schools (rated ‘good’ by Ofsted), and transport links (via nearby train stations such as Farningham Road) adds to the property’s overall appeal. While the lack of plot size and some data gaps related to the pricing of nearby properties limits a completely precise valuation, a fair market value seems to be reflected in the given listing price of £700,000. The property’s condition, combined with its location and amenities, justifies the asking price within the context of the available information.
Therefore, we give this property 7 / 10. *Disclaimer: This is our option and does constitute a recommendation or financial advice. Do your own research. *
- Price
- 7
- Condition
- 8
- Location
- 7
- Land
- 6
- Bedrooms
- 3
- Bathrooms
- 2
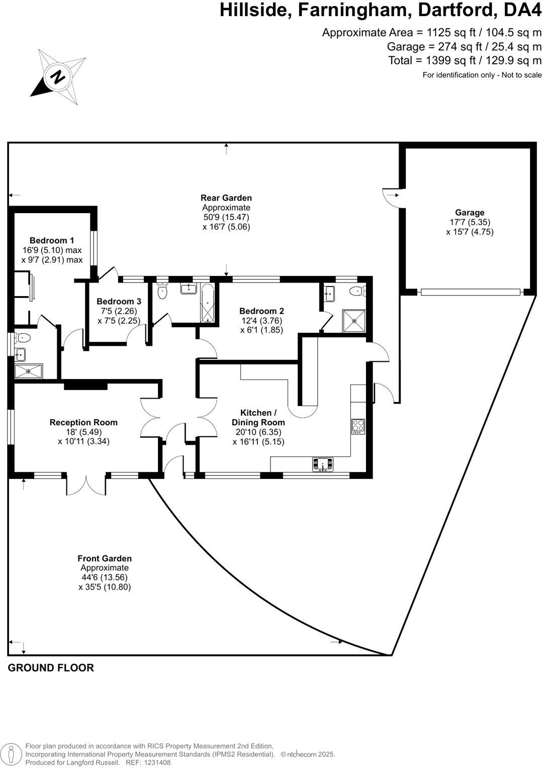
- Sqft (est)
- 1,399.00
The heatmap indicates the level of crime in the area. The color of the heatmap indicates the crime severity and recency.
Metrics Year-on-Year
- Average area value
- 1,145,000.00 £Increased by 51.85 %
- Est sale value
- 1,116,402.00 £Increased by 52.58 %
- Average area rental value
- 1,717.00 £/moDecreased by 6.07 %
- Est letting value
- 1,399.00 £/moUnchanged by 0.00 %
- Est rental Yield
- 1.80 %Decreased by 38.14 %
- Crime Rate
- 16.00 %Unchanged by 0.00 %
Agent Activity
Langford Russell marked this listing as sold.
Langford Russell created the listing.
Nearby Schools
| Name | Type | Ofsted | Distance |
|---|---|---|---|
| The Anthony Roper Primary School | Foundation School | Good | 1.37 KM |
| Horton Kirby Church Of England Primary School | Academy Converter | Good | 2.80 KM |
| Sutton-At-Hone Church Of England Primary School | Academy Converter | Good | 3.73 KM |
| Parkwood Hall Co-Operative Academy | Academy Special Converter | Good | 3.85 KM |
| St Pauls' Church Of England Voluntary Controlled Primary School | Voluntary Controlled School | Good | 4.67 KM |
Images
Nearby Streets
| Name | Average Price | Average Sqft | Distance |
|---|---|---|---|
| Elizabeth Place | £ 0 | 0 | 0.00 KM |
| Main Road | £ 0 | 0 | 0.00 KM |
Nearby Transport
| Name | NLC | TLC | Distance |
|---|---|---|---|
| Farningham Road | 5105 | FNR | 2.75 KM |
| Eynsford | 5065 | EYN | 3.02 KM |
| Swanley | 5075 | SAY | 6.56 KM |
| Shoreham (Kent) | 5074 | SEH | 6.63 KM |
| Dartford | 5101 | DFD | 7.71 KM |
Nearby Listings
| Address | Price | Type | Score | Distance |
|---|---|---|---|---|
| Hillside, Farningham, Dartford | £ 700,000 | BUY | 7 / 10 | 0.00 KM |
| White Post Hill, Farningham, Kent | £ 980,000 | BUY | 7 / 10 | 0.10 KM |
| Lambourne Close, Farningham, Dartford | £ 425,000 | BUY | 7 / 10 | 0.11 KM |
| Eynsford Road, Farningham, Kent, DA4 | £ 550,000 | BUY | 6 / 10 | 0.19 KM |
| Hillside, Farningham, Kent | £ 650,000 | BUY | Unknown | 0.20 KM |
Nearby Properties
| Address | Price | Distance |
|---|---|---|
| Foxbury House | £ 464,000 | 0.15 KM |
| Berisbon | £ 745,000 | 0.15 KM |
| 5 Hillside | £ 475,000 | 0.19 KM |
| 9 Hillside | £ 620,000 | 0.19 KM |
| 14 Hillside | £ 250,000 | 0.19 KM |