Chancellors says ..
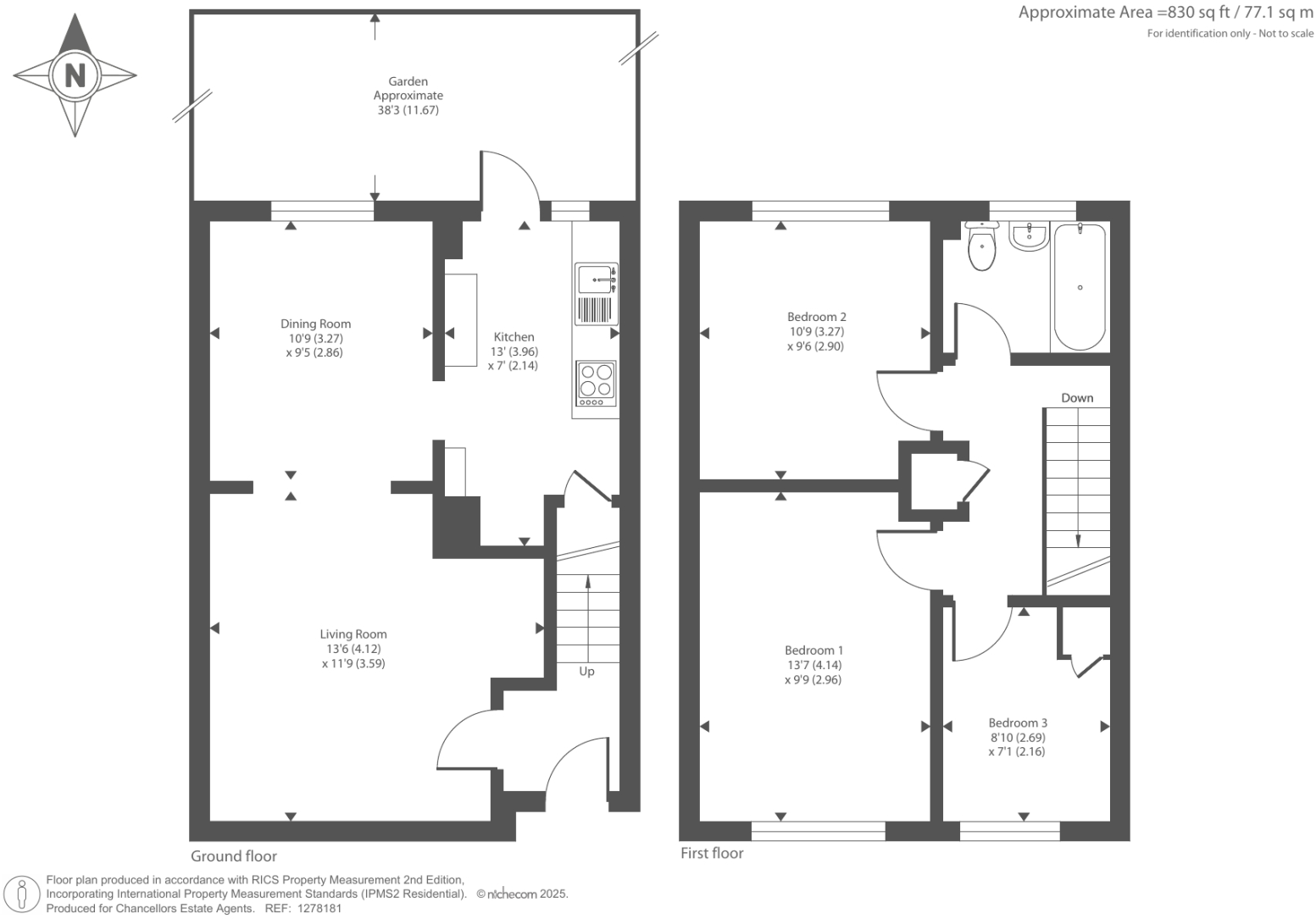
A three-bedroom mid-terrace located in a sought-after location, living room/dining room, fitted kitchen, three bedrooms, family bathroom, gas central heating, garage in a block and parking. Viewings are highly recommended, No chain
Property Oracle says ..
This property is a three-bedroom terraced house located in Ascot, Berkshire. The location is convenient, with nearby schools and transportation links. While the property has a garden, the images suggest it may require some modernisation or updating. The list price of £450,000 seems reasonable compared to other similar properties in the area, although the average price per square foot is considerably higher.
Therefore, we give this property 7 / 10. *Disclaimer: This is our option and does constitute a recommendation or financial advice. Do your own research. *
- Price
- 7
- Condition
- 6
- Location
- 8
- Land
- 7
- Bedrooms
- 3
- Bathrooms
- 1
- Sqft (est)
- 630.87
- Lot (est)
- 830.00
The heatmap indicates the level of crime in the area. The color of the heatmap indicates the crime severity and recency.
Metrics Year-on-Year
- Average area value
- 458,571.00 £Decreased by 30.67 %
- Est sale value
- 330,575.88 £Increased by 3.15 %
- Average area rental value
- 2,700.00 £/moDecreased by 57.58 %
- Est letting value
- 1,892.61 £/moDecreased by 25.00 %
- Est rental Yield
- 7.07 %Decreased by 38.79 %
- Crime Rate
- 9.00 %Unchanged by 0.00 %
Agent Activity
Chancellors created the listing.
Nearby Schools
| Name | Type | Ofsted | Distance |
|---|---|---|---|
| Heathfield School | Other Independent School | 0.52 KM | |
| Lvs Ascot | Other Independent School | 0.94 KM | |
| Winkfield St Mary'S Cofe Primary School | Voluntary Controlled School | Good | 1.54 KM |
| Whitegrove Primary School | Community School | Good | 1.80 KM |
| Lambrook School | Other Independent School | 1.93 KM |
Images
Nearby Streets
| Name | Average Price | Average Sqft | Distance |
|---|---|---|---|
| Long Hill Road | £ 0 | 0 | 0.00 KM |
| Osman's Close | £ 400,000 | 0 | 0.00 KM |
| The Plateau | £ 0 | 0 | 0.00 KM |
| Warfield Road | £ 270,000 | 0 | 0.00 KM |
| Connaught Gardens | £ 0 | 0 | 0.00 KM |
Nearby Transport
| Name | NLC | TLC | Distance |
|---|---|---|---|
| Martins Heron | 5692 | MAO | 1.98 KM |
| Ascot (Berks) | 5666 | ACT | 4.00 KM |
| Bracknell | 5693 | BCE | 4.64 KM |
| Bagshot | 5681 | BAG | 6.42 KM |
| Sunningdale | 5671 | SNG | 8.99 KM |
Nearby Listings
| Address | Price | Type | Score | Distance |
|---|---|---|---|---|
| Ascot, Berkshire, SL5 | £ 450,000 | BUY | 7 / 10 | 0.00 KM |
| Ascot, Berkshire, SL5 | £ 425,000 | BUY | 6 / 10 | 0.00 KM |
| Church Road, Chavey Down, Ascot, Berkshire, SL5 | £ 675,000 | BUY | 7 / 10 | 0.03 KM |
| Church Road, Chavey Down, Ascot, Berkshire, SL5 | £ 440,000 | BUY | 7 / 10 | 0.05 KM |
| Church Road, Chavey Down, Ascot, Berkshire, SL5 | £ 550,000 | BUY | Unknown | 0.07 KM |
Nearby Properties
| Address | Price | Distance |
|---|---|---|
| 53 Church Road | £ 385,000 | 0.07 KM |
| 34 Church Road | £ 645,000 | 0.07 KM |
| 54 Church Road | £ 515,000 | 0.07 KM |
| 64 Church Road | £ 272,000 | 0.07 KM |
| 41 Church Road | £ 320,000 | 0.07 KM |