Julian Marks says ..
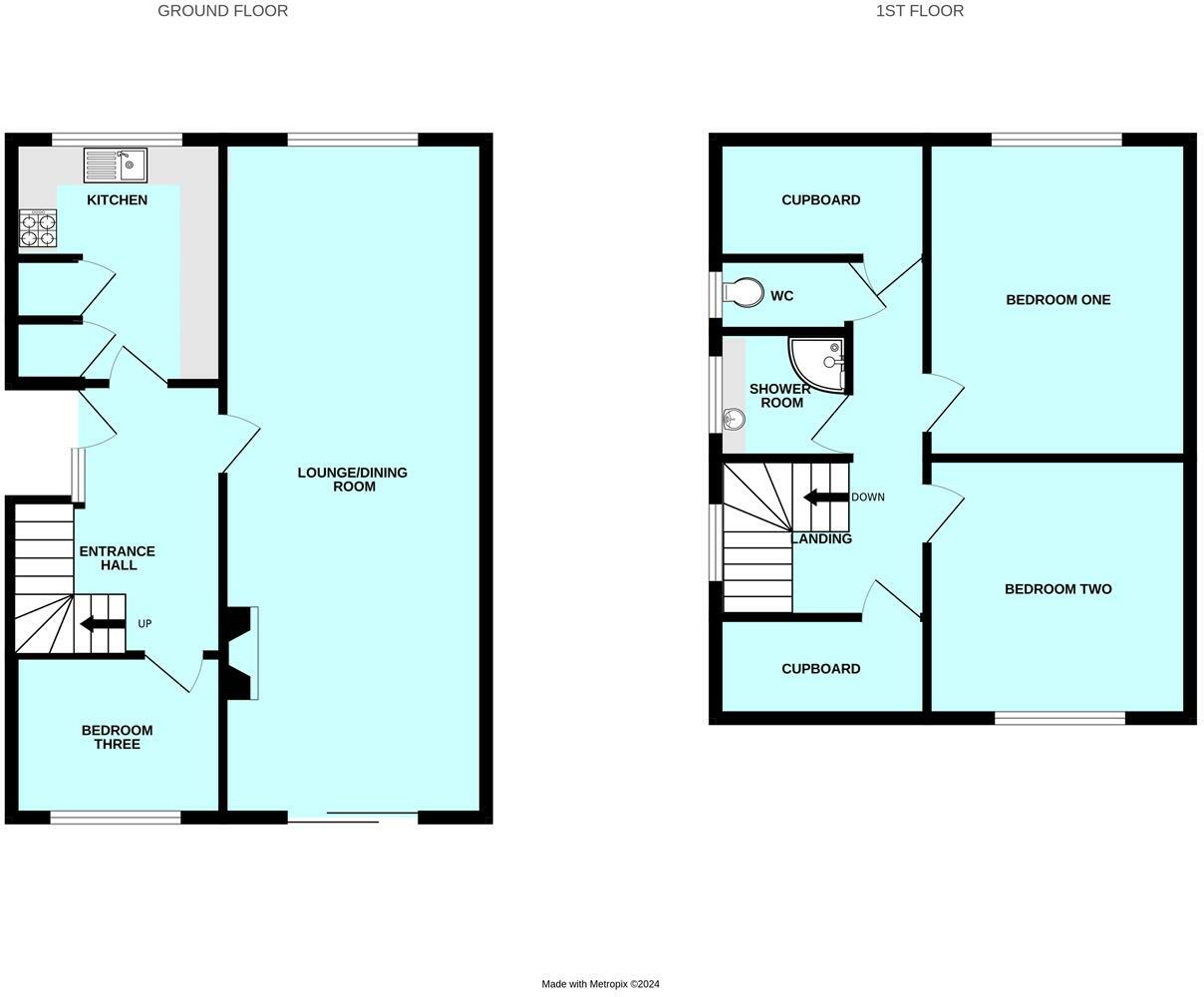
A 1970s semi-detached family home located in a cul-de-sac road in Glenholt. The accommodation comprises entrance hall, large open lounge/diner, kitchen, three bedrooms, shower room, wc, airing cupboard & store room. Externally there is a front garden together with a rear garden landscaped for for...
Property Oracle says ..
This three-bedroom semi-detached house in Glenholt, Plymouth, is presented as a family home. The property’s location in Glenholt offers a balance between residential calm and proximity to amenities. While the images reveal a well-maintained property, the interior design and finishes exhibit a dated style that may require modernization for contemporary appeal. The kitchen and bathrooms appear functional but would benefit from updates. The property’s garden is a positive attribute, although the exact size is not specified and the images suggest a modest garden rather than expansive outdoor space. While the asking price is in line with other properties in the area, the absence of precise square footage data for comparable properties makes a definitive assessment of value challenging. Prospective buyers should consider the potential costs associated with modernizing the property while comparing it to similar houses in the area with accurate square footage information to make a well-informed decision.
Therefore, we give this property 6 / 10. *Disclaimer: This is our option and does constitute a recommendation or financial advice. Do your own research. *
- Price
- 7
- Condition
- 6
- Location
- 7
- Land
- 4
- Bedrooms
- 3
- Bathrooms
- 1
- Sqft (est)
- 620.00
The heatmap indicates the level of crime in the area. The color of the heatmap indicates the crime severity and recency.
Metrics Year-on-Year
- Average area value
- 225,707.00 £Decreased by 17.16 %
- Est sale value
- 158,100.00 £Increased by 0.39 %
- Average area rental value
- 1,211.00 £/moDecreased by 8.88 %
- Est letting value
- 620.00 £/moUnchanged by 0.00 %
- Est rental Yield
- 6.44 %Increased by 10.09 %
- Crime Rate
- 1.00 %Unchanged by 0.00 %
Agent Activity
Julian Marks created the listing.
Nearby Schools
| Name | Type | Ofsted | Distance |
|---|---|---|---|
| Widewell Primary Academy | Academy Converter | Good | 0.64 KM |
| College Of St Mark & St John | Higher Education Institutions | 0.97 KM | |
| Bickleigh Down Church Of England Primary School | Voluntary Aided School | Good | 1.07 KM |
| Oakwood Primary Academy | Academy Converter | Good | 1.21 KM |
| Thornbury Primary School | Academy Converter | Good | 1.66 KM |
Images
Nearby Streets
| Name | Average Price | Average Sqft | Distance |
|---|---|---|---|
| Cromwell Gate | £ 220,000 | 0 | 0.00 KM |
| Oaklands Close | £ 350,000 | 0 | 0.00 KM |
| Tavistock Road | £ 650,000 | 0 | 0.00 KM |
| Blackthorn Close | £ 0 | 0 | 0.00 KM |
| School Drive | £ 230,000 | 0 | 0.00 KM |
Nearby Transport
| Name | NLC | TLC | Distance |
|---|---|---|---|
| Plymouth | 3580 | PLY | 6.82 KM |
| Bere Ferrers | 3550 | BFE | 8.22 KM |
| Devonport | 3579 | DPT | 8.77 KM |
| Keyham | 3571 | KEY | 8.85 KM |
| Dockyard (Devonport) | 3588 | DOC | 8.97 KM |
Nearby Listings
| Address | Price | Type | Score | Distance |
|---|---|---|---|---|
| Frensham Avenue, Plymouth | £ 325,000 | BUY | 6 / 10 | 0.06 KM |
| Glenholt, Plymouth | £ 775,000 | BUY | 7 / 10 | 0.06 KM |
| Frensham Avenue, Plymouth, Devon | £ 350,000 | BUY | 5 / 10 | 0.09 KM |
| Frensham Avenue, Plymouth, Devon, PL6 | £ 234,500 | BUY | Unknown | 0.10 KM |
| Buena Vista Drive, Plymouth, PL6 | £ 675,000 | BUY | 7 / 10 | 0.13 KM |
Nearby Properties
| Address | Price | Distance |
|---|---|---|
| 7 Cromwell Gate | £ 442,500 | 0.08 KM |
| 5 Cromwell Gate | £ 440,000 | 0.08 KM |
| 4 Cromwell Gate | £ 220,000 | 0.08 KM |
| 2 Cromwell Gate | £ 350,000 | 0.08 KM |
| 95 Frensham Avenue | £ 179,950 | 0.10 KM |