Henry Adams says ..
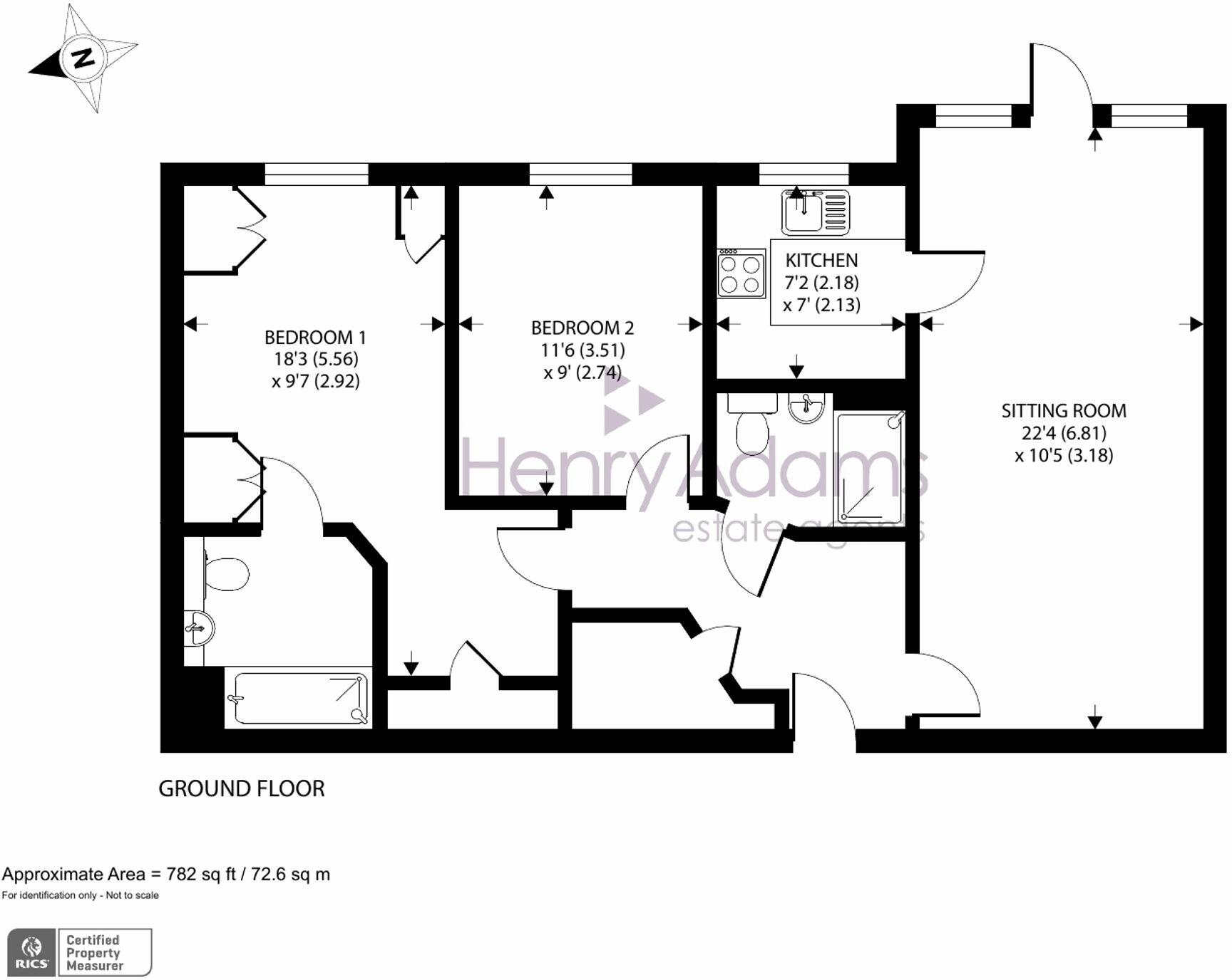
Ground-floor retirement apartment in sought-after development with 2 beds, en-suite, communal facilities, security entry, laundry, guest suite, House Manager. Service charge approx. £6,000/year, ground rent £550/year. Lease from 2013. On-site parking £250/year.
Property Oracle says ..
This two-bedroom, two-bathroom retirement apartment in Storrington, West Sussex, is presented in good condition with modern amenities. The property features a well-maintained interior and access to communal gardens. Its location within Storrington offers proximity to local amenities, schools, and transport links, making it attractive to a specific target market—namely retirees aged 60 and over. However, it’s important to note that the property is an apartment within a retirement community, implying restrictions on ownership, and has no private garden. The limited plot size and the given listing price should be carefully considered alongside factors such as service charges and ground rent to accurately assess its value. The proximity to the highly-rated Storrington Primary School could increase appeal to families with younger children even if the property itself is not suitable. More information on the total square footage of the apartment, and additional details on the annual charges (service charge and ground rent) associated with this leasehold property, are crucial for a comprehensive evaluation and to determine if the price aligns with comparable properties in the neighborhood. The absence of these data points makes a fully informed assessment difficult.
Therefore, we give this property 5 / 10. *Disclaimer: This is our option and does constitute a recommendation or financial advice. Do your own research. *
- Price
- 6
- Condition
- 7
- Location
- 7
- Land
- 3
- Bedrooms
- 2
- Bathrooms
- 2
- Sqft (est)
- 781.46
The heatmap indicates the level of crime in the area. The color of the heatmap indicates the crime severity and recency.
Metrics Year-on-Year
- Average area value
- 863,000.00 £Increased by 48.49 %
- Est sale value
- 273,511.00 £Decreased by 13.79 %
- Average area rental value
- 1,425.00 £/moIncreased by 38.22 %
- Est letting value
- 0.00 £/mo
- Est rental Yield
- 1.98 %Decreased by 7.04 %
- Crime Rate
- 23.00 %Unchanged by 0.00 %
Agent Activity
Henry Adams created the listing.
Nearby Schools
| Name | Type | Ofsted | Distance |
|---|---|---|---|
| Little Footsteps Children And Family Centre Storrington | Children's Centre | 0.64 KM | |
| Storrington Primary School | Community School | Outstanding | 0.95 KM |
| Thakeham Primary School | Community School | Good | 1.86 KM |
| West Chiltington Community Primary School | Community School | Good | 4.23 KM |
| Windlesham House School | Other Independent School | 4.67 KM |
Images
Nearby Streets
| Name | Average Price | Average Sqft | Distance |
|---|---|---|---|
| Orchard Gardens | £ 0 | 0 | 0.00 KM |
| Rectory Road | £ 425,000 | 0 | 0.00 KM |
| Woodside Close | £ 0 | 0 | 0.00 KM |
| Heather Way | £ 0 | 0 | 0.00 KM |
| Oak Close | £ 365,000 | 0 | 0.00 KM |
Nearby Transport
| Name | NLC | TLC | Distance |
|---|---|---|---|
| Pulborough | 5468 | PUL | 8.55 KM |
Nearby Listings
| Address | Price | Type | Score | Distance |
|---|---|---|---|---|
| Meadowside, Storrington, RH20 | £ 350,000 | BUY | 5 / 10 | 0.00 KM |
| Meadowside, Storrington, RH20 | £ 200,000 | BUY | 6 / 10 | 0.02 KM |
| Meadowside, Storrington, RH20 | £ 375,000 | BUY | Unknown | 0.03 KM |
| Meadowside, Storrington, Pulborough, West Sussex, RH20 | £ 300,000 | BUY | 7 / 10 | 0.04 KM |
| Meadowside, Storrington, West Sussex, RH20 | £ 225,000 | BUY | Unknown | 0.04 KM |
Nearby Properties
| Address | Price | Distance |
|---|---|---|
| 14 School Hill | £ 159,000 | 0.15 KM |
| 26 School Hill | £ 242,500 | 0.15 KM |
| 22 School Hill | £ 318,000 | 0.15 KM |
| 24 School Hill | £ 750,000 | 0.15 KM |
| 2 School Hill | £ 266,000 | 0.15 KM |