BR
Northcote Road, Farnborough, Hampshire, GU14
By Bridges Estate Agents
£ 500,000
Reviews
3 out of 5 stars
Bridges Estate Agents says ..
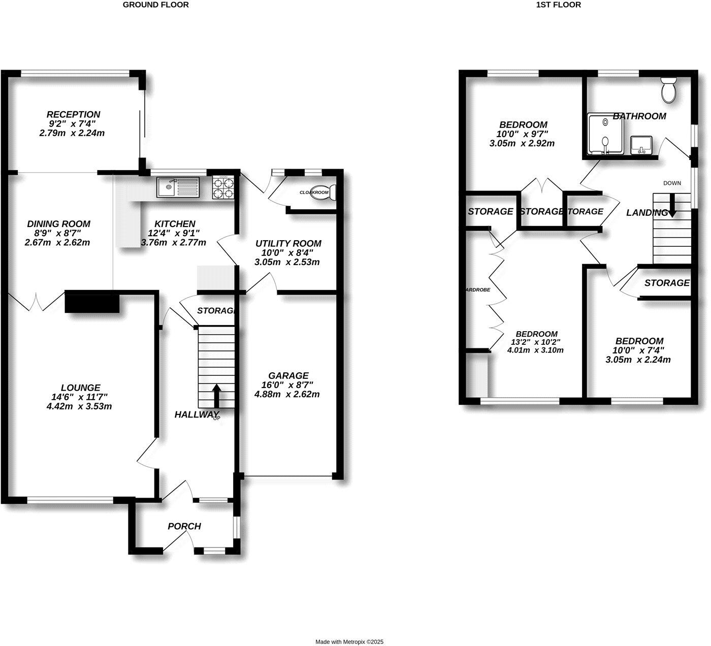
Coming to the market with no onward chain is this deceptively spacious, three bedroom semi-detached property. Having been lovingly owned by just one family since being built in the 1960's, this really is a well loved family home. The property is situated in a quiet road, with no through access - ...
Property Oracle says ..
Therefore, we give this property 6 / 10. *Disclaimer: This is our option and does constitute a recommendation or financial advice. Do your own research. *
- Price
- 6
- Condition
- 6
- Location
- 8
- Land
- 7
- Bedrooms
- 3
- Bathrooms
- 1
- Sqft (est)
- 946.90
The heatmap indicates the level of crime in the area. The color of the heatmap indicates the crime severity and recency.
Metrics Year-on-Year
- Average area value
- 477,500.00 £Increased by 0.19 %
- Est sale value
- 416,636.00 £Increased by 10.55 %
- Average area rental value
- 1,553.00 £/moDecreased by 15.04 %
- Est letting value
- 946.90 £/moUnchanged by 0.00 %
- Est rental Yield
- 3.90 %Decreased by 15.22 %
- Crime Rate
- 4.00 %Unchanged by 0.00 %
from 476,616.00 £
from 376,866.20 £
from 1,828.00 £/mo
from 946.90 £/mo
from 4.60 %
from 4.00 %
Agent Activity
Bridges Estate Agents created the listing.
Nearby Schools
| Name | Type | Ofsted | Distance |
|---|---|---|---|
| Butterflies Children'S Centre | Children's Centre | 0.26 KM | |
| Manor Junior School | Community School | Good | 0.26 KM |
| Manor Infant School | Community School | Outstanding | 0.26 KM |
| Cove Infant School | Community School | Requires improvement | 0.71 KM |
| Cove Junior School | Community School | Good | 0.71 KM |
Images
Nearby Streets
| Name | Average Price | Average Sqft | Distance |
|---|---|---|---|
| St John's Road | £ 658,333 | 0 | 0.00 KM |
| Coldharbour Lane | £ 0 | 0 | 0.00 KM |
| West Heath Roundabout | £ 0 | 0 | 0.00 KM |
| Church Lane | £ 675,000 | 0 | 0.00 KM |
| Moorside Close | £ 0 | 0 | 0.00 KM |
Nearby Transport
| Name | NLC | TLC | Distance |
|---|---|---|---|
| Farnborough (Main) | 5521 | FNB | 2.24 KM |
| Blackwater | 5625 | BAW | 2.96 KM |
| Frimley | 5683 | FML | 3.08 KM |
| Farnborough North | 5688 | FNN | 3.44 KM |
| Camberley | 5682 | CAM | 4.78 KM |
Nearby Listings
| Address | Price | Type | Score | Distance |
|---|---|---|---|---|
| Northcote Road, Farnborough, Hampshire, GU14 | £ 500,000 | BUY | 6 / 10 | 0.00 KM |
| Northcote Road, Farnborough, Hampshire, GU14 | £ 475,000 | BUY | Unknown | 0.08 KM |
| Mayfield Road, Farnborough , GU14 | £ 425,000 | BUY | 7 / 10 | 0.20 KM |
| Fernhill Road, Farnborough, GU14 | £ 350,000 | BUY | Unknown | 0.21 KM |
| Mason Road, Farnborough, Hampshire, GU14 | £ 450,000 | BUY | 7 / 10 | 0.23 KM |
Nearby Properties
| Address | Price | Distance |
|---|---|---|
| 17 Northcote Road | £ 290,000 | 0.01 KM |
| 30 Northcote Road | £ 248,000 | 0.01 KM |
| 42 Northcote Road | £ 365,000 | 0.01 KM |
| 15 Northcote Road | £ 345,000 | 0.01 KM |
| 32 Northcote Road | £ 440,000 | 0.01 KM |