Blenheim Road, Deal, Kent, CT14
By Bright and Bright
£ 315,000
Reviews
3 out of 5 stars
Bright and Bright says ..
A modern, smartly presented 3 bedroom townhouse, close to the town centre, station and beach with private off street parking.
Property Oracle says ..
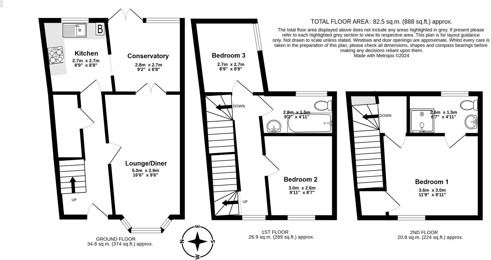
This three-bedroom, two-bathroom end-of-terrace house in North Deal, Kent is situated on Blenheim Road. The property benefits from a modern interior and appears well-maintained, based on the provided images. The kitchen and bathrooms are contemporary, and the living spaces are bright and airy. There is a small, enclosed rear garden, offering some outdoor space. The location is convenient, with nearby schools and Southeastern train stations providing good transport links. However, the plot size is minimal. Compared to other properties in the area, the list price of £315,000 appears to be at the lower end of the market value, considering the average price per square foot in the area.
Therefore, we give this property 7 / 10. *Disclaimer: This is our option and does constitute a recommendation or financial advice. Do your own research. *
- Price
- 7
- Condition
- 9
- Location
- 8
- Land
- 4
- Bedrooms
- 3
- Bathrooms
- 2
- Sqft (est)
- 888.02
The heatmap indicates the level of crime in the area. The color of the heatmap indicates the crime severity and recency.
Metrics Year-on-Year
- Average area value
- 505,375.00 £Increased by 53.39 %
- Est sale value
- 438,681.88 £Increased by 26.99 %
- Average area rental value
- 1,085.00 £/moDecreased by 20.22 %
- Est letting value
- 888.02 £/moUnchanged by 0.00 %
- Est rental Yield
- 2.58 %Decreased by 47.88 %
- Crime Rate
- 12.00 %Unchanged by 0.00 %
Agent Activity
Bright and Bright created the listing.
Nearby Schools
| Name | Type | Ofsted | Distance |
|---|---|---|---|
| Deal Parochial Church Of England Primary School | Academy Converter | 0.86 KM | |
| Brewood Secondary School | Other Independent Special School | Good | 0.91 KM |
| Goodwin Academy | Academy Sponsor Led | 0.93 KM | |
| Sandown School | Academy Converter | 1.05 KM | |
| The Downs Church Of England Primary School | Academy Converter | 1.70 KM |
Images
Nearby Streets
| Name | Average Price | Average Sqft | Distance |
|---|---|---|---|
| Wellington Court | £ 172,500 | 0 | 0.00 KM |
| South Street | £ 0 | 0 | 0.00 KM |
| Black Horse Alley | £ 0 | 0 | 0.00 KM |
| Crown Court | £ 475,000 | 0 | 0.00 KM |
| Coach Yard | £ 0 | 0 | 0.00 KM |
Nearby Transport
| Name | NLC | TLC | Distance |
|---|---|---|---|
| Deal | 5011 | DEA | 0.41 KM |
| Walmer | 5041 | WAM | 2.65 KM |
| Martin Mill | 5040 | MTM | 7.93 KM |
| Sandwich | 5026 | SDW | 8.48 KM |
Nearby Listings
| Address | Price | Type | Score | Distance |
|---|---|---|---|---|
| Blenheim Road, Deal, Kent, CT14 | £ 315,000 | BUY | 7 / 10 | 0.00 KM |
| Blenheim Road, Deal, Kent | £ 425,000 | BUY | Unknown | 0.02 KM |
| Blenheim Road, Deal, Kent, CT14 | £ 375,000 | BUY | 6 / 10 | 0.04 KM |
| Blenheim Road, Deal, Kent, CT14 | £ 350,000 | BUY | 6 / 10 | 0.04 KM |
| Blenheim Road, Deal, CT14 | £ 680,000 | BUY | 5 / 10 | 0.05 KM |
Nearby Properties
| Address | Price | Distance |
|---|---|---|
| 53 - 55 Blenheim Road | £ 430,000 | 0.04 KM |
| 74a Blenheim Road | £ 170,000 | 0.04 KM |
| 62 Blenheim Road | £ 593,000 | 0.04 KM |
| 48 Blenheim Road | £ 345,000 | 0.04 KM |
| 76 Blenheim Road | £ 350,000 | 0.04 KM |