Palewell Park, Parkside, SW14
By Sceon + Berne
£ 2,250,000
Reviews
4 out of 5 stars
Sceon + Berne says ..
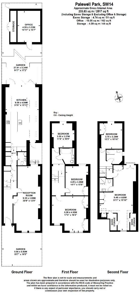
A gorgeous five bedroom period home which has been fully remodelled and extended, perfectly combining modern design with character and charm. The house features an array of period details, gorgeous extended kitchen, landscaped west-facing garden, detached garden studio and extensive living space.
Property Oracle says ..
This property is a 5 bedroom, 3 bathroom terraced house located in Palewell Park, East Sheen, Richmond Upon Thames. The area is known for its good schools and transport links, with Mortlake station being approximately 0.55km away. The property itself has been recently renovated to a high standard, boasting a modern open-plan kitchen/dining/living area that opens onto a landscaped garden. The garden is well maintained and includes a modern garden studio. The property also benefits from ample storage throughout. The asking price is £2,250,000 which is significantly higher than the average price for the area of £1,550,475. However, given the size of the property (2,516.93 sqft), the high-quality renovation, and desirable location, the price may be justified for the right buyer.
Therefore, we give this property 8 / 10. *Disclaimer: This is our option and does constitute a recommendation or financial advice. Do your own research. *
- Price
- 7
- Condition
- 9
- Location
- 9
- Land
- 8
- Bedrooms
- 5
- Bathrooms
- 3
- Sqft (est)
- 2,516.93
The heatmap indicates the level of crime in the area. The color of the heatmap indicates the crime severity and recency.
Metrics Year-on-Year
- Average area value
- 1,320,833.00 £Increased by 17.98 %
- Est sale value
- 6,622,042.83 £Increased by 213.59 %
- Average area rental value
- 3,912.00 £/moIncreased by 8.01 %
- Est letting value
- 17,618.51 £/moIncreased by 250.00 %
- Est rental Yield
- 3.55 %Decreased by 8.51 %
- Crime Rate
- 8.00 %Unchanged by 0.00 %
Agent Activity
Sceon + Berne created the listing.
Nearby Schools
| Name | Type | Ofsted | Distance |
|---|---|---|---|
| Tower House School | Other Independent School | 0.44 KM | |
| Thomson House School | Free Schools | Outstanding | 0.56 KM |
| Richmond Park Academy | Academy Sponsor Led | Good | 0.59 KM |
| St Mary Magdalen'S Catholic Primary School | Voluntary Aided School | Outstanding | 0.63 KM |
| Mortlake Hall Children'S Centre | Children's Centre Linked Site | 0.94 KM |
Images
Nearby Streets
| Name | Average Price | Average Sqft | Distance |
|---|---|---|---|
| Sheengate Mansions Passage | £ 0 | 0 | 0.00 KM |
| Park Avenue | £ 0 | 0 | 0.00 KM |
| Firs Avenue | £ 0 | 0 | 0.00 KM |
| Chestnut Mews | £ 0 | 0 | 0.00 KM |
| Gordon Avenue | £ 0 | 0 | 0.00 KM |
Nearby Transport
| Name | NLC | TLC | Distance |
|---|---|---|---|
| Mortlake | 5600 | MTL | 0.55 KM |
| Barnes Bridge | 5580 | BNI | 1.59 KM |
| Chiswick | 5583 | CHK | 1.96 KM |
| Barnes | 5551 | BNS | 2.49 KM |
| North Sheen | 5601 | NSH | 2.59 KM |
Nearby Listings
| Address | Price | Type | Score | Distance |
|---|---|---|---|---|
| Palewell Park, Parkside, SW14 | £ 2,250,000 | BUY | 8 / 10 | 0.00 KM |
| Palewell Park, London, SW14 8JG | £ 2,000,000 | BUY | 8 / 10 | 0.04 KM |
| Richmond Park Road, East Sheen, London, SW14 | £ 450,000 | BUY | 6 / 10 | 0.09 KM |
| Upper Richmond Road West, East Sheen, London | £ 580,000 | BUY | 7 / 10 | 0.09 KM |
| Palewell Park, East Sheen, SW14 | £ 600,000 | BUY | 8 / 10 | 0.10 KM |
Nearby Properties
| Address | Price | Distance |
|---|---|---|
| 18 Palewell Park | £ 1,877,500 | 0.03 KM |
| 6 Palewell Park | £ 1,660,000 | 0.03 KM |
| 50 Palewell Park | £ 298,172 | 0.03 KM |
| 54 Palewell Park | £ 1,150,000 | 0.03 KM |
| 42 Palewell Park | £ 1,195,000 | 0.03 KM |