Hamptons Sales says ..
A beautiful two bedroom garden flat benefiting from its own private entrance and presented in excellent condition throughout.
Property Oracle says ..
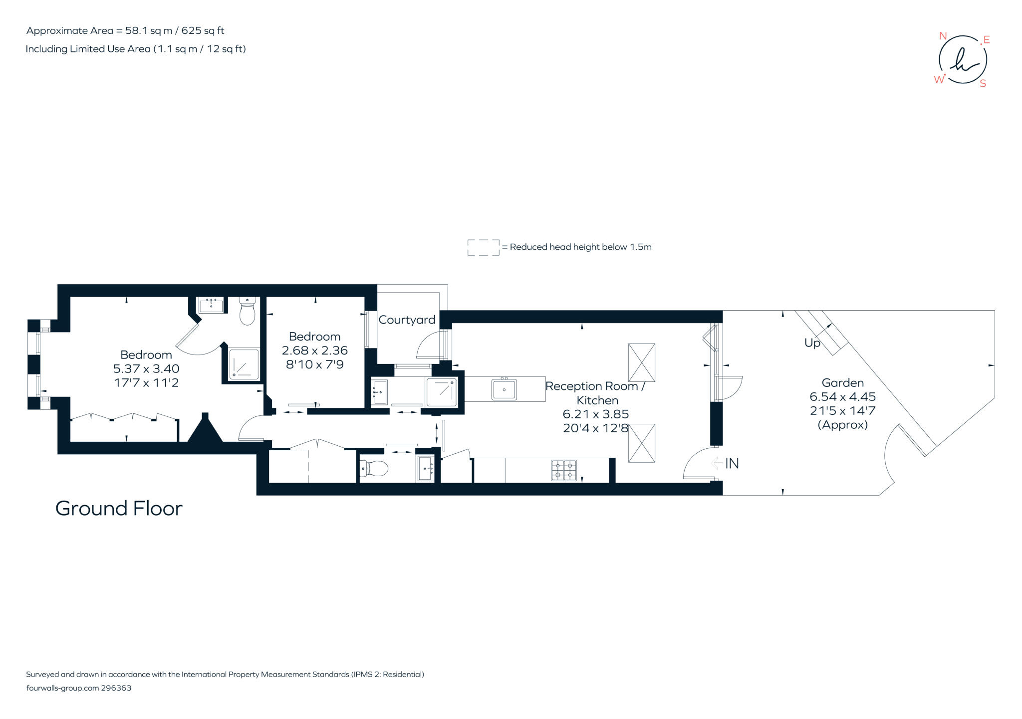
The property is a well-maintained 2-bedroom, 2-bathroom flat in a desirable location. The modern interior and substantial garden are key features. While the list price is below the average for the area, its competitive pricing should be considered alongside the lack of detailed comparable data on nearby properties.
Therefore, we give this property 8 / 10. *Disclaimer: This is our option and does constitute a recommendation or financial advice. Do your own research. *
- Price
- 8
- Condition
- 9
- Location
- 9
- Land
- 8
- Bedrooms
- 2
- Bathrooms
- 2
- Sqft (est)
- 625.38
The heatmap indicates the level of crime in the area. The color of the heatmap indicates the crime severity and recency.
Metrics Year-on-Year
- Average area value
- 1,041,354.00 £Increased by 4.07 %
- Est sale value
- 565,343.52 £Decreased by 9.51 %
- Average area rental value
- 2,091.00 £/moIncreased by 6.25 %
- Est letting value
- 625.38 £/moUnchanged by 0.00 %
- Est rental Yield
- 2.41 %Increased by 2.12 %
- Crime Rate
- 3.00 %Unchanged by 0.00 %
Agent Activity
Hamptons Sales created the listing.
Nearby Schools
| Name | Type | Ofsted | Distance |
|---|---|---|---|
| Ark Priory Primary Academy | Academy Sponsor Led | Outstanding | 0.66 KM |
| Belmont Primary School | Community School | Outstanding | 0.74 KM |
| Berrymede Infant School | Community School | Good | 0.86 KM |
| Berrymede Junior School | Community School | Good | 0.86 KM |
| Heathfield House School | Other Independent School | 0.93 KM |
Images
Nearby Streets
| Name | Average Price | Average Sqft | Distance |
|---|---|---|---|
| Cleveland Road | £ 1,150,000 | 0 | 0.00 KM |
| Holkham Lane | £ 0 | 0 | 0.00 KM |
| Somerset Road | £ 911,663 | 0 | 0.00 KM |
| Evelyn Road | £ 785,000 | 0 | 0.00 KM |
| Clements Close | £ 0 | 0 | 0.00 KM |
Nearby Transport
| Name | NLC | TLC | Distance |
|---|---|---|---|
| South Acton | 1452 | SAT | 0.40 KM |
| Acton Central | 1404 | ACC | 1.16 KM |
| Gunnersbury | 5588 | GUN | 1.25 KM |
| Chiswick | 5583 | CHK | 1.99 KM |
| Acton Main Line | 3000 | AML | 2.03 KM |
Nearby Listings
| Address | Price | Type | Score | Distance |
|---|---|---|---|---|
| Church Path, London, W4 | £ 695,000 | BUY | 8 / 10 | 0.00 KM |
| Steele Road, Chiswick, London, W4 | £ 630,000 | BUY | 7 / 10 | 0.04 KM |
| Rothschild Road, London, W4 | £ 799,950 | BUY | 7 / 10 | 0.08 KM |
| Rothschild Road, London, W4 | £ 799,950 | BUY | 6 / 10 | 0.08 KM |
| Rothschild Road, London, W4 | £ 1,600,000 | BUY | Unknown | 0.09 KM |
Nearby Properties
| Address | Price | Distance |
|---|---|---|
| 16 Steele Road | £ 926,000 | 0.06 KM |
| 20 Steele Road | £ 900,000 | 0.06 KM |
| 4 Steele Road | £ 840,000 | 0.06 KM |
| 20a Steele Road | £ 970,000 | 0.06 KM |
| 2 Steele Road | £ 642,500 | 0.06 KM |