G4 Lettings & Sales says ..
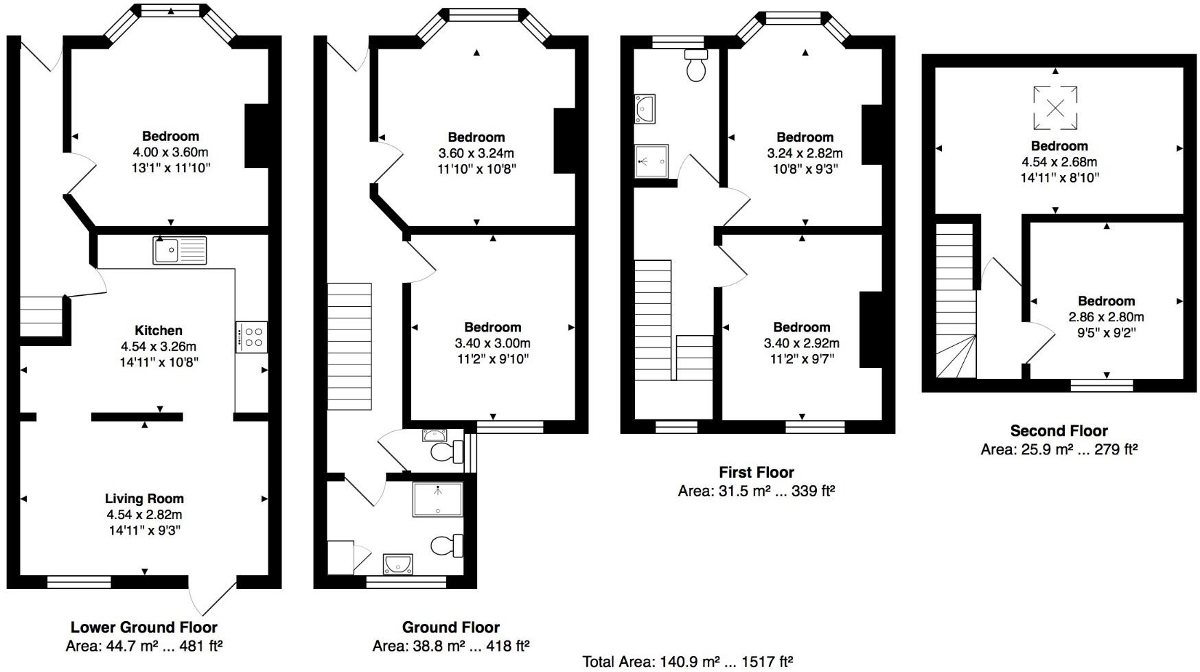
A substantial period Victorian terraced house in a highly sought after residential enclave. The property has a registered HMO licence for up to 6 people and is arranged over 4 floors.
Property Oracle says ..
Therefore, we give this property 7 / 10. *Disclaimer: This is our option and does constitute a recommendation or financial advice. Do your own research. *
- Price
- 7
- Condition
- 8
- Location
- 8
- Land
- 7
- Bedrooms
- 6
- Bathrooms
- 3
The heatmap indicates the level of crime in the area. The color of the heatmap indicates the crime severity and recency.
Metrics Year-on-Year
- Average area value
- 564,925.00 £Decreased by 12.97 %
- Average area rental value
- 1,752.00 £/moIncreased by 7.35 %
- Est rental Yield
- 3.72 %Increased by 23.18 %
- Crime Rate
- 6.00 %Unchanged by 0.00 %
from 649,119.00 £
from 1,632.00 £/mo
from 3.02 %
from 6.00 %
Agent Activity
G4 Lettings & Sales created the listing.
Nearby Schools
| Name | Type | Ofsted | Distance |
|---|---|---|---|
| Dorothy Stringer School | Community School | Good | 0.41 KM |
| Balfour Primary School | Community School | Requires improvement | 0.57 KM |
| Varndean College | Further Education | Good | 0.70 KM |
| St Bernadette'S Catholic Primary School | Voluntary Aided School | Good | 0.77 KM |
| Brighton & Hove Montessori School | Other Independent School | Good | 0.81 KM |
Images
Nearby Streets
| Name | Average Price | Average Sqft | Distance |
|---|---|---|---|
| Front Road | £ 0 | 0 | 0.00 KM |
| Stanford Avenue | £ 0 | 0 | 0.00 KM |
| St Andrews Close | £ 0 | 0 | 0.00 KM |
| The Approach | £ 0 | 0 | 0.00 KM |
| Adams Close | £ 600,000 | 0 | 0.00 KM |
Nearby Transport
| Name | NLC | TLC | Distance |
|---|---|---|---|
| London Road (Brighton) | 5281 | LRB | 1.24 KM |
| Preston Park | 5285 | PRP | 1.28 KM |
| Brighton | 5268 | BTN | 1.83 KM |
| Moulsecoomb | 5312 | MCB | 2.74 KM |
| Hove | 5273 | HOV | 3.20 KM |
Nearby Listings
| Address | Price | Type | Score | Distance |
|---|---|---|---|---|
| Gordon Road, BN1 | £ 650,000 | BUY | 7 / 10 | 0.00 KM |
| Gordon Road, Brighton, East Sussex | £ 400,000 | BUY | 6 / 10 | 0.01 KM |
| Gordon Road, Brighton, East Sussex | £ 575,000 | BUY | Unknown | 0.03 KM |
| Gordon Road, Surrenden, Brighton | £ 300,000 | BUY | 7 / 10 | 0.03 KM |
| Gordon Road, Brighton | £ 240,000 | BUY | 7 / 10 | 0.03 KM |
Nearby Properties
| Address | Price | Distance |
|---|---|---|
| 42 Gordon Road | £ 510,000 | 0.00 KM |
| 34 Gordon Road | £ 116,000 | 0.00 KM |
| 22 Gordon Road | £ 130,000 | 0.00 KM |
| 36a Gordon Road | £ 350,000 | 0.00 KM |
| 28 Gordon Road | £ 359,000 | 0.00 KM |