Hamilton Smith says ..
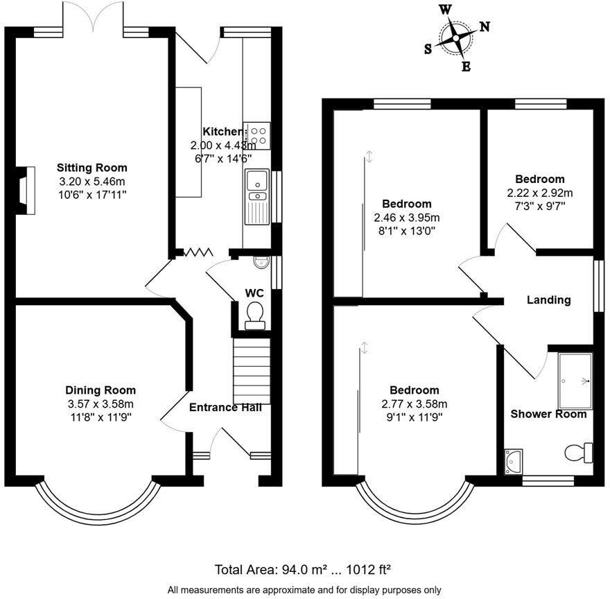
NO CHAIN - A SPACIOUS & well presented 3 bedroom semi detached family house situated on the popular Crofts development. This beautifully presented property benefits from a 18ft family room, dining room, fitted kitchen, cloakroom, 1st floor bathroom, double glazed windows, gas central heating with...
Property Oracle says ..
This three-bedroom semi-detached house in Ipswich, Suffolk is located on Beechcroft Road in the Castle Hill area. The property benefits from being close to local schools such as St Pancras Catholic Primary School (0.43 km) and Highfield Nursery School (0.45 km), which received an Outstanding Ofsted rating. Transport links are also convenient, with Ipswich train station approximately 3.29 km away. The house itself has a traditional style, and the images show it to be in reasonable condition, though some modernisation may be desirable. It features a garden, and the plot size is 1,012 sqft. The list price of £285,000 is slightly below the average price for the area (£337,647), but the average sqft in the area is significantly higher (1,234 sqft vs 703 sqft). Considering its condition, location, and size, the price seems reasonable.
Therefore, we give this property 7 / 10. *Disclaimer: This is our option and does constitute a recommendation or financial advice. Do your own research. *
- Price
- 7
- Condition
- 7
- Location
- 8
- Land
- 7
- Bedrooms
- 3
- Bathrooms
- 1
- Sqft (est)
- 703.00
- Lot (est)
- 1,012.00
The heatmap indicates the level of crime in the area. The color of the heatmap indicates the crime severity and recency.
Metrics Year-on-Year
- Average area value
- 275,000.00 £Decreased by 9.87 %
- Est sale value
- 207,385.00 £Decreased by 8.67 %
- Average area rental value
- 1,300.00 £/moIncreased by 27.45 %
- Est letting value
- 703.00 £/moUnchanged by 0.00 %
- Est rental Yield
- 5.67 %Increased by 41.40 %
- Crime Rate
- 3.00 %Unchanged by 0.00 %
Agent Activity
Hamilton Smith created the listing.
Nearby Schools
| Name | Type | Ofsted | Distance |
|---|---|---|---|
| St Pancras Catholic Primary School | Academy Converter | 0.43 KM | |
| Highfield Nursery School | Local Authority Nursery School | Outstanding | 0.45 KM |
| Highfield Children'S Centre | Children's Centre | 0.47 KM | |
| Castle Hill Junior School | Academy Sponsor Led | Requires improvement | 0.65 KM |
| Castle Hill Infant School | Academy Sponsor Led | Good | 0.65 KM |
Images
Nearby Streets
| Name | Average Price | Average Sqft | Distance |
|---|---|---|---|
| Charlton Avenue | £ 315,000 | 0 | 0.00 KM |
| Blake Road | £ 0 | 0 | 0.00 KM |
| Hardy Crescent | £ 0 | 0 | 0.00 KM |
| Stratford Road | £ 245,000 | 0 | 0.00 KM |
| Meredith Road | £ 0 | 0 | 0.00 KM |
Nearby Transport
| Name | NLC | TLC | Distance |
|---|---|---|---|
| Ipswich | 7217 | IPS | 3.29 KM |
| Westerfield | 7226 | WFI | 3.38 KM |
| Derby Road (Ipswich) | 7212 | DBR | 6.10 KM |
Nearby Listings
| Address | Price | Type | Score | Distance |
|---|---|---|---|---|
| Beechcroft Road, Ipswich | £ 285,000 | BUY | 7 / 10 | 0.00 KM |
| Beechcroft Road, Ipswich, Suffolk, IP1 | £ 260,000 | BUY | Unknown | 0.02 KM |
| Cedarcroft Road, Ipswich | £ 350,000 | BUY | 7 / 10 | 0.07 KM |
| Cedarcroft Road, Ipswich | £ 360,000 | BUY | 6 / 10 | 0.11 KM |
| Cedarcroft Road, Ipswich, Suffolk | £ 295,000 | BUY | Unknown | 0.11 KM |
Nearby Properties
| Address | Price | Distance |
|---|---|---|
| 95 Cedarcroft Road | £ 165,000 | 0.11 KM |
| 81 Cedarcroft Road | £ 235,000 | 0.11 KM |
| 76 Cedarcroft Road | £ 237,500 | 0.11 KM |
| 77 Cedarcroft Road | £ 215,000 | 0.11 KM |
| 4 Burke Road | £ 185,000 | 0.11 KM |