Priory Road, Tonbridge
By RPC Land and New Homes
£ 150,000
Reviews
2 out of 5 stars
RPC Land and New Homes says ..
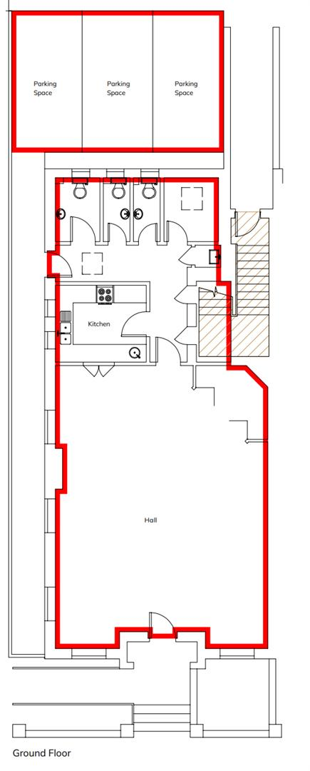
An Exciting Opportunity for a former Church Hall in Tonbridge Property (Suitable for a variety of uses STP)
Property Oracle says ..
The property is located on Priory Road in Tonbridge, Kent. It is a commercial property, likely a former church hall or similar, that has been converted. The building appears to be in good condition, well-maintained, and clean. The property is relatively small with 1607.88 sqft and no land. The location is convenient, with nearby schools and transportation options. However, the list price of £150,000 seems high compared to the average price per sqft in the area (£450) and nearby comparable properties. The lack of bedrooms and bathrooms would also significantly limit its potential use and appeal to buyers.
Therefore, we give this property 5 / 10. *Disclaimer: This is our option and does constitute a recommendation or financial advice. Do your own research. *
- Price
- 4
- Condition
- 8
- Location
- 7
- Land
- 1
- Bedrooms
- 0
- Bathrooms
- 0
- Sqft (est)
- 1,607.88
The heatmap indicates the level of crime in the area. The color of the heatmap indicates the crime severity and recency.
Metrics Year-on-Year
- Average area value
- 456,000.00 £Increased by 25.16 %
- Est sale value
- 1,154,457.84 £Increased by 65.44 %
- Average area rental value
- 1,667.00 £/moIncreased by 20.45 %
- Est letting value
- 3,215.76 £/moIncreased by 100.00 %
- Est rental Yield
- 4.39 %Decreased by 3.73 %
- Crime Rate
- 6.00 %Unchanged by 0.00 %
Agent Activity
RPC Land and New Homes created the listing.
Nearby Schools
| Name | Type | Ofsted | Distance |
|---|---|---|---|
| Royal Rise Primary School | Academy Sponsor Led | Good | 0.37 KM |
| Tonbridge Grammar School | Academy Converter | Outstanding | 0.71 KM |
| Hillview School For Girls | Academy Converter | Good | 0.75 KM |
| South Tonbridge Children'S Centre | Children's Centre | 0.75 KM | |
| Weald Of Kent Grammar School | Academy Converter | 0.80 KM |
Images
Nearby Streets
| Name | Average Price | Average Sqft | Distance |
|---|---|---|---|
| Tannery Road | £ 0 | 0 | 0.00 KM |
| High Street | £ 260,500 | 0 | 0.00 KM |
| Pembury Road | £ 995,000 | 0 | 0.00 KM |
| Lyons Crescent | £ 330,357 | 0 | 0.00 KM |
| High Street | £ 252,000 | 0 | 0.00 KM |
Nearby Transport
| Name | NLC | TLC | Distance |
|---|---|---|---|
| Tonbridge | 5229 | TON | 0.71 KM |
| High Brooms | 5235 | HIB | 4.55 KM |
| Hildenborough | 5236 | HLB | 6.12 KM |
| Tunbridge Wells | 5230 | TBW | 6.88 KM |
| Leigh (Kent) | 5294 | LIH | 7.40 KM |
Nearby Listings
| Address | Price | Type | Score | Distance |
|---|---|---|---|---|
| Priory Road, Tonbridge | £ 150,000 | BUY | 5 / 10 | 0.00 KM |
| Priory Road, Tonbridge | £ 325,000 | BUY | 7 / 10 | 0.04 KM |
| Priory Road, Tonbridge, Kent | £ 325,000 | BUY | 6 / 10 | 0.07 KM |
| Priory Road, Tonbridge | £ 575,000 | BUY | 7 / 10 | 0.07 KM |
| St. Eanswythe's Court, Tonbridge | £ 220,000 | BUY | 6 / 10 | 0.08 KM |
Nearby Properties
| Address | Price | Distance |
|---|---|---|
| 46 Priory Road | £ 310,000 | 0.07 KM |
| 72 Priory Road | £ 325,000 | 0.07 KM |
| 68 Priory Road | £ 170,000 | 0.07 KM |
| 44 Priory Road | £ 365,000 | 0.07 KM |
| 64 Priory Road | £ 154,000 | 0.07 KM |