Notting Hill, London, W14, W14
By Chancellors
£ 3,000,000
Reviews
4 out of 5 stars
Chancellors says ..
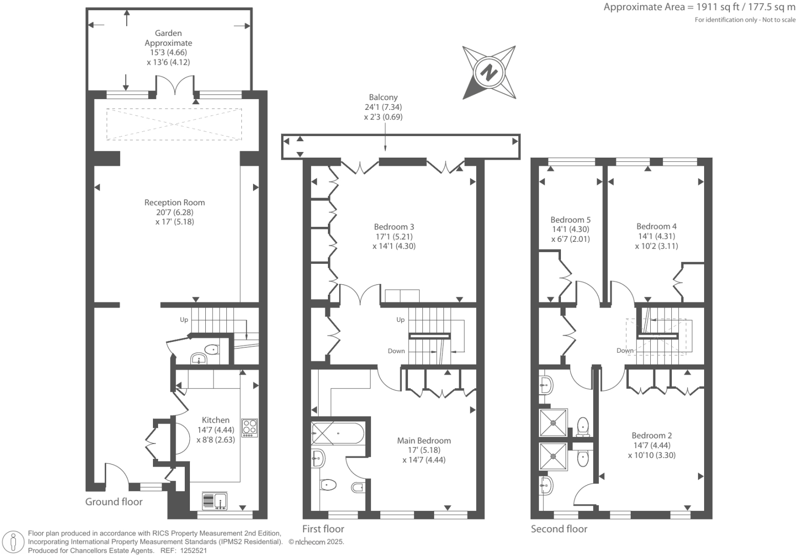
A freehold house situated in a desirable private road, benefiting from a private rear garden, two off-street parking spaces and 0.3 miles to Holland Park. Viewings are highly recommended.
Property Oracle says ..
The property is located in the highly desirable Notting Hill area of London, known for its affluent community and excellent amenities. It appears to be in excellent condition, with a modern interior and well-maintained garden. The list price is somewhat higher than the average for the area but is within the range of comparable properties on Edwardes Square, suggesting it may be a reasonable price, given the property’s condition and location.
Therefore, we give this property 8 / 10. *Disclaimer: This is our option and does constitute a recommendation or financial advice. Do your own research. *
- Price
- 8
- Condition
- 9
- Location
- 10
- Land
- 7
- Bedrooms
- 3
- Bathrooms
- 2
- Sqft (est)
- 1,615.25
- Lot (est)
- 1,911.00
The heatmap indicates the level of crime in the area. The color of the heatmap indicates the crime severity and recency.
Metrics Year-on-Year
- Average area value
- 1,716,071.00 £Decreased by 29.21 %
- Est sale value
- 2,899,373.75 £Decreased by 1.64 %
- Average area rental value
- 3,757.00 £/moIncreased by 47.28 %
- Est letting value
- 4,845.75 £/moIncreased by 200.00 %
- Est rental Yield
- 2.63 %Increased by 108.73 %
- Crime Rate
- 3.00 %Unchanged by 0.00 %
Agent Activity
Chancellors created the listing.
Nearby Schools
| Name | Type | Ofsted | Distance |
|---|---|---|---|
| Kensington Wade | Other Independent School | Outstanding | 0.35 KM |
| St Barnabas And St Philip'S Cofe Primary School | Voluntary Aided School | Outstanding | 0.40 KM |
| Kensington Primary Academy | Academy Sponsor Led | Outstanding | 0.43 KM |
| Snowflake School | Other Independent Special School | Outstanding | 0.65 KM |
| Avonmore Neighbourhood Family Centre | Children's Centre Linked Site | 0.75 KM |
Images
Nearby Streets
| Name | Average Price | Average Sqft | Distance |
|---|---|---|---|
| Melbury Court | £ 5,500,000 | 0 | 0.00 KM |
| Avonmore Road | £ 4,000,000 | 0 | 0.00 KM |
| Napier Close | £ 0 | 0 | 0.00 KM |
| Holland Road | £ 0 | 0 | 0.00 KM |
| Kensington High Street | £ 0 | 0 | 0.00 KM |
Nearby Transport
| Name | NLC | TLC | Distance |
|---|---|---|---|
| Kensington (Olympia) | 3092 | KPA | 0.93 KM |
| West Brompton | 8875 | WBP | 1.31 KM |
| Shepherd'S Bush | 9587 | SPB | 1.96 KM |
| Imperial Wharf | 9586 | IMW | 3.24 KM |
| Paddington | 3087 | PAD | 3.55 KM |
Nearby Listings
| Address | Price | Type | Score | Distance |
|---|---|---|---|---|
| Notting Hill, London, W14, W14 | £ 3,000,000 | BUY | 8 / 10 | 0.00 KM |
| Edwardes Square, Kensington, London, W8, United Kingdom | £ 4,950,000 | BUY | 7 / 10 | 0.04 KM |
| Kensington High street, kensington, London | £ 1,590,000 | BUY | 9 / 10 | 0.07 KM |
| Pembroke Studios, Pembroke Gardens, London | £ 4,350,000 | BUY | 7 / 10 | 0.08 KM |
| Edwardes Place, LONDON, W8 | £ 6,500,000 | BUY | 9 / 10 | 0.10 KM |
Nearby Properties
| Address | Price | Distance |
|---|---|---|
| 44 Edwardes Square | £ 1,355,000 | 0.03 KM |
| 45 Edwardes Square | £ 2,750,000 | 0.03 KM |
| 43 Edwardes Square | £ 4,050,000 | 0.03 KM |
| 31 Edwardes Square | £ 3,150,000 | 0.03 KM |
| 35 Edwardes Square | £ 6,850,000 | 0.03 KM |