Goodfellows says ..
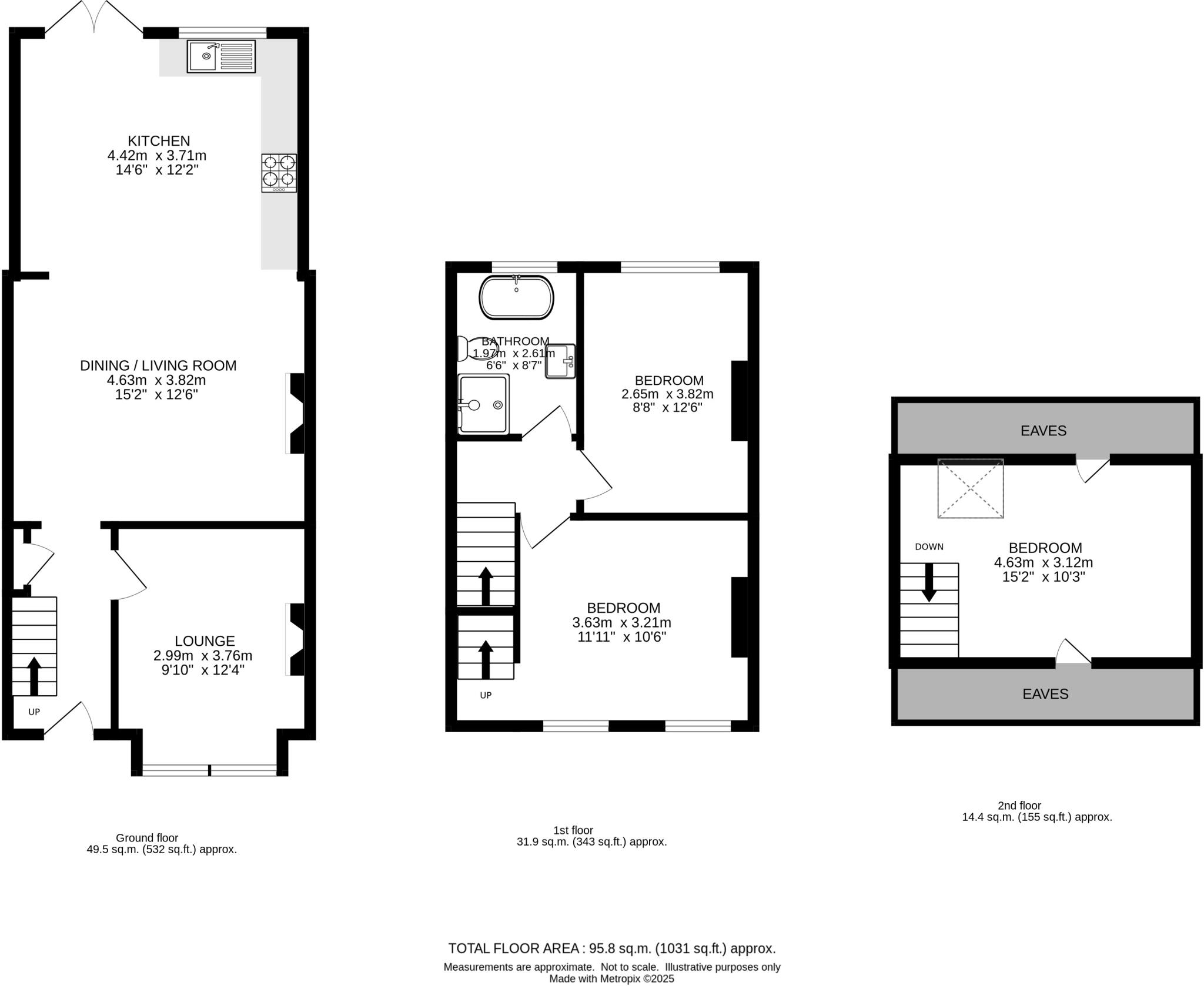
A beautifully modernised and extended mid-terrace house located in a popular area of Carshalton. The ground floor accommodation features a stunning open plan kitchen, dining and living area with feature open fireplace and tiled flooring, together with a separate front reception room with shuttere...
Property Oracle says ..
The property is a 3-bedroom terraced house located on Stanley Road in Carshalton, South London. The list price is £525,000. The property appears to have undergone a significant modernisation and extension, boasting a contemporary open-plan kitchen/living area with a feature brick wall and fireplace. The garden is well-maintained and includes a paved patio area and a pergola. There is also off-street parking. The property benefits from three bedrooms, one of which is located in a converted loft space. The average house price in the area is £631,219, with an average price per square foot of £542. Given the property’s size of 1,031.18 sqft and its modern features, the list price of £525,000 appears to be slightly below the average price per sqft for the area. However, this is also taking into account the lack of plot size. The nearby comparable properties on Stanley Road range from £185,000 to £500,000, indicating some price variability within the street. The proximity to good schools and transport links in Carshalton adds to the property’s desirability. Considering the above, the property presents a good balance of modern amenities, location, and price.
Therefore, we give this property 7 / 10. *Disclaimer: This is our option and does constitute a recommendation or financial advice. Do your own research. *
- Price
- 7
- Condition
- 9
- Location
- 8
- Land
- 6
- Bedrooms
- 3
- Bathrooms
- 1
- Sqft (est)
- 1,031.18
The heatmap indicates the level of crime in the area. The color of the heatmap indicates the crime severity and recency.
Metrics Year-on-Year
- Average area value
- 696,454.00 £Increased by 10.30 %
- Est sale value
- 452,688.02 £Decreased by 26.59 %
- Average area rental value
- 2,621.00 £/moIncreased by 16.90 %
- Est letting value
- 1,031.18 £/moDecreased by 50.00 %
- Est rental Yield
- 4.52 %Increased by 6.10 %
- Crime Rate
- 14.00 %Unchanged by 0.00 %
Agent Activity
Goodfellows created the listing.
Nearby Schools
| Name | Type | Ofsted | Distance |
|---|---|---|---|
| Stanley Park Children'S Centre | Children's Centre | 0.47 KM | |
| Stanley Park Junior School | Foundation School | Good | 0.47 KM |
| Stanley Park Infants School | Academy Converter | 0.47 KM | |
| Sutton Tuition And Reintegration Service | Pupil Referral Unit | Outstanding | 0.47 KM |
| Oaks Park High School | Academy Converter | 0.73 KM |
Images
Nearby Streets
| Name | Average Price | Average Sqft | Distance |
|---|---|---|---|
| Pine Ridge | £ 0 | 0 | 0.00 KM |
| Parkview Close | £ 525,000 | 0 | 0.00 KM |
| Cedar Close | £ 1,250,000 | 0 | 0.00 KM |
| Grosvenor Avenue | £ 974,975 | 0 | 0.00 KM |
| Chestnut Court | £ 710,000 | 0 | 0.00 KM |
Nearby Transport
| Name | NLC | TLC | Distance |
|---|---|---|---|
| Carshalton Beeches | 5406 | CSB | 1.12 KM |
| Wallington | 5394 | WLT | 1.63 KM |
| Carshalton | 5405 | CSH | 2.01 KM |
| Hackbridge | 5364 | HCB | 3.13 KM |
| Sutton | 5385 | SUO | 3.36 KM |
Nearby Listings
| Address | Price | Type | Score | Distance |
|---|---|---|---|---|
| Stanley Road, Carshalton, SM5 | £ 525,000 | BUY | 7 / 10 | 0.00 KM |
| Stanley Road, Carshalton | £ 300,000 | BUY | 5 / 10 | 0.01 KM |
| Stanley Road, Carshalton, Surrey | £ 485,000 | BUY | 7 / 10 | 0.04 KM |
| Stanley Road, Carshalton, Surrey | £ 250,000 | BUY | 7 / 10 | 0.07 KM |
| Stanley Road, Carshalton | £ 425,000 | BUY | 6 / 10 | 0.09 KM |
Nearby Properties
| Address | Price | Distance |
|---|---|---|
| 128 Stanley Road | £ 248,000 | 0.05 KM |
| 118 Stanley Road | £ 677,000 | 0.05 KM |
| 138 Stanley Road | £ 453,800 | 0.05 KM |
| 114 Stanley Road | £ 189,950 | 0.05 KM |
| 146 Stanley Road | £ 185,000 | 0.05 KM |