PR
Deepfield Road, Bracknell, Berkshire, RG12
By Prospect Estate Agency
£ 500,000
Reviews
3 out of 5 stars
Prospect Estate Agency says ..
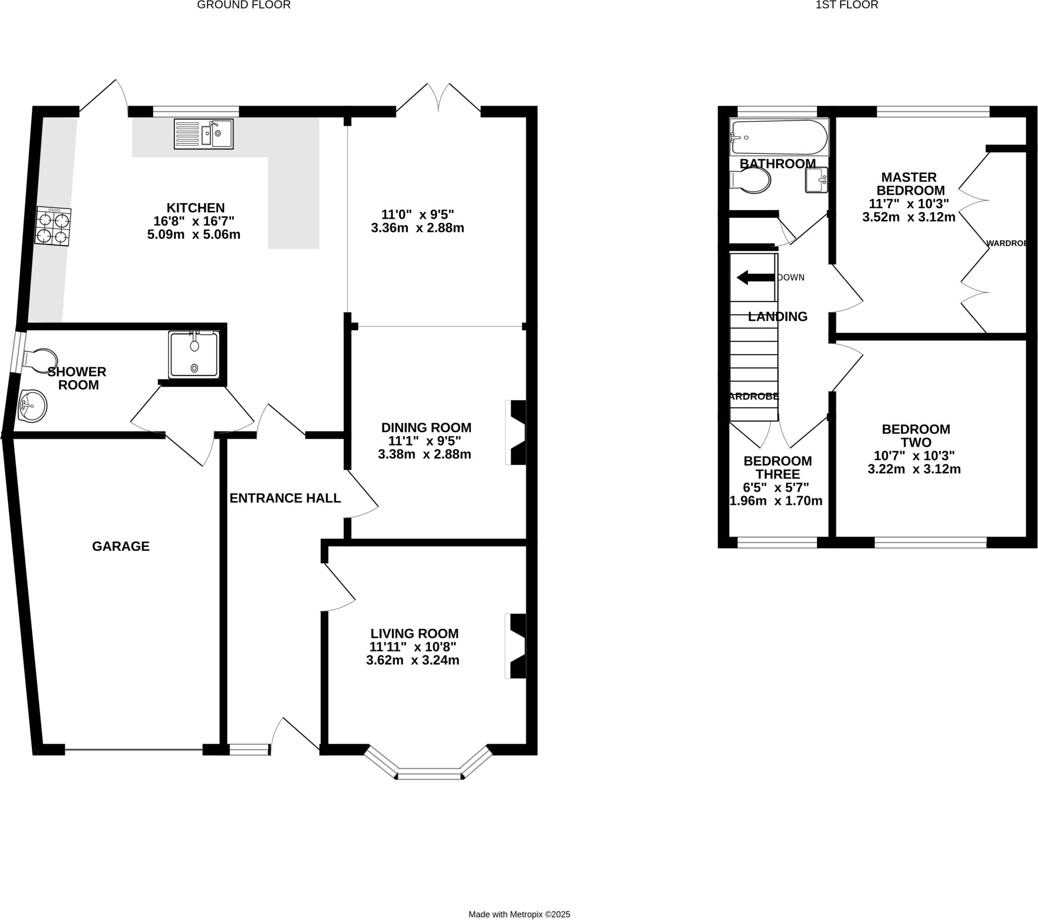
OFFERING SUPERB POTENTIAL LARGE REAR GARDEN EXTENSION POTENTIAL STPP This semi-detached family home is located within close proximity to Bracknell town centre and mainline train station. To the ground floor the property comprises a bay fronted living room, shower...
Property Oracle says ..
Therefore, we give this property 6 / 10. *Disclaimer: This is our option and does constitute a recommendation or financial advice. Do your own research. *
- Price
- 4
- Condition
- 5
- Location
- 8
- Land
- 7
- Bedrooms
- 3
- Bathrooms
- 2
- Sqft (est)
- 769.94
The heatmap indicates the level of crime in the area. The color of the heatmap indicates the crime severity and recency.
Metrics Year-on-Year
- Average area value
- 333,000.00 £Decreased by 4.86 %
- Est sale value
- 330,304.26 £Increased by 30.00 %
- Average area rental value
- 1,472.00 £/moIncreased by 12.45 %
- Est letting value
- 769.94 £/moUnchanged by 0.00 %
- Est rental Yield
- 5.30 %Increased by 18.04 %
- Crime Rate
- 14.00 %Unchanged by 0.00 %
from 349,994.00 £
from 254,080.20 £
from 1,309.00 £/mo
from 769.94 £/mo
from 4.49 %
from 14.00 %
Agent Activity
Prospect Estate Agency created the listing.
Nearby Schools
| Name | Type | Ofsted | Distance |
|---|---|---|---|
| Holly Spring Primary School | Community School | Good | 0.48 KM |
| St Joseph'S Catholic Primary School, Bracknell | Voluntary Aided School | Outstanding | 0.54 KM |
| Warfield Church Of England Primary School | Voluntary Controlled School | Good | 0.82 KM |
| Garth Hill College | Community School | Good | 1.13 KM |
| Maples Children'S Centre | Children's Centre Linked Site | 1.15 KM |
Images
Nearby Streets
| Name | Average Price | Average Sqft | Distance |
|---|---|---|---|
| Barn Close | £ 375,000 | 0 | 0.00 KM |
| Eastern Road Roundabout | £ 90,000 | 0 | 0.00 KM |
| Dashwood Close | £ 585,000 | 0 | 0.00 KM |
| Brants Bridge Apartments | £ 0 | 0 | 0.00 KM |
| Rupert Villas | £ 0 | 0 | 0.00 KM |
Nearby Transport
| Name | NLC | TLC | Distance |
|---|---|---|---|
| Bracknell | 5693 | BCE | 1.70 KM |
| Martins Heron | 5692 | MAO | 1.79 KM |
| Ascot (Berks) | 5666 | ACT | 6.88 KM |
| Bagshot | 5681 | BAG | 7.97 KM |
| Camberley | 5682 | CAM | 9.08 KM |
Nearby Listings
| Address | Price | Type | Score | Distance |
|---|---|---|---|---|
| Deepfield Road, Bracknell, Berkshire, RG12 | £ 500,000 | BUY | 6 / 10 | 0.00 KM |
| Deepfield Road, Bracknell, Berkshire, RG12 | £ 600,000 | BUY | Unknown | 0.04 KM |
| Deepfield Road, Bracknell | £ 475,000 | BUY | 7 / 10 | 0.05 KM |
| North Green Bracknell, Berkshire, RG12 2NY | £ 400,000 | BUY | Unknown | 0.17 KM |
| London Road, Bracknell, Berkshire, RG12 | £ 215,000 | BUY | 6 / 10 | 0.17 KM |
Nearby Properties
| Address | Price | Distance |
|---|---|---|
| 116 Deepfield Road | £ 300,000 | 0.01 KM |
| 118 Deepfield Road | £ 162,000 | 0.01 KM |
| 100 Deepfield Road | £ 380,000 | 0.01 KM |
| 104 Deepfield Road | £ 240,000 | 0.01 KM |
| 96 Deepfield Road | £ 234,000 | 0.01 KM |