Yopa says ..
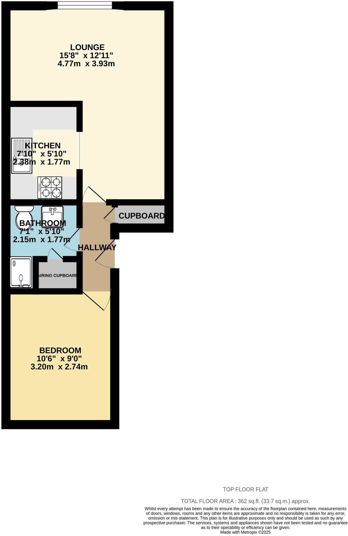
We are pleased to offer a top floor one bedroom flat in the popular Maltby Drive in Enfield. The property is a fantastic opportunity for investors and landlords and is currently let at £1100pcm.
Property Oracle says ..
Therefore, we give this property 5 / 10. *Disclaimer: This is our option and does constitute a recommendation or financial advice. Do your own research. *
- Price
- 8
- Condition
- 5
- Location
- 7
- Land
- 3
- Bedrooms
- 1
- Bathrooms
- 1
- Sqft (est)
- 362.74
The heatmap indicates the level of crime in the area. The color of the heatmap indicates the crime severity and recency.
Metrics Year-on-Year
- Average area value
- 368,998.00 £Decreased by 16.13 %
- Est sale value
- 243,035.80 £Increased by 45.97 %
- Average area rental value
- 1,975.00 £/moIncreased by 4.77 %
- Est letting value
- 1,088.22 £/moIncreased by 200.00 %
- Est rental Yield
- 6.42 %Increased by 24.90 %
- Crime Rate
- 14.00 %Unchanged by 0.00 %
from 439,986.00 £
from 166,497.66 £
from 1,885.00 £/mo
from 362.74 £/mo
from 5.14 %
from 14.00 %
Agent Activity
Yopa created the listing.
Nearby Schools
| Name | Type | Ofsted | Distance |
|---|---|---|---|
| Russet House School | Community Special School | Outstanding | 0.57 KM |
| St Ignatius College | Voluntary Aided School | Good | 0.69 KM |
| Carterhatch Junior School | Academy Converter | Good | 0.70 KM |
| Carterhatch Infant School | Community School | Good | 0.70 KM |
| Radiomarathon Children'S Centre | Children's Centre Linked Site | 0.80 KM |
Images
Nearby Streets
| Name | Average Price | Average Sqft | Distance |
|---|---|---|---|
| Sheppard Close | £ 0 | 0 | 0.00 KM |
| Noah's Close | £ 0 | 0 | 0.00 KM |
| Holbrook Close | £ 0 | 0 | 0.00 KM |
| Charnwood Road | £ 0 | 0 | 0.00 KM |
| Hertford Road | £ 479,000 | 0 | 0.00 KM |
Nearby Transport
| Name | NLC | TLC | Distance |
|---|---|---|---|
| Turkey Street | 6952 | TUR | 0.97 KM |
| Southbury | 6947 | SBU | 2.04 KM |
| Enfield Lock | 6815 | ENL | 2.84 KM |
| Brimsdown | 6810 | BMD | 2.85 KM |
| Enfield Town | 6959 | ENF | 3.26 KM |
Nearby Listings
| Address | Price | Type | Score | Distance |
|---|---|---|---|---|
| Maltby Drive, Enfield, EN1 | £ 225,000 | BUY | 5 / 10 | 0.00 KM |
| Maltby Drive, Enfield | £ 265,000 | BUY | 6 / 10 | 0.05 KM |
| Maltby Drive, Enfield | £ 265,000 | BUY | Unknown | 0.05 KM |
| Rossington Close, Enfield | £ 500,000 | BUY | 5 / 10 | 0.06 KM |
| Rossington Close, Enfield | £ 410,000 | BUY | 7 / 10 | 0.07 KM |
Nearby Properties
| Address | Price | Distance |
|---|---|---|
| 54 Maltby Drive | £ 185,000 | 0.00 KM |
| 66 Maltby Drive | £ 72,000 | 0.00 KM |
| 37 Maltby Drive | £ 183,000 | 0.00 KM |
| 56 Maltby Drive | £ 250,000 | 0.00 KM |
| 39 Maltby Drive | £ 64,000 | 0.00 KM |