Farr & Farr says ..
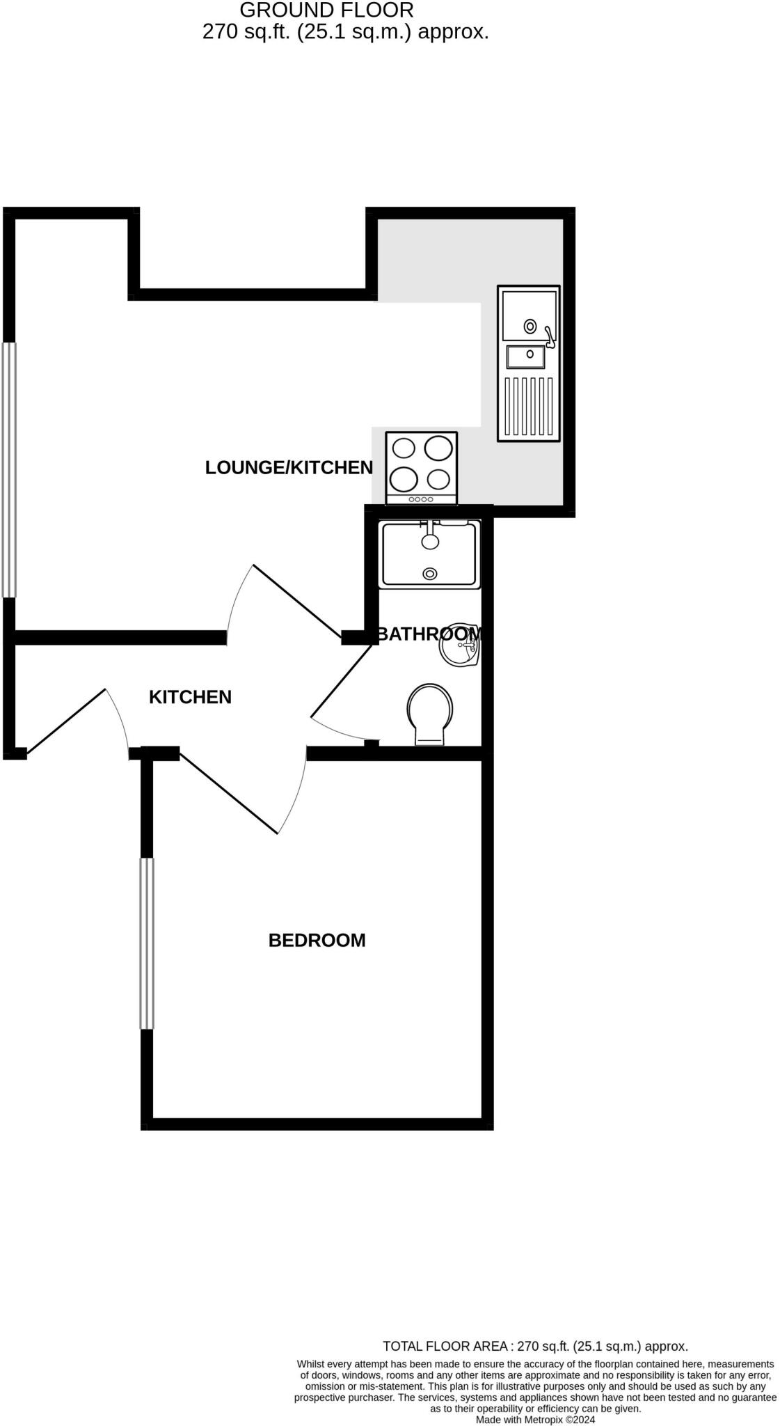
This charming one bedroom apartment benefits from a private front door and sits just a stone's throw away from Gloucester Quays. Accessed via gated parking and with an allocated parking space, the front door opens into a small entrance hall and through to the cosy kitchen / living room. ...
Property Oracle says ..
This property is a one-bedroom flat located on Southgate Street in Gloucester. The flat is modern and well-presented, appearing to be in excellent condition based on the provided images. While the property itself is in good condition and has a modern design, the lack of outdoor space is a notable drawback. The location is convenient, with nearby schools, transportation links (Gloucester train station is 1.33km away), and amenities. However, the list price of £127,000 is significantly below the average price for the area (£258,798), and the average price per square foot is also lower (£296 compared to an area average of £874). This suggests that the property may represent good value for money, although further investigation into the specific reasons for the lower price is recommended. The small plot size is a significant factor in the overall assessment.
Therefore, we give this property 6 / 10. *Disclaimer: This is our option and does constitute a recommendation or financial advice. Do your own research. *
- Price
- 8
- Condition
- 9
- Location
- 7
- Land
- 1
- Bedrooms
- 1
- Bathrooms
- 1
- Sqft (est)
- 300.00
- Lot (est)
- 270.00
The heatmap indicates the level of crime in the area. The color of the heatmap indicates the crime severity and recency.
Metrics Year-on-Year
- Average area value
- 222,854.00 £Decreased by 15.77 %
- Est sale value
- 86,400.00 £Decreased by 6.19 %
- Average area rental value
- 1,201.00 £/moIncreased by 7.91 %
- Est letting value
- 300.00 £/moUnchanged by 0.00 %
- Est rental Yield
- 6.47 %Increased by 28.12 %
- Crime Rate
- 12.00 %Unchanged by 0.00 %
Agent Activity
Farr & Farr created the listing.
Nearby Schools
| Name | Type | Ofsted | Distance |
|---|---|---|---|
| St Paul'S Church Of England Primary School | Voluntary Controlled School | Good | 0.57 KM |
| The King'S School, Gloucester | Other Independent School | 0.92 KM | |
| Linden Primary School | Community School | Good | 1.29 KM |
| The Lighthouse | Children's Centre | 1.37 KM | |
| Kingsholm Church Of England Primary School | Voluntary Controlled School | Outstanding | 1.48 KM |
Images
Nearby Streets
| Name | Average Price | Average Sqft | Distance |
|---|---|---|---|
| Somerset Place | £ 0 | 0 | 0.00 KM |
| Barbican Road | £ 0 | 0 | 0.00 KM |
| High Orchard Street | £ 280,000 | 0 | 0.00 KM |
| Saint Ann Way | £ 0 | 0 | 0.00 KM |
| Marylone | £ 0 | 0 | 0.00 KM |
Nearby Transport
| Name | NLC | TLC | Distance |
|---|---|---|---|
| Gloucester | 4760 | GCR | 1.33 KM |
Nearby Listings
| Address | Price | Type | Score | Distance |
|---|---|---|---|---|
| Southgate Street, Gloucester | £ 127,000 | BUY | 6 / 10 | 0.00 KM |
| Southgate Street, Gloucester | £ 180,000 | BUY | 6 / 10 | 0.00 KM |
| Albion House, Southgate Street, Gloucester | £ 185,000 | BUY | 8 / 10 | 0.02 KM |
| Southgate Street, Gloucester, Gloucestershire, GL1 | £ 140,000 | BUY | 5 / 10 | 0.02 KM |
| Southgate Street, Gloucester, GL1 | £ 165,000 | BUY | 5 / 10 | 0.02 KM |
Nearby Properties
| Address | Price | Distance |
|---|---|---|
| 10 Albion Street | £ 140,000 | 0.07 KM |
| 3 Albion Street | £ 272,000 | 0.07 KM |
| 6 Albion Street | £ 32,500 | 0.08 KM |
| 1 Maitland Mews | £ 165,000 | 0.12 KM |
| 11 Norfolk Street | £ 135,000 | 0.12 KM |