Sandown Road, Deal, CT14
By Jenkinson Estates
£ 625,000
Reviews
3 out of 5 stars
Jenkinson Estates says ..
Situated within a minutes’ walk from the far reaching promenade and beach at Deal, within the Conservation Area and just down from the well known Middle Street, is this detached home. No, arguably it does not appear detached, but the infill at the front has been done to sympathetically comp...
Property Oracle says ..
This three-bedroom, two-bathroom property in Deal, Kent is presented in excellent condition. The photos reveal a recently renovated interior with a contemporary design and high-quality finishes. The kitchen and bathrooms are particularly modern and well-equipped. The property benefits from a garden, which provides additional outdoor space. The location is in a residential area that offers proximity to the beach and the town centre of Deal. Transport links are decent via the nearby Deal train station. Local schools are also within reach, although their Ofsted ratings are unavailable from the provided data. While the property appears to be a desirable option in a good location, the lack of detailed information on plot size and precise local comparable sales data makes a comprehensive evaluation of the price difficult. Overall, it appears to be a well-maintained family home with some modern features in a convenient location near the Kent coastline.
Therefore, we give this property 7 / 10. *Disclaimer: This is our option and does constitute a recommendation or financial advice. Do your own research. *
- Price
- 7
- Condition
- 9
- Location
- 7
- Land
- 6
- Bedrooms
- 3
- Bathrooms
- 2
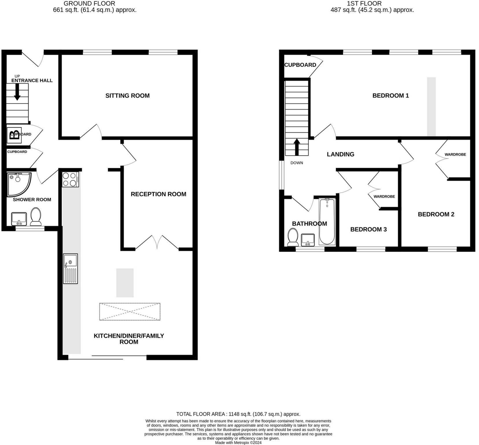
- Sqft (est)
- 1,148.70
The heatmap indicates the level of crime in the area. The color of the heatmap indicates the crime severity and recency.
Metrics Year-on-Year
- Average area value
- 505,375.00 £Increased by 53.39 %
- Est sale value
- 567,457.80 £Increased by 26.99 %
- Average area rental value
- 1,085.00 £/moDecreased by 20.22 %
- Est letting value
- 1,148.70 £/moUnchanged by 0.00 %
- Est rental Yield
- 2.58 %Decreased by 47.88 %
- Crime Rate
- 13.00 %Unchanged by 0.00 %
Agent Activity
Jenkinson Estates created the listing.
Nearby Schools
| Name | Type | Ofsted | Distance |
|---|---|---|---|
| Sandown School | Academy Converter | 0.47 KM | |
| Brewood Secondary School | Other Independent Special School | Good | 1.58 KM |
| Goodwin Academy | Academy Sponsor Led | 1.96 KM | |
| Deal Parochial Church Of England Primary School | Academy Converter | 1.99 KM | |
| Warden House Primary School | Academy Converter | Outstanding | 2.68 KM |
Images
Nearby Streets
| Name | Average Price | Average Sqft | Distance |
|---|---|---|---|
| Dibdin Road | £ 0 | 0 | 0.00 KM |
| Hengist Road | £ 0 | 0 | 0.00 KM |
| Peter Street | £ 0 | 0 | 0.00 KM |
| Brewer Street | £ 950,000 | 0 | 0.00 KM |
| Chapel Street | £ 0 | 0 | 0.00 KM |
Nearby Transport
| Name | NLC | TLC | Distance |
|---|---|---|---|
| Deal | 5011 | DEA | 0.88 KM |
| Walmer | 5041 | WAM | 3.69 KM |
| Sandwich | 5026 | SDW | 8.10 KM |
| Martin Mill | 5040 | MTM | 8.95 KM |
Nearby Listings
| Address | Price | Type | Score | Distance |
|---|---|---|---|---|
| Sandown Road, Deal, CT14 | £ 625,000 | BUY | 7 / 10 | 0.00 KM |
| Sandown Road, Deal, CT14 | £ 397,500 | BUY | 6 / 10 | 0.03 KM |
| North Street, Deal, Kent, CT14 | £ 410,000 | BUY | 6 / 10 | 0.04 KM |
| Alfred Square, Deal, Kent, CT14 | £ 545,000 | BUY | 5 / 10 | 0.05 KM |
| Alfred Square, Deal, Kent, CT14 | £ 650,000 | BUY | Unknown | 0.06 KM |
Nearby Properties
| Address | Price | Distance |
|---|---|---|
| 1a North Street | £ 307,500 | 0.03 KM |
| 11 North Street | £ 275,000 | 0.03 KM |
| 12 North Street | £ 345,000 | 0.03 KM |
| 9 North Street | £ 380,000 | 0.04 KM |
| 6 North Street | £ 225,000 | 0.04 KM |