North Wall says ..
Located in sought-after Crosby, this 3-bed semi offers bright spaces, versatile rooms, a generous kitchen, and low maintenance garden with garage. Perfect family home in prime location.
Property Oracle says ..
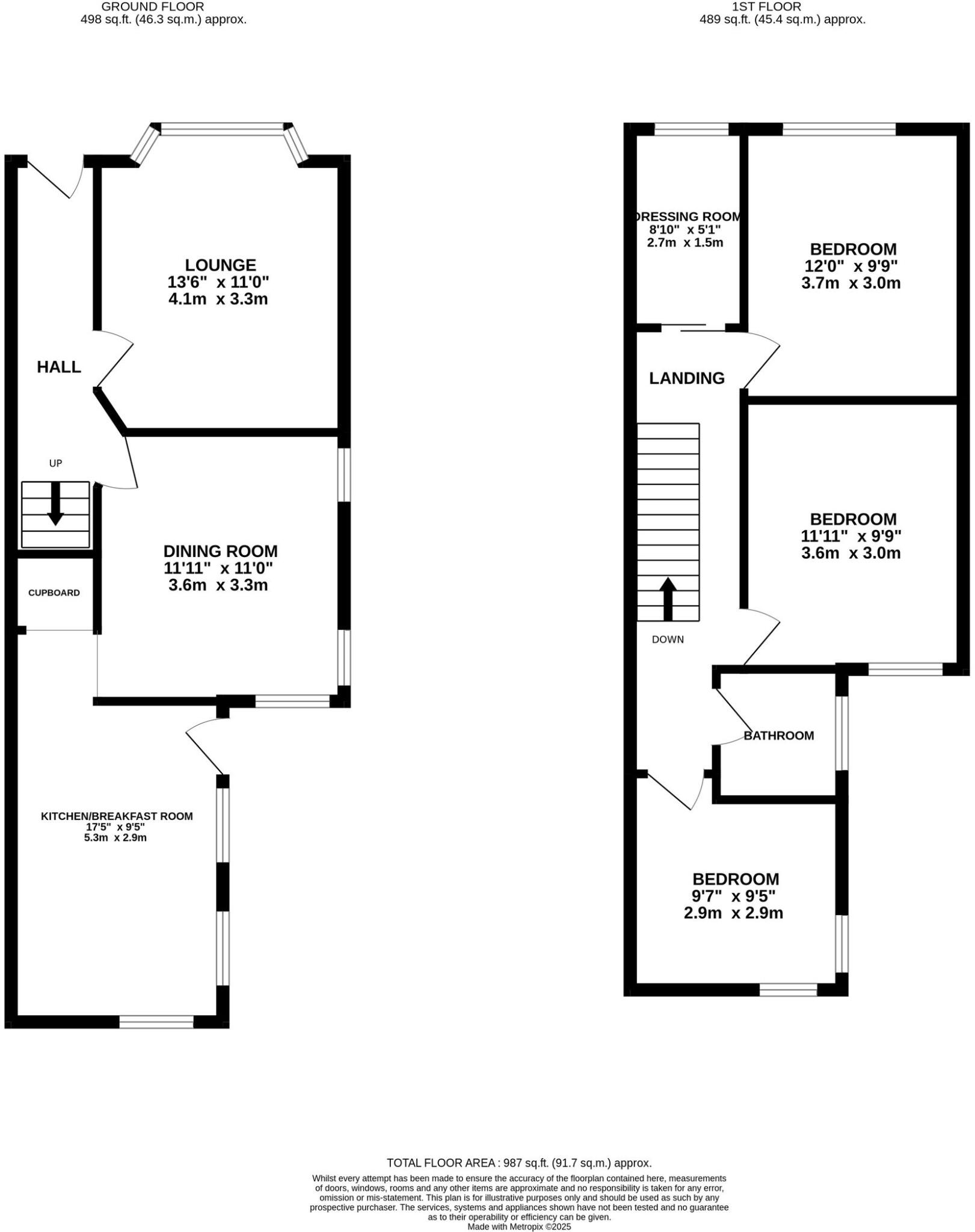
This semi-detached property on Rosedale Avenue in Crosby offers four bedrooms and a bathroom, making it suitable for families. The interior is modern and well-maintained, while the exterior and garden present opportunities for improvement. Its location provides convenient access to local schools and transportation links. The asking price of £270,000 aligns with the local market and the property’s attributes.
Therefore, we give this property 6 / 10. *Disclaimer: This is our option and does constitute a recommendation or financial advice. Do your own research. *
- Price
- 7
- Condition
- 7
- Location
- 7
- Land
- 5
- Bedrooms
- 4
- Bathrooms
- 1
The heatmap indicates the level of crime in the area. The color of the heatmap indicates the crime severity and recency.
Metrics Year-on-Year
- Average area value
- 273,072.00 £Decreased by 1.50 %
- Average area rental value
- 1,340.00 £/moIncreased by 9.39 %
- Est rental Yield
- 5.89 %Increased by 11.13 %
- Crime Rate
- 3.00 %Unchanged by 0.00 %
Agent Activity
North Wall created the listing.
Nearby Schools
| Name | Type | Ofsted | Distance |
|---|---|---|---|
| Great Crosby Catholic Primary School | Voluntary Aided School | Good | 0.21 KM |
| Sacred Heart Catholic College | Voluntary Aided School | Requires improvement | 0.45 KM |
| Merchant Taylors' Girls' School | Other Independent School | 0.62 KM | |
| St. Mary'S College | Other Independent School | 0.64 KM | |
| Merchant Taylors' Boys' School | Other Independent School | 0.74 KM |
Images
Nearby Streets
| Name | Average Price | Average Sqft | Distance |
|---|---|---|---|
| Wembley Road | £ 0 | 0 | 0.00 KM |
| Belvidere Road | £ 500,000 | 0 | 0.00 KM |
| Moor Lane | £ 0 | 0 | 0.00 KM |
| Tudor Road | £ 340,000 | 0 | 0.00 KM |
| Third Avenue | £ 0 | 0 | 0.00 KM |
Nearby Transport
| Name | NLC | TLC | Distance |
|---|---|---|---|
| Waterloo (Merseyside) | 2133 | WLO | 1.60 KM |
| Blundellsands And Crosby | 2123 | BLN | 2.17 KM |
| Seaforth And Litherland | 2250 | SFL | 2.93 KM |
| Hall Road | 2229 | HLR | 3.41 KM |
| Bootle New Strand | 2195 | BNW | 4.80 KM |
Nearby Listings
| Address | Price | Type | Score | Distance |
|---|---|---|---|---|
| Rosedale Avenue, Crosby, L23 | £ 270,000 | BUY | 6 / 10 | 0.00 KM |
| Rosedale Avenue, Liverpool | £ 280,000 | BUY | 7 / 10 | 0.00 KM |
| Rosedale Avenue, Crosby | £ 280,000 | BUY | 6 / 10 | 0.01 KM |
| Rosedale Avenue, Liverpool, L23 | £ 240,000 | BUY | 7 / 10 | 0.09 KM |
| Rosedale Avenue, Liverpool | £ 269,000 | BUY | 6 / 10 | 0.15 KM |
Nearby Properties
| Address | Price | Distance |
|---|---|---|
| 3a Endbutt Lane | £ 182,000 | 0.14 KM |
| 19 Endbutt Lane | £ 104,000 | 0.14 KM |
| 33 Endbutt Lane | £ 138,000 | 0.14 KM |
| 61 Endbutt Lane | £ 212,000 | 0.14 KM |
| 23 Endbutt Lane | £ 108,000 | 0.14 KM |