Meadow View, Warren Lane, Aston Crews, Ross-on-wye, Herefordshire, HR9
By John Goodwin FRICS
£ 750,000
Reviews
3 out of 5 stars
John Goodwin FRICS says ..
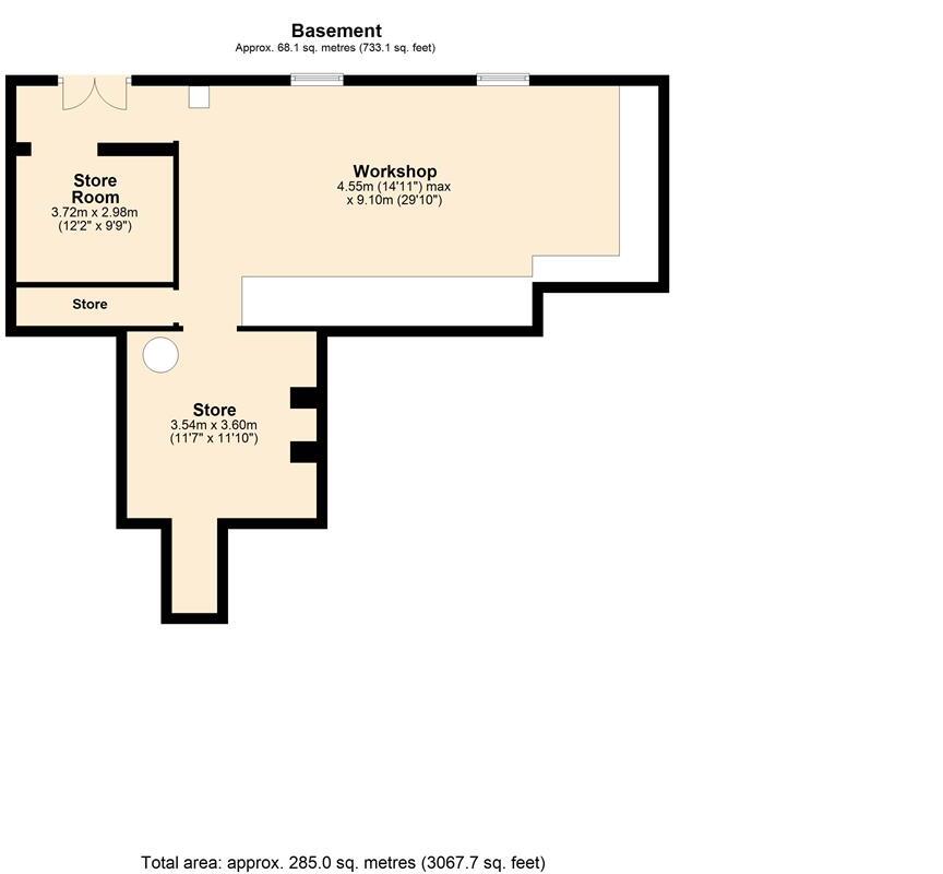
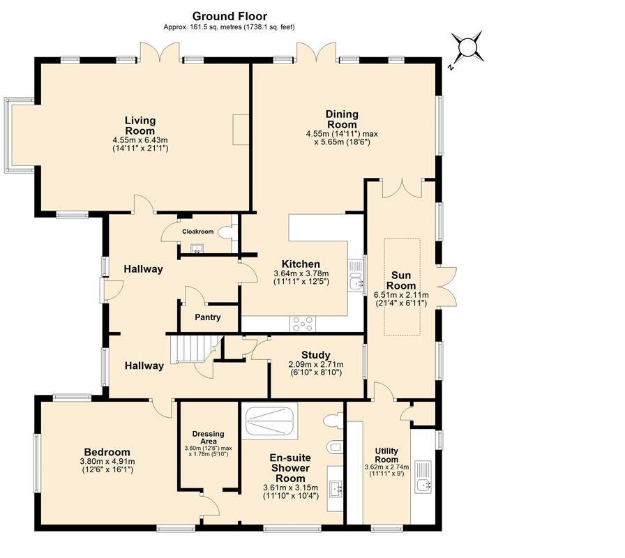
Deceptively Spacious And Superbly Appointed Three Bedroom Property Enjoying A Stunning Outlook Across Glorious Surrounding Rural Countryside. Double Garage, Gardens With Versatile Paddock Beyond, Approaching 0.5 Acre In Total. EPC C
Property Oracle says ..
This property is a detached bungalow located in Aston Crews, Herefordshire. Based on the images, the property appears to be in excellent condition, with a modern kitchen and updated bathrooms. The property benefits from a large plot size of 1,738.10 sqft, offering ample outdoor space, including a patio, decking area, and a greenhouse. The location is rural, with the nearest schools being a few kilometers away. While the list price is higher than the average price in the area, the large plot size and modern condition may justify the premium. More information on the square footage of the property would help to determine the price per sqft and refine the price analysis.
Therefore, we give this property 7 / 10. *Disclaimer: This is our option and does constitute a recommendation or financial advice. Do your own research. *
- Price
- 7
- Condition
- 9
- Location
- 7
- Land
- 8
- Bedrooms
- 3
- Bathrooms
- 2
- Lot (est)
- 1,738.10
The heatmap indicates the level of crime in the area. The color of the heatmap indicates the crime severity and recency.
Metrics Year-on-Year
- Average area value
- 225,619.00 £Decreased by 6.60 %
- Average area rental value
- 850.00 £/moDecreased by 4.92 %
- Est rental Yield
- 4.52 %Increased by 1.80 %
- Crime Rate
- 36.00 %Unchanged by 0.00 %
Agent Activity
John Goodwin FRICS created the listing.
Nearby Schools
| Name | Type | Ofsted | Distance |
|---|---|---|---|
| Lea Cofe Primary School | Voluntary Aided School | Good | 2.74 KM |
| Gorsley Goffs Primary School | Voluntary Controlled School | Good | 3.03 KM |
| Hope Brook Cofe Primary School | Voluntary Controlled School | Good | 3.85 KM |
| The Family Tree Library Children'S Centre (Twigs) | Children's Centre | 4.75 KM | |
| Mitcheldean Endowed Primary School | Voluntary Aided School | Good | 5.01 KM |
Images
Nearby Streets
| Name | Average Price | Average Sqft | Distance |
|---|---|---|---|
| Lea Villa Residential Park | £ 0 | 0 | 0.00 KM |
| Woodend Lane | £ 612,500 | 0 | 0.00 KM |
Nearby Listings
| Address | Price | Type | Score | Distance |
|---|---|---|---|---|
| Meadow View, Warren Lane, Aston Crews, Ross-on-wye, Herefordshire, HR9 | £ 750,000 | BUY | 7 / 10 | 0.00 KM |
| Aston Crews | £ 750,000 | BUY | 7 / 10 | 0.00 KM |
| Aston Crews | £ 825,000 | BUY | 7 / 10 | 0.12 KM |
| Aston Crews, Ross-On-Wye | £ 349,950 | BUY | 7 / 10 | 0.15 KM |
| Knightshill Farm, Ross-on-Wye | £ 775,000 | BUY | 7 / 10 | 0.79 KM |
Nearby Properties
| Address | Price | Distance |
|---|---|---|
| Berkeley House | £ 445,000 | 1.64 KM |
| Bramley Cottage | £ 470,000 | 1.64 KM |
| 15 Knightshill | £ 160,000 | 1.80 KM |
| 12 Knightshill | £ 201,000 | 1.80 KM |
| 25 Knightshill | £ 142,000 | 1.80 KM |