Corum says ..
A beautiful red sandstone fronted semi-detached villa set within private garden grounds.
Property Oracle says ..
Therefore, we give this property 7 / 10. *Disclaimer: This is our option and does constitute a recommendation or financial advice. Do your own research. *
- Price
- 6
- Condition
- 8
- Location
- 7
- Land
- 8
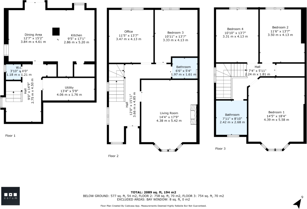
- Bedrooms
- 4
- Bathrooms
- 3
- Sqft (est)
- 1,997.19
- Lot (est)
- 2,089.00
The heatmap indicates the level of crime in the area. The color of the heatmap indicates the crime severity and recency.
Metrics Year-on-Year
- Average area value
- 285,000.00 £Decreased by 14.20 %
- Est sale value
- 485,317.17 £Increased by 4.74 %
- Average area rental value
- 1,400.00 £/moIncreased by 40.00 %
- Est letting value
- 1,997.19 £/mo
- Est rental Yield
- 5.89 %Increased by 63.16 %
- Crime Rate
- 0.00 %
from 332,182.00 £
from 463,348.08 £
from 1,000.00 £/mo
from 0.00 £/mo
from 3.61 %
from 0.00 %
Agent Activity
Corum created the listing.
Images
Nearby Streets
| Name | Average Price | Average Sqft | Distance |
|---|---|---|---|
| Oakley Drive | £ 0 | 0 | 0.00 KM |
| Corrie Grove | £ 399,000 | 0 | 0.00 KM |
| Clarkston Avenue | £ 165,000 | 0 | 0.00 KM |
| Ormonde Crescent | £ 410,000 | 0 | 0.00 KM |
| MacLaren Place | £ 124,000 | 0 | 0.00 KM |
Nearby Transport
| Name | NLC | TLC | Distance |
|---|---|---|---|
| Muirend | 9608 | MUI | 0.50 KM |
| Cathcart | 9795 | CCT | 1.58 KM |
| Langside | 9818 | LGS | 1.71 KM |
| Clarkston | 9792 | CKS | 2.08 KM |
| Mount Florida | 9819 | MFL | 2.37 KM |
Nearby Listings
| Address | Price | Type | Score | Distance |
|---|---|---|---|---|
| 15 Linn Drive, Netherlee | £ 525,000 | BUY | 7 / 10 | 0.00 KM |
| 4 Oakley Drive, Netherlee | £ 550,000 | BUY | Unknown | 0.08 KM |
| 1/1, 2 Bute Gardens, Netherlee | £ 279,000 | BUY | 8 / 10 | 0.11 KM |
| 14 Oakley Drive, Netherlee | £ 550,000 | BUY | 7 / 10 | 0.13 KM |
| Flat 1/2 , 10 Brenfield Road , Glasgow , G44 | £ 230,000 | BUY | Unknown | 0.19 KM |