SA
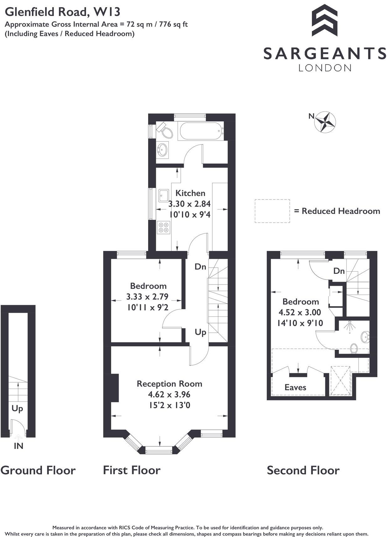
Glenfield Road, Northfields, Ealing, W13
By Sargeants
£ 485,000
Reviews
2 out of 5 stars
Sargeants says ..
Tucked away on the quiet, tree-lined Glenfield Road, this elegant two double bedroom split-level period flat is ideally located in the heart of Northfields, moments from the area’s vibrant cafes, restaurants, and shops.
Property Oracle says ..
Therefore, we give this property 5 / 10. *Disclaimer: This is our option and does constitute a recommendation or financial advice. Do your own research. *
- Price
- 6
- Condition
- 7
- Location
- 8
- Land
- 1
- Bedrooms
- 2
- Bathrooms
- 2
- Sqft (est)
- 543.82
The heatmap indicates the level of crime in the area. The color of the heatmap indicates the crime severity and recency.
Metrics Year-on-Year
- Average area value
- 811,000.00 £Increased by 5.83 %
- Est sale value
- 275,172.92 £Decreased by 24.59 %
- Average area rental value
- 2,084.00 £/moDecreased by 2.53 %
- Est letting value
- 543.82 £/moUnchanged by 0.00 %
- Est rental Yield
- 3.08 %Decreased by 8.06 %
- Crime Rate
- 4.00 %Unchanged by 0.00 %
from 766,358.00 £
from 364,903.22 £
from 2,138.00 £/mo
from 543.82 £/mo
from 3.35 %
from 4.00 %
Agent Activity
Sargeants created the listing.
Nearby Schools
| Name | Type | Ofsted | Distance |
|---|---|---|---|
| Fielding Primary School | Community School | Outstanding | 0.56 KM |
| Seva Special School | Other Independent Special School | 0.61 KM | |
| Insights Independent School | Other Independent Special School | Good | 0.84 KM |
| Ealing Alternative Provision | Pupil Referral Unit | Good | 0.92 KM |
| Log Cabin Children'S Centre | Children's Centre | 0.95 KM |
Images
Nearby Streets
| Name | Average Price | Average Sqft | Distance |
|---|---|---|---|
| Burns Road | £ 0 | 0 | 0.00 KM |
| Dean Villas | £ 0 | 0 | 0.00 KM |
| Mayo Court | £ 739,950 | 0 | 0.00 KM |
| Dane Road | £ 575,000 | 0 | 0.00 KM |
| Bramley Road | £ 0 | 0 | 0.00 KM |
Nearby Transport
| Name | NLC | TLC | Distance |
|---|---|---|---|
| West Ealing | 3188 | WEA | 0.92 KM |
| Drayton Green | 3099 | DRG | 1.81 KM |
| Ealing Broadway | 3190 | EAL | 2.11 KM |
| Brentford | 5552 | BFD | 2.21 KM |
| Hanwell | 3191 | HAN | 2.36 KM |
Nearby Listings
| Address | Price | Type | Score | Distance |
|---|---|---|---|---|
| Glenfield Road, Northfields, Ealing, W13 | £ 485,000 | BUY | 5 / 10 | 0.00 KM |
| Glenfield Road, Northfields, Ealing, W13 | £ 1,050,000 | BUY | 7 / 10 | 0.01 KM |
| Glenfield Road, Ealing | £ 499,950 | BUY | Unknown | 0.01 KM |
| Glenfield Road, London, W13 | £ 525,000 | BUY | 6 / 10 | 0.02 KM |
| Glenfield Road, West Ealing | £ 385,000 | BUY | 5 / 10 | 0.04 KM |
Nearby Properties
| Address | Price | Distance |
|---|---|---|
| 47 Glenfield Road | £ 830,000 | 0.01 KM |
| 23 Glenfield Road | £ 467,500 | 0.01 KM |
| 44 Glenfield Road | £ 250,000 | 0.01 KM |
| 23a Glenfield Road | £ 299,950 | 0.01 KM |
| 59 Glenfield Road | £ 327,000 | 0.01 KM |