Radcliffe Avenue, Willesden Junction
WE

Radcliffe Avenue, Willesden Junction

By Wenlock & Taylor

£ 549,950

Reviews

3 out of 5 stars

Wenlock & Taylor says ..

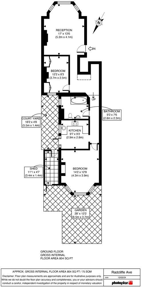
Situated in this popular tree-lined street, we are delighted to offer a bright, spacious and well presented 804 sq.ft (75 sq.m) approx Ground Floor converted Flat comprising 2 bedrooms (one with fitted wardrobes), south-east facing reception room, 'eat in' kitchen with white gloss units and acces...

Property Oracle says ..

This two-bedroom, one-bathroom ground floor flat on Radcliffe Avenue, Willesden Junction, is presented in a generally well-maintained condition. The interior photos reveal a bright, spacious layout with modern finishes and neutral decor. The living area is particularly notable for its light and airy feel, enhanced by large windows. The kitchen, while compact, is equipped with modern appliances and appears functional. Both bedrooms offer built-in storage. The property benefits from a modest garden, complete with a decked area and a small outbuilding that requires some repair or upgrading. The exterior of the building and street are well presented. Access to Willesden Junction Overground station is a convenient feature, although the local area requires further exploration. A lack of provided sqft data on other properties makes a precise evaluation of value for money slightly more difficult. Overall, this flat presents a comfortable and reasonably priced option for those seeking a property in this section of London.

Therefore, we give this property 6 / 10. *Disclaimer: This is our option and does constitute a recommendation or financial advice. Do your own research. *

Price
7
Condition
6
Location
7
Land
4
Bedrooms
2
Bathrooms
1
Sqft (est)
807.29

The heatmap indicates the level of crime in the area. The color of the heatmap indicates the crime severity and recency.

Metrics Year-on-Year

Average area value
745,000.00 £
Decreased by 11.71 %
from 843,775.00 £
Est sale value
617,576.85 £
Decreased by 15.09 %
from 727,368.29 £
Average area rental value
2,378.00 £/mo
Increased by 14.49 %
from 2,077.00 £/mo
Est letting value
1,614.58 £/mo
Unchanged by 0.00 %
from 1,614.58 £/mo
Est rental Yield
3.83 %
Increased by 29.83 %
from 2.95 %
Crime Rate
13.00 %
Unchanged by 0.00 %
from 13.00 %

Agent Activity

  • Wenlock & Taylor marked this listing as sold.

  • Wenlock & Taylor created the listing.

Nearby Schools

NameTypeOfstedDistance
Newman Catholic CollegeVoluntary Aided SchoolGood0.26 KM
Roundwood School And Community CentreFree Schools Alternative Provision0.28 KM
Furness Primary SchoolAcademy ConverterGood0.33 KM
Saint Claudine'S Catholic School For GirlsAcademy ConverterGood0.69 KM
Maple Walk SchoolOther Independent School0.71 KM

Images

14-3b44GCWT - GFF 14 Radcliffe Ave - Reception -Or 13-eb1dGCWT - GFF 14 Radcliffe Ave - Reception  2- 15-eda1GCWT - GFF 14 Radcliffe Ave - Reception 5-O 09-ad60GCWT - GFF 14 Radcliffe Ave - Hall -Origina 11-d498GCWT - GFF 14 Radcliffe Ave - Kitchen 2 -Or 05-1499GCWT - GFF 14 Radcliffe Ave - Bedroom 4 -Or 06-63baGCWT - GFF 14 Radcliffe Ave - Bedroom 6-Ori 03-e944GCWT - GFF 14 Radcliffe Ave - Bedroom 2 -Or 02-818cGCWT - GFF 14 Radcliffe Ave - Bedroom -Orig 01-ec08GCWT - GFF 14 Radcliffe Ave - Bathroom -Ori 08-84eaGCWT - GFF 14 Radcliffe Ave - Garden -Origi 20240318_133901.jpg IMG-20210309-WA0059.jpg 07-2123GCWT - GFF 14 Radcliffe Ave - Exterior -Ori 12-a095GCWT - GFF 14 Radcliffe Ave - Kitchen 3-Ori 10-f5f1GCWT - GFF 14 Radcliffe Ave - Kitchen -Orig 04-42bfGCWT - GFF 14 Radcliffe Ave - Bedroom 3 -Or 20240318_133947.jpg 20240318_133955.jpg

Nearby Streets

NameAverage PriceAverage SqftDistance
Rucklidge Passage £ 000.00 KM
The Drive £ 000.00 KM
Fortune Way £ 000.00 KM
Harlesden Plaza £ 3,350,00000.00 KM
Wrottesley Road £ 000.00 KM

Nearby Transport

NameNLCTLCDistance
Willesden Junction1457WIJ0.57 KM
Kensal Green1447KNL1.84 KM
Harlesden1521HDN1.86 KM
Kensal Rise1448KNR2.31 KM
Brondesbury Park1438BSP3.43 KM

Nearby Listings

AddressPriceTypeScoreDistance
Radcliffe Avenue, Kensal Green, London, NW10 £ 700,000BUYUnknown0.03 KM
Radcliffe Avenue, London NW10 £ 725,000BUY7 / 100.04 KM
Radcliffe Avenue, NW10 £ 650,000BUY8 / 100.05 KM
Leghorn Road, London, NW10 £ 325,000BUY5 / 100.06 KM
Ancona Road, Kensal Green, London, NW10 £ 700,000BUY7 / 100.11 KM

Nearby Properties

AddressPriceDistance
6 Radcliffe Avenue £ 300,0000.02 KM
12 Radcliffe Avenue £ 475,0000.02 KM
2b Radcliffe Avenue £ 765,0000.02 KM
21b Radcliffe Avenue £ 322,5000.04 KM
5a Radcliffe Avenue £ 580,0000.04 KM