Haybrook says ..
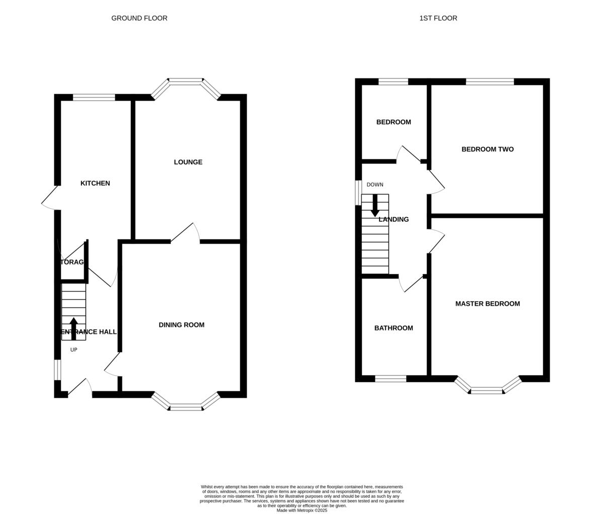
Beautiful 3-bed semi-detached with garage, driveway, large garden, and huge potential—ideal for families or investors
Property Oracle says ..
Therefore, we give this property 6 / 10. *Disclaimer: This is our option and does constitute a recommendation or financial advice. Do your own research. *
- Price
- 6
- Condition
- 6
- Location
- 7
- Land
- 7
- Bedrooms
- 3
- Bathrooms
- 1
The heatmap indicates the level of crime in the area. The color of the heatmap indicates the crime severity and recency.
Metrics Year-on-Year
- Average area value
- 140,000.00 £Decreased by 9.79 %
- Average area rental value
- 1,029.00 £/moIncreased by 6.30 %
- Est rental Yield
- 8.82 %Increased by 17.91 %
- Crime Rate
- 2.00 %Unchanged by 0.00 %
from 155,198.00 £
from 968.00 £/mo
from 7.48 %
from 2.00 %
Agent Activity
Haybrook created the listing.
Nearby Schools
| Name | Type | Ofsted | Distance |
|---|---|---|---|
| St Patrick'S Catholic Voluntary Academy | Academy Converter | Good | 0.51 KM |
| Holgate Meadows School | Foundation Special School | Good | 0.73 KM |
| Longley Park Sixth Form | Academy 16-19 Converter | Good | 0.78 KM |
| Hucklow Primary School | Academy Converter | Good | 1.14 KM |
| Hartley Brook Primary School | Academy Sponsor Led | Good | 1.31 KM |
Images
Nearby Streets
| Name | Average Price | Average Sqft | Distance |
|---|---|---|---|
| Far View Road | £ 183,317 | 0 | 0.00 KM |
| Lindsay Drive | £ 159,950 | 0 | 0.00 KM |
| Merlin Way | £ 110,000 | 0 | 0.00 KM |
| Norwood Avenue | £ 0 | 0 | 0.00 KM |
| Homestead Road | £ 120,200 | 0 | 0.00 KM |
Nearby Transport
| Name | NLC | TLC | Distance |
|---|---|---|---|
| Chapeltown (South Yorkshire) | 6664 | CLN | 4.68 KM |
| Sheffield | 6691 | SHF | 4.72 KM |
| Meadowhall | 6663 | MHS | 5.29 KM |
| Darnall | 6729 | DAN | 6.65 KM |
| Elsecar | 6667 | ELR | 9.42 KM |
Nearby Listings
| Address | Price | Type | Score | Distance |
|---|---|---|---|---|
| Hereward Road, Sheffield | £ 230,000 | BUY | Unknown | 0.00 KM |
| Hereward Road, Sheffield | £ 200,000 | BUY | 6 / 10 | 0.00 KM |
| Elm Lane, Sheffield Lane Top | £ 60,000 | BUY | 4 / 10 | 0.13 KM |
| Elm Lane, Sheffield | £ 210,000 | BUY | 7 / 10 | 0.16 KM |
| Crowland Road, Sheffield | £ 240,000 | BUY | Unknown | 0.17 KM |
Nearby Properties
| Address | Price | Distance |
|---|---|---|
| 59 Elm Lane | £ 100,000 | 0.10 KM |
| 110a Elm Lane | £ 125,000 | 0.11 KM |
| 108a Elm Lane | £ 95,000 | 0.11 KM |
| 118 Elm Lane | £ 79,950 | 0.11 KM |
| 124 Elm Lane | £ 116,500 | 0.11 KM |