Truemans Road, Hitchin, SG5
By Cooper Wallace
£ 575,000
Reviews
3 out of 5 stars
Cooper Wallace says ..
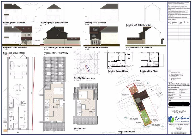
*** DEVELOPMENT OPPORTUNITY *** Planning permission approved in 2021 to build a three bedroom, three storey dwelling adjoining the existing property. This planning permission has now lapsed however the owner currently has a new planning application being reviewed for a two bedroom, two storey dwe...
Property Oracle says ..
The property is a 3-bedroom, 1-bathroom semi-detached house located in a desirable area of Hitchin. While the location is a positive, the property shows signs of needing some work, both internally and externally. The list price seems high compared to similar properties in the area, although planned renovations and the desirable location might justify a higher price. More information is needed for a complete and accurate assessment.
Therefore, we give this property 6 / 10. *Disclaimer: This is our option and does constitute a recommendation or financial advice. Do your own research. *
- Price
- 5
- Condition
- 6
- Location
- 8
- Land
- 5
- Bedrooms
- 3
- Bathrooms
- 1
- Sqft (est)
- 778.50
The heatmap indicates the level of crime in the area. The color of the heatmap indicates the crime severity and recency.
Metrics Year-on-Year
- Average area value
- 422,458.00 £Increased by 11.65 %
- Est sale value
- 366,673.50 £Decreased by 12.45 %
- Average area rental value
- 1,592.00 £/moIncreased by 27.36 %
- Est letting value
- 778.50 £/moUnchanged by 0.00 %
- Est rental Yield
- 4.52 %Increased by 14.14 %
- Crime Rate
- 18.00 %Unchanged by 0.00 %
Agent Activity
Cooper Wallace created the listing.
Nearby Schools
| Name | Type | Ofsted | Distance |
|---|---|---|---|
| The Priory School | Foundation School | Good | 0.70 KM |
| Oughton Primary And Nursery School | Community School | Good | 0.73 KM |
| Nh6 Oughton Family Centre | Children's Centre | 0.73 KM | |
| Strathmore Infant And Nursery School | Community School | Good | 1.11 KM |
| Our Lady Catholic Primary School | Academy Converter | Requires improvement | 1.29 KM |
Images
Nearby Streets
| Name | Average Price | Average Sqft | Distance |
|---|---|---|---|
| Beechwood Close | £ 0 | 0 | 0.00 KM |
| Westmill Lawns | £ 0 | 0 | 0.00 KM |
| Freemans Close | £ 199,950 | 0 | 0.00 KM |
| Bowyer's Close | £ 550,000 | 0 | 0.00 KM |
| The Crescent | £ 0 | 0 | 0.00 KM |
Nearby Transport
| Name | NLC | TLC | Distance |
|---|---|---|---|
| Hitchin | 6086 | HIT | 3.04 KM |
| Letchworth Garden City | 6089 | LET | 6.93 KM |
| Arlesey | 6171 | ARL | 7.53 KM |
Nearby Listings
| Address | Price | Type | Score | Distance |
|---|---|---|---|---|
| Truemans Road, Hitchin, SG5 | £ 575,000 | BUY | 6 / 10 | 0.00 KM |
| Truemans Road, Hitchin | £ 425,000 | BUY | 7 / 10 | 0.00 KM |
| Burford Way, Hitchin, SG5 | £ 485,000 | BUY | Unknown | 0.11 KM |
| Milestone Road, Hitchin, SG5 | £ 250,000 | BUY | 7 / 10 | 0.12 KM |
| Milestone Road, Hitchin, SG5 | £ 250,000 | BUY | 7 / 10 | 0.14 KM |
Nearby Properties
| Address | Price | Distance |
|---|---|---|
| 1 Truemans Road | £ 360,000 | 0.00 KM |
| 6 Truemans Road | £ 293,000 | 0.00 KM |
| 20 Truemans Road | £ 210,000 | 0.00 KM |
| 74 Burford Way | £ 285,000 | 0.13 KM |
| 58 Burford Way | £ 350,000 | 0.13 KM |