Blaen Blodau Street, NEWBRIDGE, NP11
By Cariad Property
£ 137,500
Reviews
3 out of 5 stars
Cariad Property says ..
SUPER FIRST TIME HOME, town centre position, end plot with side and rear garden, three bedrooms, perfect for the railway station to Cardiff and Newport, ideal for amenities, no chain.
Property Oracle says ..
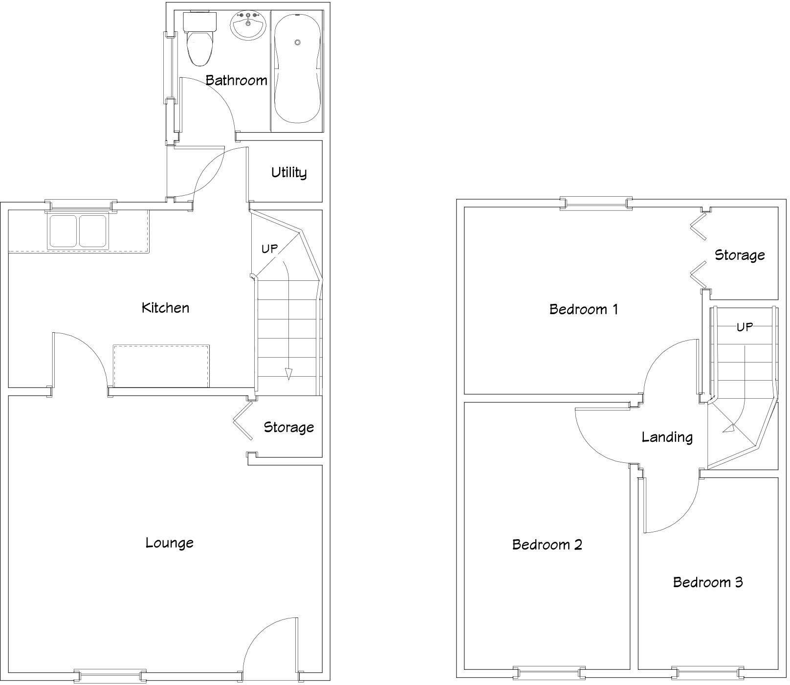
The property is a 3-bedroom end of terrace house located in Newbridge, Caerphilly, with a list price of £137,500 and a size of 660 sqft. The location is reasonably convenient, with a nearby train station and several primary schools. The property appears to be in good condition, having undergone some modernisation, and benefits from a small rear garden. The price seems reasonable compared to similar properties in the area, potentially representing good value for money.
Therefore, we give this property 6 / 10. *Disclaimer: This is our option and does constitute a recommendation or financial advice. Do your own research. *
- Price
- 8
- Condition
- 8
- Location
- 7
- Land
- 4
- Bedrooms
- 3
- Bathrooms
- 1
- Sqft (est)
- 660.00
The heatmap indicates the level of crime in the area. The color of the heatmap indicates the crime severity and recency.
Metrics Year-on-Year
- Average area value
- 318,211.00 £Decreased by 21.80 %
- Est sale value
- 186,120.00 £Decreased by 21.45 %
- Average area rental value
- 2,110.00 £/moIncreased by 60.46 %
- Est letting value
- 660.00 £/moUnchanged by 0.00 %
- Est rental Yield
- 7.96 %Increased by 105.15 %
- Crime Rate
- 18.00 %Unchanged by 0.00 %
Agent Activity
Cariad Property created the listing.
Nearby Schools
| Name | Type | Ofsted | Distance |
|---|---|---|---|
| Newbridge School | Welsh Establishment | 0.41 KM | |
| Tynewydd Primary School | Welsh Establishment | 0.89 KM | |
| Pantside Primary School | Welsh Establishment | 1.46 KM | |
| Abercarn Primary School | Welsh Establishment | 1.54 KM | |
| Crumlin High Level Primary School | Welsh Establishment | 1.58 KM |
Images
Nearby Streets
| Name | Average Price | Average Sqft | Distance |
|---|---|---|---|
| Victoria Terrace | £ 0 | 0 | 0.00 KM |
| North Road | £ 295,000 | 0 | 0.00 KM |
| Ty-Llwydd Place | £ 0 | 0 | 0.00 KM |
| Church Road | £ 0 | 0 | 0.00 KM |
| Yewtree Road | £ 0 | 0 | 0.00 KM |
Nearby Transport
| Name | NLC | TLC | Distance |
|---|---|---|---|
| Newbridge | 9919 | NBE | 0.38 KM |
| Llanhilleth | 9916 | LTH | 4.30 KM |
| Crosskeys | 9902 | CKY | 5.04 KM |
| Risca And Pontymister | 9920 | RCA | 8.53 KM |
| Hengoed | 4028 | HNG | 9.00 KM |
Nearby Listings
| Address | Price | Type | Score | Distance |
|---|---|---|---|---|
| Blaen Blodau Street, Newbridge, Newport | £ 140,000 | BUY | 6 / 10 | 0.00 KM |
| Blaen Blodau Street, NEWBRIDGE, NP11 | £ 137,500 | BUY | 6 / 10 | 0.00 KM |
| Torlais Street, Newbridge | £ 80,000 | BUY | 5 / 10 | 0.08 KM |
| Beynon Street, Newbridge, | £ 144,950 | BUY | 5 / 10 | 0.08 KM |
| Torlais Street, NP11 | £ 135,000 | BUY | 6 / 10 | 0.09 KM |
Nearby Properties
| Address | Price | Distance |
|---|---|---|
| 48 Blaen Blodau Street | £ 129,000 | 0.00 KM |
| 3 Blaen Blodau Street | £ 92,250 | 0.00 KM |
| 7 Blaen Blodau Street | £ 120,000 | 0.00 KM |
| 13 Blaen Blodau Street | £ 76,000 | 0.00 KM |
| 10 Blaen Blodau Street | £ 54,115 | 0.00 KM |