Flintmill Crescent, Kidbrooke, London, SE3
By Foxtons
£ 350,000
Reviews
3 out of 5 stars
Foxtons says ..
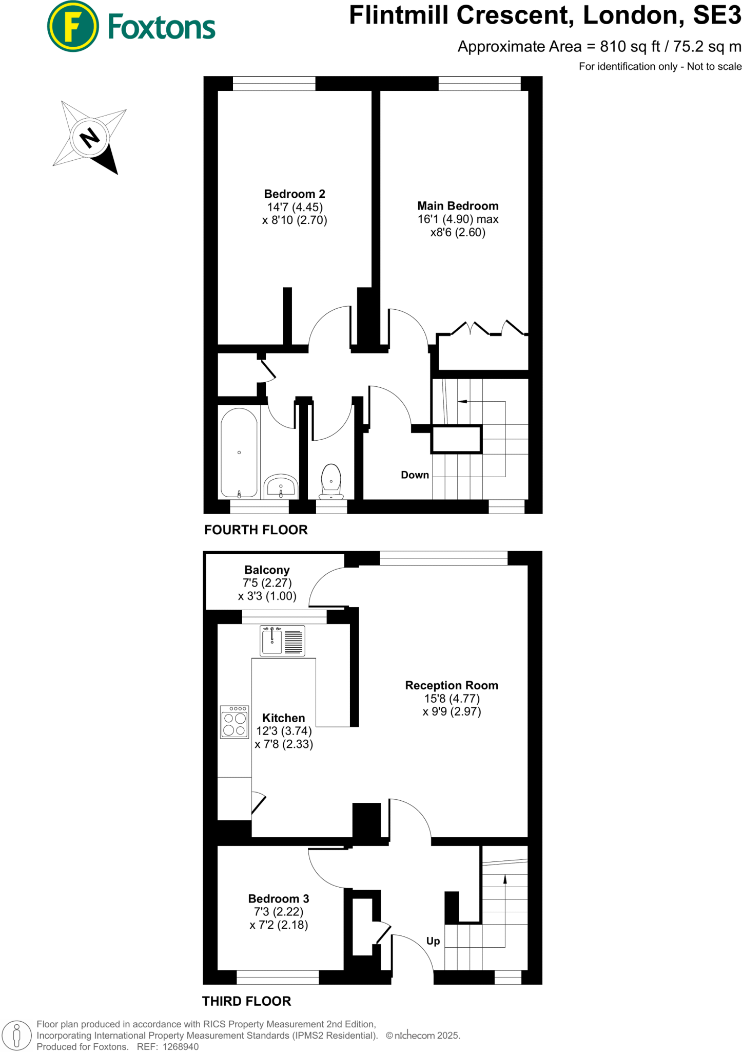
Situated over 2 floors, this lovely 2 bedroom duplex flat offers comfortable accommodation throughout with smart interiors throughout and a lovely private balcony.
Property Oracle says ..
This property is a 2-bedroom, 1-bathroom flat located in Kidbrooke, London. The flat is situated in a convenient location with several nearby schools and transportation links. The property appears to be in good condition, with a modern kitchen and updated bathrooms. While the images do not show the exterior, the property appears to be well-maintained. The list price is below the average price for the area, suggesting it may be good value for money, however this should be verified with an in-person viewing and further research.
Therefore, we give this property 6 / 10. *Disclaimer: This is our option and does constitute a recommendation or financial advice. Do your own research. *
- Price
- 8
- Condition
- 8
- Location
- 7
- Land
- 3
- Bedrooms
- 2
- Bathrooms
- 1
- Sqft (est)
- 557.00
- Lot (est)
- 810.00
The heatmap indicates the level of crime in the area. The color of the heatmap indicates the crime severity and recency.
Metrics Year-on-Year
- Average area value
- 569,167.00 £Increased by 19.48 %
- Est sale value
- 339,213.00 £Increased by 8.17 %
- Average area rental value
- 1,814.00 £/moIncreased by 1.06 %
- Est letting value
- 557.00 £/moDecreased by 50.00 %
- Est rental Yield
- 3.82 %Decreased by 15.49 %
- Crime Rate
- 8.00 %Unchanged by 0.00 %
Agent Activity
Foxtons created the listing.
Nearby Schools
| Name | Type | Ofsted | Distance |
|---|---|---|---|
| St Thomas More Catholic Primary School | Voluntary Aided School | Good | 0.45 KM |
| Henwick Primary School | Community School | Good | 0.45 KM |
| The Halley Academy | Academy Sponsor Led | 0.55 KM | |
| Shooter'S Hill Children'S Centre | Children's Centre Linked Site | 0.78 KM | |
| Newhaven Pupil Referral Unit | Pupil Referral Unit | Good | 0.91 KM |
Images
Nearby Streets
| Name | Average Price | Average Sqft | Distance |
|---|---|---|---|
| Kelbrook Road | £ 0 | 0 | 0.00 KM |
| Rydons Close | £ 0 | 0 | 0.00 KM |
| Cobbett Road | £ 0 | 0 | 0.00 KM |
| Well Hall Roundabout | £ 0 | 0 | 0.00 KM |
| Well Hall Roundabout | £ 0 | 0 | 0.00 KM |
Nearby Transport
| Name | NLC | TLC | Distance |
|---|---|---|---|
| Eltham | 5103 | ELW | 1.40 KM |
| Kidbrooke | 5108 | KDB | 1.98 KM |
| Charlton | 5144 | CTN | 2.79 KM |
| Mottingham | 5118 | MTG | 2.90 KM |
| Woolwich Dockyard | 5153 | WWD | 3.01 KM |
Nearby Listings
| Address | Price | Type | Score | Distance |
|---|---|---|---|---|
| Flintmill Crescent, Kidbrooke, London, SE3 | £ 350,000 | BUY | 6 / 10 | 0.00 KM |
| Flintmill Crescent, London, SE3 | £ 425,000 | BUY | Unknown | 0.08 KM |
| Flintmill Crescent, London, SE3 8LY | £ 280,000 | BUY | 6 / 10 | 0.09 KM |
| Flintmill Crescent, Blackheath | £ 450,000 | BUY | 6 / 10 | 0.09 KM |
| Kelbrook Road, London | £ 525,000 | BUY | 6 / 10 | 0.10 KM |
Nearby Properties
| Address | Price | Distance |
|---|---|---|
| 73 Flintmill Crescent | £ 270,000 | 0.02 KM |
| 25 Flintmill Crescent | £ 125,000 | 0.02 KM |
| 37 Flintmill Crescent | £ 136,000 | 0.02 KM |
| 35 Flintmill Crescent | £ 135,000 | 0.02 KM |
| 63 Flintmill Crescent | £ 332,000 | 0.02 KM |