Pitlethie Steading, Leuchars, St. Andrews, Fife
By Rettie & Co
£ 295,000
Reviews
3 out of 5 stars
Rettie & Co says ..
Immaculate three-bedroom steading on the edge of Tentsmuir Forest Modern and bright three-bedroom steading Stylish and generously proportioned interiors Three south-facing double bedrooms Private parking area and rear garden Idyllic countrysi...
Property Oracle says ..
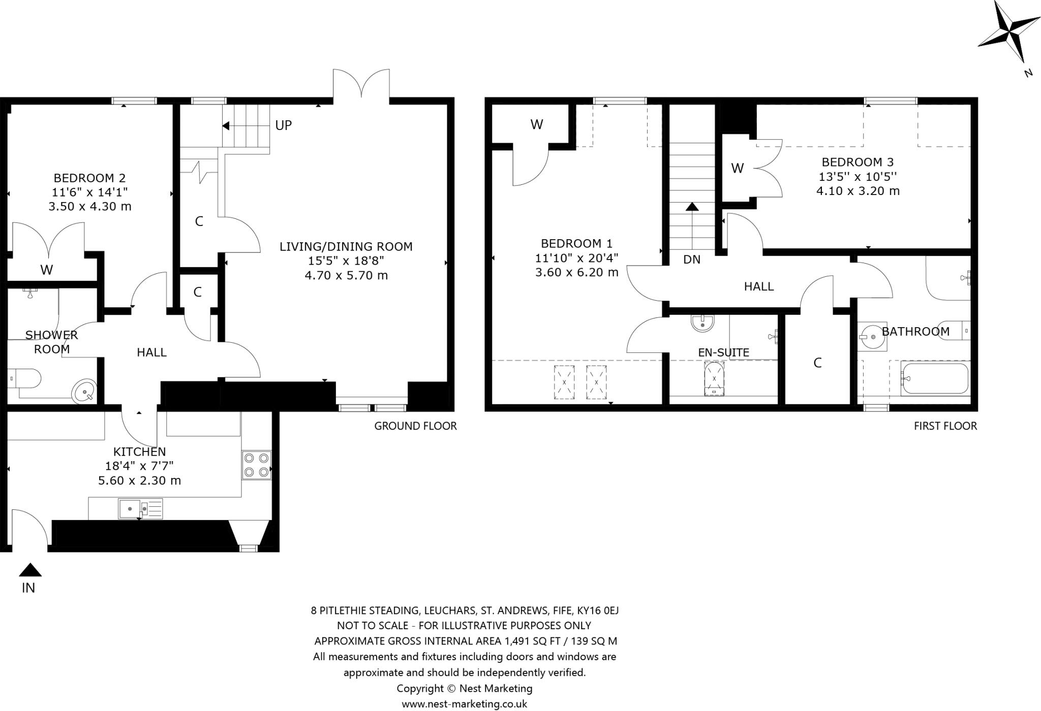
The property is a 3 bedroom, 3 bathroom house with a total area of 1,496.18 sqft, listed at £295,000. The photos show a well-maintained property in good condition, with a modern kitchen and bathrooms. The property appears to be recently renovated or built, and is presented in excellent condition throughout. The property’s location in Leuchars offers proximity to St Andrews, which is a significant advantage. The nearby Leuchars train station provides convenient access to other areas. While there is limited information on local amenities like schools and shops, the presence of a train station suggests reasonable access to these services. The small, shared outdoor space is a limited feature, however, it is well maintained and presented. Considering the property’s apparent excellent condition, its location near St Andrews and a train station, and the relatively small plot size, the listed price of £295,000 requires further analysis against local market data. Unfortunately, the provided data on nearby properties lacks sufficient square footage information to make a definitive comparison on price per square foot. More comprehensive local pricing data would be needed to accurately assess the price’s reasonableness.
Therefore, we give this property 6 / 10. *Disclaimer: This is our option and does constitute a recommendation or financial advice. Do your own research. *
- Price
- 7
- Condition
- 9
- Location
- 8
- Land
- 3
- Bedrooms
- 3
- Bathrooms
- 3
- Sqft (est)
- 1,496.18
The heatmap indicates the level of crime in the area. The color of the heatmap indicates the crime severity and recency.
Metrics Year-on-Year
- Average area value
- 546,663.00 £Increased by 20.32 %
- Est sale value
- 888,730.92 £Increased by 55.50 %
- Average area rental value
- 2,315.00 £/moIncreased by 58.13 %
- Est letting value
- 2,992.36 £/moIncreased by 100.00 %
- Est rental Yield
- 5.08 %Increased by 31.27 %
- Crime Rate
- 0.00 %
Agent Activity
Rettie & Co created the listing.
Images
Nearby Streets
| Name | Average Price | Average Sqft | Distance |
|---|---|---|---|
| Pitlethie Steading | £ 0 | 0 | 0.00 KM |
| Fetterdale Fields | £ 170,000 | 0 | 0.00 KM |
| Hampden Close | £ 0 | 0 | 0.00 KM |
| Henderson Terrace | £ 0 | 0 | 0.00 KM |
| The Croft | £ 0 | 0 | 0.00 KM |
Nearby Transport
| Name | NLC | TLC | Distance |
|---|---|---|---|
| Leuchars (For St. Andrews) | 9188 | LEU | 2.22 KM |
| Broughty Ferry | 9023 | BYF | 8.91 KM |
Nearby Listings
| Address | Price | Type | Score | Distance |
|---|---|---|---|---|
| Rires Road, Leuchars | £ 255,000 | BUY | 6 / 10 | 0.26 KM |
| Cowbakie Crescent, Leuchars, St Andrews, KY16 | £ 300,000 | BUY | Unknown | 0.33 KM |
| Warwick Close, Leuchars, KY16 | £ 170,000 | BUY | 7 / 10 | 0.36 KM |
| 11 The Croft, Leuchars, St Andrews, KY16 0JR | £ 295,000 | BUY | 7 / 10 | 0.90 KM |
| Norman View, Leuchars, St. Andrews | £ 240,000 | BUY | Unknown | 1.05 KM |