GA
Buxton Road, Disley, Stockport
By Gascoigne Halman
£ 179,950
Reviews
3 out of 5 stars
Gascoigne Halman says ..
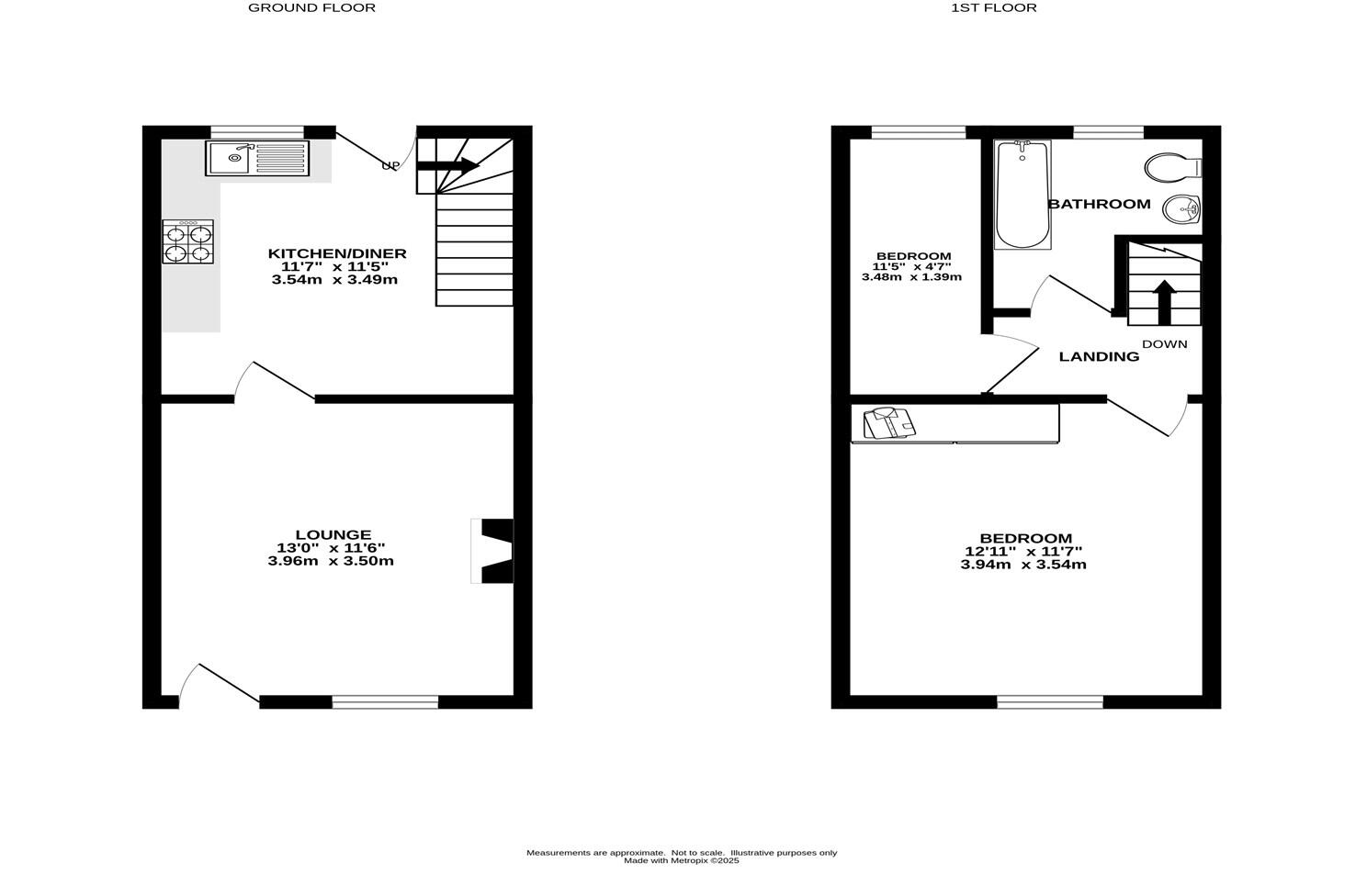
A two bedroom stone built mid terrace property with enclosed garden to the rear and close to local amenities. The property would benefit from some cosmetic improvement but offers the new buyer a great opportunity put their own stamp on the property. Both the kitchen and bathroom are fairly modern...
Property Oracle says ..
Therefore, we give this property 6 / 10. *Disclaimer: This is our option and does constitute a recommendation or financial advice. Do your own research. *
- Price
- 8
- Condition
- 6
- Location
- 7
- Land
- 6
- Bedrooms
- 2
- Bathrooms
- 1
- Sqft (est)
- 480.70
The heatmap indicates the level of crime in the area. The color of the heatmap indicates the crime severity and recency.
Metrics Year-on-Year
- Average area value
- 561,250.00 £Increased by 25.62 %
- Est sale value
- 239,388.60 £Increased by 22.66 %
- Average area rental value
- 1,544.00 £/moDecreased by 4.34 %
- Est letting value
- 480.70 £/moUnchanged by 0.00 %
- Est rental Yield
- 3.30 %Decreased by 23.79 %
- Crime Rate
- 64.00 %Unchanged by 0.00 %
from 446,794.00 £
from 195,164.20 £
from 1,614.00 £/mo
from 480.70 £/mo
from 4.33 %
from 64.00 %
Agent Activity
Gascoigne Halman created the listing.
Nearby Schools
| Name | Type | Ofsted | Distance |
|---|---|---|---|
| Disley Primary School | Academy Converter | 0.48 KM | |
| Hague Bar Primary School | Academy Converter | 1.06 KM | |
| High Peak School | Other Independent Special School | Good | 2.61 KM |
| Newtown Primary School (High Peak Federation) | Community School | Good | 2.62 KM |
| St Mary'S Catholic Voluntary Academy | Academy Converter | 3.27 KM |
Images
Nearby Streets
| Name | Average Price | Average Sqft | Distance |
|---|---|---|---|
| Hillside Close | £ 0 | 0 | 0.00 KM |
| The Moorings | £ 0 | 0 | 0.00 KM |
| Hawthorn Close | £ 650,000 | 0 | 0.00 KM |
| Jankins Croft | £ 0 | 0 | 0.00 KM |
| Green Lane | £ 2,500,000 | 0 | 0.00 KM |
Nearby Transport
| Name | NLC | TLC | Distance |
|---|---|---|---|
| Disley | 2765 | DSL | 1.17 KM |
| Strines | 2834 | SRN | 1.76 KM |
| New Mills Newtown | 2769 | NMN | 2.59 KM |
| New Mills Central | 2974 | NMC | 2.97 KM |
| Furness Vale | 2952 | FNV | 4.91 KM |
Nearby Listings
| Address | Price | Type | Score | Distance |
|---|---|---|---|---|
| Buxton Road, Disley, Stockport | £ 179,950 | BUY | 6 / 10 | 0.00 KM |
| Buxton Road, Disley, Stockport, Cheshire, SK12 | £ 485,000 | BUY | 6 / 10 | 0.01 KM |
| Buxton Road, Disley, Stockport, Cheshire, SK12 | £ 225,000 | BUY | 7 / 10 | 0.03 KM |
| Buxton Road, Disley, Stockport, Cheshire, SK12 | £ 215,000 | BUY | 7 / 10 | 0.03 KM |
| Buxton Road, Disley, Stockport, Cheshire, SK12 | £ 210,000 | BUY | 5 / 10 | 0.04 KM |
Nearby Properties
| Address | Price | Distance |
|---|---|---|
| 26 Buxton Road | £ 312,000 | 0.02 KM |
| 34 Buxton Road | £ 137,500 | 0.02 KM |
| 36 Buxton Road | £ 103,500 | 0.02 KM |
| 131 Buxton Road | £ 40,000 | 0.03 KM |
| 109 Buxton Road | £ 155,000 | 0.03 KM |