AL
New Haw Road, New Haw, KT15
By Alexander Rumsey Real Estate
£ 700,000
Reviews
3 out of 5 stars
Alexander Rumsey Real Estate says ..
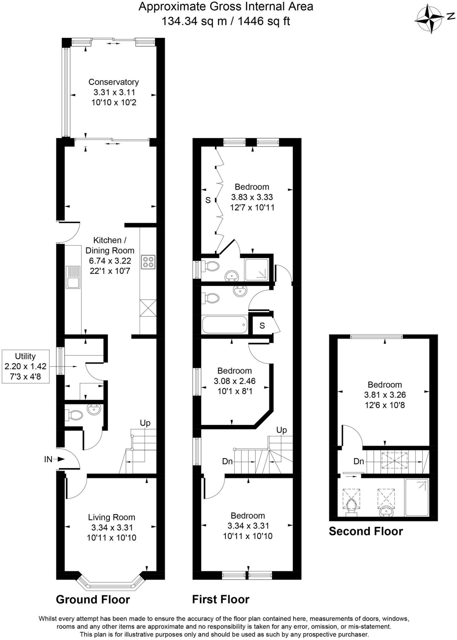
Ideal for growing families seeking more space both inside and out, this charming character-filled home offers flexible living across three floors, a large garden perfect for children or pets, and a location that balances convenience with community – early viewing is strongly encouraged.
Property Oracle says ..
Therefore, we give this property 7 / 10. *Disclaimer: This is our option and does constitute a recommendation or financial advice. Do your own research. *
- Price
- 6
- Condition
- 8
- Location
- 8
- Land
- 7
- Bedrooms
- 4
- Bathrooms
- 3
- Sqft (est)
- 968.50
The heatmap indicates the level of crime in the area. The color of the heatmap indicates the crime severity and recency.
Metrics Year-on-Year
- Average area value
- 497,268.00 £Increased by 4.06 %
- Est sale value
- 488,124.00 £Increased by 51.81 %
- Average area rental value
- 2,350.00 £/moIncreased by 60.19 %
- Est letting value
- 1,937.00 £/moIncreased by 100.00 %
- Est rental Yield
- 5.67 %Increased by 54.08 %
- Crime Rate
- 12.00 %Unchanged by 0.00 %
from 477,886.00 £
from 321,542.00 £
from 1,467.00 £/mo
from 968.50 £/mo
from 3.68 %
from 12.00 %
Agent Activity
Alexander Rumsey Real Estate created the listing.
Nearby Schools
| Name | Type | Ofsted | Distance |
|---|---|---|---|
| Darley Dene Primary School | Academy Sponsor Led | 0.89 KM | |
| Sayes Court Sure Start Children'S Centre | Children's Centre | 0.90 KM | |
| Sayes Court School | Academy Sponsor Led | Good | 0.90 KM |
| Ongar Place Primary School | Community School | Good | 1.71 KM |
| St Paul'S Cofe Primary School | Academy Sponsor Led | Good | 1.96 KM |
Images
Nearby Streets
| Name | Average Price | Average Sqft | Distance |
|---|---|---|---|
| Halley's Walk | £ 527,500 | 0 | 0.00 KM |
| Regent Close | £ 0 | 0 | 0.00 KM |
| River Wey Navigation path | £ 0 | 0 | 0.00 KM |
| Wren Crescent | £ 0 | 0 | 0.00 KM |
| Service Road | £ 0 | 0 | 0.00 KM |
Nearby Transport
| Name | NLC | TLC | Distance |
|---|---|---|---|
| Addlestone | 5550 | ASN | 1.33 KM |
| Byfleet And New Haw | 5689 | BFN | 1.48 KM |
| West Byfleet | 5684 | WBY | 3.17 KM |
| Weybridge | 5577 | WYB | 3.31 KM |
| Chertsey | 5553 | CHY | 3.71 KM |
Nearby Listings
| Address | Price | Type | Score | Distance |
|---|---|---|---|---|
| New Haw Road, New Haw, KT15 | £ 700,000 | BUY | 7 / 10 | 0.00 KM |
| New Haw Road, Addlestone | £ 685,000 | BUY | 7 / 10 | 0.00 KM |
| New Haw Road, Addlestone, Surrey, KT15 | £ 700,000 | BUY | 6 / 10 | 0.00 KM |
| New Haw Road, Addlestone, Surrey, KT15 | £ 825,000 | BUY | 6 / 10 | 0.00 KM |
| New Haw Road, Addlestone, Surrey, KT15 | £ 825,000 | BUY | 8 / 10 | 0.00 KM |
Nearby Properties
| Address | Price | Distance |
|---|---|---|
| 99a New Haw Road | £ 565,000 | 0.00 KM |
| 111 New Haw Road | £ 417,500 | 0.00 KM |
| 91 New Haw Road | £ 543,500 | 0.00 KM |
| 101 New Haw Road | £ 427,000 | 0.00 KM |
| 89 New Haw Road | £ 410,000 | 0.00 KM |