Cardon Square, 3/2 19 Cardon Square, PA4
By Penny Lane Homes
£ 160,000
Reviews
3 out of 5 stars
Penny Lane Homes says ..
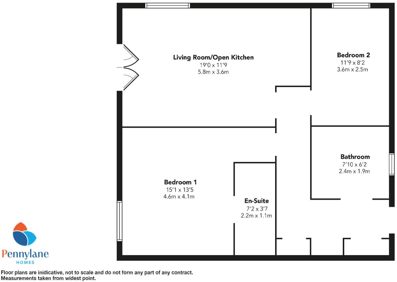
A highly sought after two bedroom, top floor flat with open plan living space, on the banks of the River Clyde.
Property Oracle says ..
This is a modern two-bedroom flat located in Cardon Square, Renfrewshire. The property benefits from its proximity to local amenities, transportation links, and the River Clyde. The flat itself is in good condition, with modern fixtures and fittings. While it lacks a private garden, the communal green spaces and waterfront location offer some outdoor appeal. The asking price of £160,000 appears reasonable given the property’s features and location, making it an attractive option for potential buyers.
Therefore, we give this property 6 / 10. *Disclaimer: This is our option and does constitute a recommendation or financial advice. Do your own research. *
- Price
- 7
- Condition
- 8
- Location
- 7
- Land
- 3
- Bedrooms
- 2
- Bathrooms
- 2
- Sqft (est)
- 599.77
The heatmap indicates the level of crime in the area. The color of the heatmap indicates the crime severity and recency.
Metrics Year-on-Year
- Average area value
- 171,783.00 £Decreased by 1.84 %
- Est sale value
- 153,541.12 £Increased by 21.33 %
- Average area rental value
- 903.00 £/moDecreased by 1.42 %
- Est letting value
- 599.77 £/moUnchanged by 0.00 %
- Est rental Yield
- 6.31 %Increased by 0.48 %
- Crime Rate
- 0.00 %
Agent Activity
Penny Lane Homes created the listing.
Images
Nearby Streets
| Name | Average Price | Average Sqft | Distance |
|---|---|---|---|
| Finagal Road | £ 133,500 | 0 | 0.00 KM |
| Fingal Avenue | £ 219,681 | 0 | 0.00 KM |
| Redshank Way | £ 155,000 | 0 | 0.00 KM |
| Lapwing Crescent | £ 184,667 | 0 | 0.00 KM |
| Ferry Road | £ 0 | 0 | 0.00 KM |
Nearby Transport
| Name | NLC | TLC | Distance |
|---|---|---|---|
| Yoker | 9990 | YOK | 1.04 KM |
| Garscadden | 9979 | GRS | 1.82 KM |
| Drumry | 9993 | DMY | 2.26 KM |
| Drumchapel | 9994 | DMC | 3.02 KM |
| Clydebank | 9855 | CYK | 3.12 KM |
Nearby Listings
| Address | Price | Type | Score | Distance |
|---|---|---|---|---|
| Cardon Square, 3/2 19 Cardon Square, PA4 | £ 160,000 | BUY | 6 / 10 | 0.00 KM |
| Cardon Square, 3/2 17 Cardon Square, PA4 | £ 180,000 | BUY | 6 / 10 | 0.03 KM |
| Cardon Square, Renfrew, PA4 8AP | £ 170,000 | BUY | 6 / 10 | 0.07 KM |
| Cardon Square, Renfrew, Renfrewshire, PA4 | £ 174,995 | BUY | 6 / 10 | 0.07 KM |
| Cardon Square, Renfrew, Renfrewshire, PA4 | £ 109,995 | BUY | 6 / 10 | 0.07 KM |