Wordsworth Road, Colchester, Essex, CO3
By Kingsleigh Residential Limited
£ 500,000
Reviews
3 out of 5 stars
Kingsleigh Residential Limited says ..
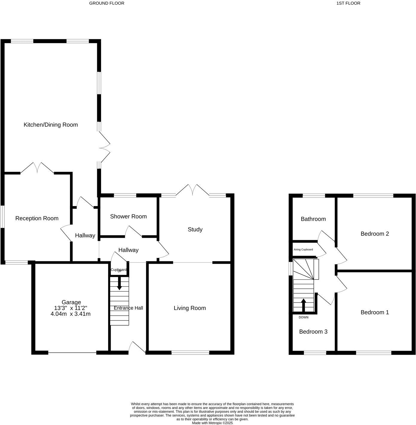
This detached family home sits within a sought-after residential setting, offering generous accommodation and a calm, established environment. The property provides spacious and practical living areas across two floors, supported by a garage, off road parking and a good-sized rear garden that add...
Property Oracle says ..
This detached property on Wordsworth Road, Colchester, offers a blend of comfortable living and potential for further enhancement. The location in Prettygate is convenient for families, with access to well-regarded schools and transport links. While the property is generally well-maintained, some areas, particularly the bathrooms, could benefit from modernization. The large garden is a significant asset, providing ample outdoor space. The price is competitive for the area, reflecting the property’s features and potential.
Therefore, we give this property 7 / 10. *Disclaimer: This is our option and does constitute a recommendation or financial advice. Do your own research. *
- Price
- 6
- Condition
- 7
- Location
- 7
- Land
- 8
- Bedrooms
- 3
- Bathrooms
- 2
The heatmap indicates the level of crime in the area. The color of the heatmap indicates the crime severity and recency.
Metrics Year-on-Year
- Average area value
- 433,571.00 £Increased by 10.56 %
- Average area rental value
- 1,800.00 £/moIncreased by 17.42 %
- Est rental Yield
- 4.98 %Increased by 6.18 %
- Crime Rate
- 2.00 %Unchanged by 0.00 %
Agent Activity
Kingsleigh Residential Limited created the listing.
Nearby Schools
| Name | Type | Ofsted | Distance |
|---|---|---|---|
| Home Farm Primary School | Academy Converter | Outstanding | 0.39 KM |
| St Teresa'S Catholic Primary School, Colchester | Academy Converter | Outstanding | 0.75 KM |
| Lexden Primary School With Unit For Hearing Impaired Pupils | Community School | Good | 0.80 KM |
| Prettygate Junior School | Community School | Good | 1.48 KM |
| Prettygate Infant School | Community School | Good | 1.48 KM |
Images
Nearby Streets
| Name | Average Price | Average Sqft | Distance |
|---|---|---|---|
| Browning Close | £ 0 | 0 | 0.00 KM |
| Keats Road | £ 350,000 | 0 | 0.00 KM |
| Burns Avenue | £ 0 | 0 | 0.00 KM |
| Back Lane | £ 0 | 0 | 0.00 KM |
| Garden Drive | £ 550,000 | 0 | 0.00 KM |
Nearby Transport
| Name | NLC | TLC | Distance |
|---|---|---|---|
| Colchester | 6861 | COL | 4.13 KM |
| Colchester Town | 6853 | CET | 5.21 KM |
| Hythe (Essex) | 6851 | HYH | 7.73 KM |
| Marks Tey | 6863 | MKT | 8.25 KM |
Nearby Listings
| Address | Price | Type | Score | Distance |
|---|---|---|---|---|
| Wordsworth Road, Colchester, Essex, CO3 | £ 500,000 | BUY | 7 / 10 | 0.00 KM |
| Wordsworth Road, Colchester, CO3 | £ 375,000 | BUY | Unknown | 0.00 KM |
| Poets Corner, Colchester | £ 390,000 | BUY | Unknown | 0.09 KM |
| Shakespeare Road, Lexden, Colchester, Essex, CO3 | £ 450,000 | BUY | 7 / 10 | 0.13 KM |
| Chaucer Way, Colchester, CO3 | £ 500,000 | BUY | 7 / 10 | 0.19 KM |
Nearby Properties
| Address | Price | Distance |
|---|---|---|
| 5 Wordsworth Road | £ 525,000 | 0.01 KM |
| 9 Wordsworth Road | £ 425,000 | 0.01 KM |
| 1 Wordsworth Road | £ 370,000 | 0.01 KM |
| 6 Wordsworth Road | £ 53,000 | 0.01 KM |
| 7 Wordsworth Road | £ 340,000 | 0.01 KM |