Tupman Close, Rochester, Kent. ME1
By Moxy Property Consultants
£ 375,000
Reviews
3 out of 5 stars
Moxy Property Consultants says ..
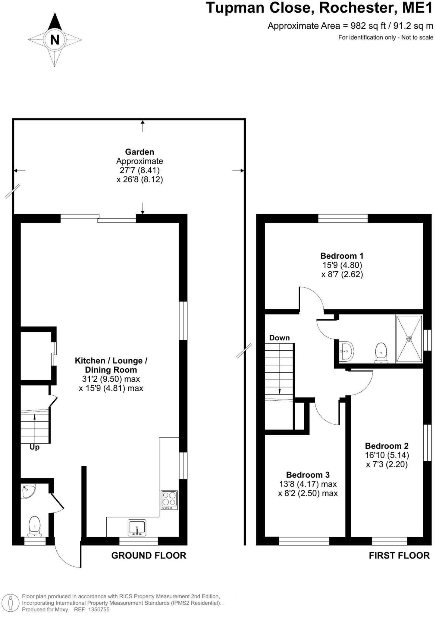
Chain free - A three bed, end of terrace house in central Rochester. Upgraded, open-plan living, guest WC, wet room, garden. Walk to station and High St get to London in 36 mins via high-speed links.
Property Oracle says ..
This is an end-of-terrace property located in Rochester West, Kent. It features three bedrooms and one bathroom, with a generous 1,600.60 sqft of living space. The interior appears to be modern and well-maintained, with an updated kitchen and bathrooms. The property includes a garden with a covered patio area. While the listed price per square foot is below the area average, nearby properties suggest the price may be high.
Therefore, we give this property 6 / 10. *Disclaimer: This is our option and does constitute a recommendation or financial advice. Do your own research. *
- Price
- 6
- Condition
- 8
- Location
- 7
- Land
- 6
- Bedrooms
- 3
- Bathrooms
- 1
- Sqft (est)
- 1,600.60
The heatmap indicates the level of crime in the area. The color of the heatmap indicates the crime severity and recency.
Metrics Year-on-Year
- Average area value
- 265,071.00 £Decreased by 34.02 %
- Est sale value
- 680,255.00 £Increased by 48.60 %
- Average area rental value
- 1,344.00 £/moDecreased by 2.33 %
- Est letting value
- 3,201.20 £/mo
- Est rental Yield
- 6.08 %Increased by 47.93 %
- Crime Rate
- 2.00 %Unchanged by 0.00 %
Agent Activity
Moxy Property Consultants created the listing.
Nearby Schools
| Name | Type | Ofsted | Distance |
|---|---|---|---|
| St Andrew'S School (Rochester) | Other Independent School | 0.42 KM | |
| King'S School, Rochester | Other Independent School | 0.85 KM | |
| St Margaret'S At Troy Town Children'S Centre | Children's Centre | 0.94 KM | |
| St Margaret'S At Troy Town Cofe Voluntary Controlled Primary School | Academy Converter | 0.94 KM | |
| St William Of Perth Roman Catholic Primary School | Voluntary Aided School | Good | 1.01 KM |
Images
Nearby Streets
| Name | Average Price | Average Sqft | Distance |
|---|---|---|---|
| St. Margaret's Street | £ 740,000 | 0 | 0.00 KM |
| Hooper's Place | £ 0 | 0 | 0.00 KM |
| Isaac Blake Place | £ 0 | 0 | 0.00 KM |
| Castle Hill Court | £ 0 | 0 | 0.00 KM |
| Deanery Gate | £ 0 | 0 | 0.00 KM |
Nearby Transport
| Name | NLC | TLC | Distance |
|---|---|---|---|
| Rochester | 5203 | RTR | 1.58 KM |
| Strood (Kent) | 5191 | SOO | 1.61 KM |
| Chatham | 5199 | CTM | 2.76 KM |
| Cuxton | 5201 | CUX | 3.95 KM |
| Higham | 5202 | HGM | 5.91 KM |
Nearby Listings
| Address | Price | Type | Score | Distance |
|---|---|---|---|---|
| Tupman Close, Rochester, Kent. ME1 | £ 375,000 | BUY | 6 / 10 | 0.00 KM |
| Valetta Way, Rochester, Kent, ME1 | £ 180,000 | BUY | 5 / 10 | 0.04 KM |
| Valetta Way, Rochester, Kent | £ 139,000 | BUY | Unknown | 0.04 KM |
| Valetta Way, Rochester, Kent | £ 210,000 | BUY | Unknown | 0.04 KM |
| Valetta Way, The Esplanade, Rochester, Kent | £ 210,000 | BUY | 4 / 10 | 0.04 KM |
Nearby Properties
| Address | Price | Distance |
|---|---|---|
| 92 St Margarets Street | £ 850,000 | 0.14 KM |
| 79 St Margarets Street | £ 250,000 | 0.14 KM |
| 83 St Margarets Street | £ 202,500 | 0.14 KM |
| 11 Oliver Twist Close | £ 265,000 | 0.17 KM |
| 4 Oliver Twist Close | £ 175,000 | 0.17 KM |