Oakleigh Road North, London
By Barnard Marcus
£ 700,000
Reviews
3 out of 5 stars
Barnard Marcus says ..
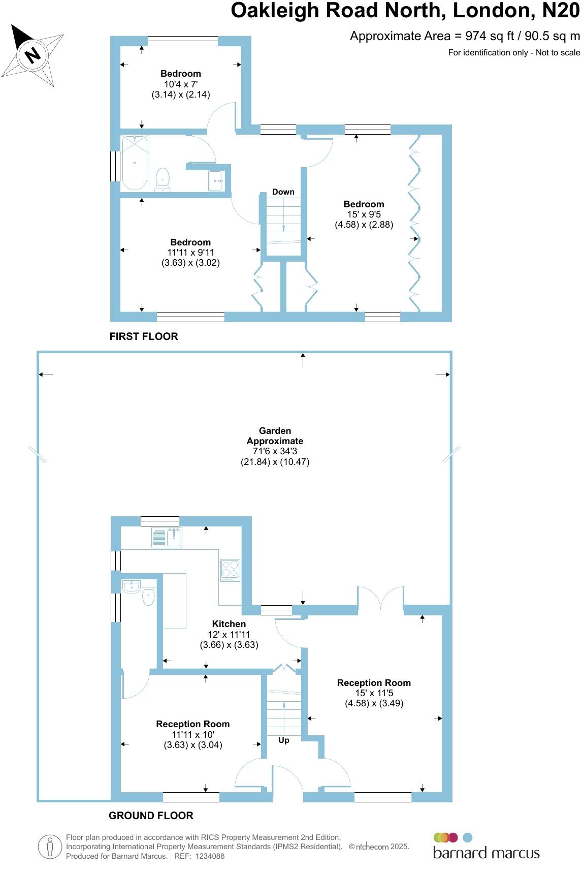
Charming 3-Bedroom Family Home in a Prime Location. Discover this delightful 3-bedroom semi-detached home, perfectly situated just 0.7 miles from both Totteridge & Whetstone Tube Station and Oakleigh Park Train Station-ideal for commuters heading to Central London.
Property Oracle says ..
This three-bedroom property located on Oakleigh Road North in Barnet, London, presents a mixed bag of features. The location is undoubtedly a strength, being exceptionally close to a number of well-regarded primary and secondary schools, all with good or outstanding Ofsted ratings. This makes it particularly attractive to families. The proximity to several train stations on the Great Northern line offers good commuting links to central London and beyond. The property itself offers three bedrooms, a bathroom and a garden, adding to its family appeal. However, the photos reveal that the property would benefit from modernisation. Both the kitchen and bathrooms appear dated and would likely need updating. The interior decor and furnishings also look somewhat dated throughout the house. While the list price is reasonable given the London location and the desirable features the property has, the absence of clear comparative data makes it difficult to comment decisively on the value for money. A full survey would be essential prior to purchase to assess any hidden issues or to determine the full costs for needed repairs. Overall, the property represents a solid investment opportunity, but prospective buyers should factor in costs for refurbishment to bring it up to a contemporary standard.
Therefore, we give this property 7 / 10. *Disclaimer: This is our option and does constitute a recommendation or financial advice. Do your own research. *
- Price
- 7
- Condition
- 6
- Location
- 8
- Land
- 7
- Bedrooms
- 3
- Bathrooms
- 1
- Sqft (est)
- 974.13
The heatmap indicates the level of crime in the area. The color of the heatmap indicates the crime severity and recency.
Metrics Year-on-Year
- Average area value
- 1,302,500.00 £Increased by 43.07 %
- Est sale value
- 526,030.20 £Decreased by 5.10 %
- Average area rental value
- 2,439.00 £/moIncreased by 4.59 %
- Est letting value
- 974.13 £/moUnchanged by 0.00 %
- Est rental Yield
- 2.25 %Decreased by 26.71 %
- Crime Rate
- 4.00 %Unchanged by 0.00 %
Agent Activity
Barnard Marcus created the listing.
Nearby Schools
| Name | Type | Ofsted | Distance |
|---|---|---|---|
| Sacred Heart Roman Catholic Primary School | Voluntary Aided School | Good | 0.20 KM |
| All Saints' Cofe Primary School N20 | Voluntary Aided School | Good | 0.42 KM |
| Queenswell Infant & Nursery School | Community School | Good | 0.70 KM |
| Queenswell Junior School | Community School | Good | 0.70 KM |
| Oakleigh School & Acorn Assessment Centre | Community Special School | Outstanding | 0.71 KM |
Images
Nearby Streets
| Name | Average Price | Average Sqft | Distance |
|---|---|---|---|
| Church Close | £ 0 | 0 | 0.00 KM |
| Lawrence Campe Close | £ 0 | 0 | 0.00 KM |
| Oakleigh Road North | £ 485,000 | 0 | 0.00 KM |
| St Ninian's Court | £ 302,500 | 0 | 0.00 KM |
| Leadbeaters Close | £ 0 | 0 | 0.00 KM |
Nearby Transport
| Name | NLC | TLC | Distance |
|---|---|---|---|
| Oakleigh Park | 6020 | OKL | 1.02 KM |
| New Barnet | 6018 | NBA | 2.42 KM |
| New Southgate | 6019 | NSG | 2.83 KM |
| Hadley Wood | 6075 | HDW | 4.63 KM |
| Bowes Park | 6027 | BOP | 5.37 KM |
Nearby Listings
| Address | Price | Type | Score | Distance |
|---|---|---|---|---|
| Oakleigh Road North, London | £ 700,000 | BUY | 7 / 10 | 0.00 KM |
| Russell Road, London | £ 597,500 | BUY | 6 / 10 | 0.06 KM |
| Russell Road, London | £ 570,000 | BUY | 6 / 10 | 0.06 KM |
| Russell Road, London | £ 800,000 | BUY | 7 / 10 | 0.12 KM |
| 4 Russell Road, Whetstone, London, N20 0TS | £ 475,000 | BUY | 6 / 10 | 0.12 KM |
Nearby Properties
| Address | Price | Distance |
|---|---|---|
| 6 Hobart Close | £ 268,000 | 0.11 KM |
| 4 Hobart Close | £ 370,000 | 0.11 KM |
| 9 Hobart Close | £ 383,500 | 0.11 KM |
| 3 Hobart Close | £ 213,500 | 0.11 KM |
| 156 Oakleigh Road North | £ 850,000 | 0.14 KM |