Langton Road, West Molesey, KT8
By Tudor & Co
£ 725,000
Reviews
2 out of 5 stars
Tudor & Co says ..
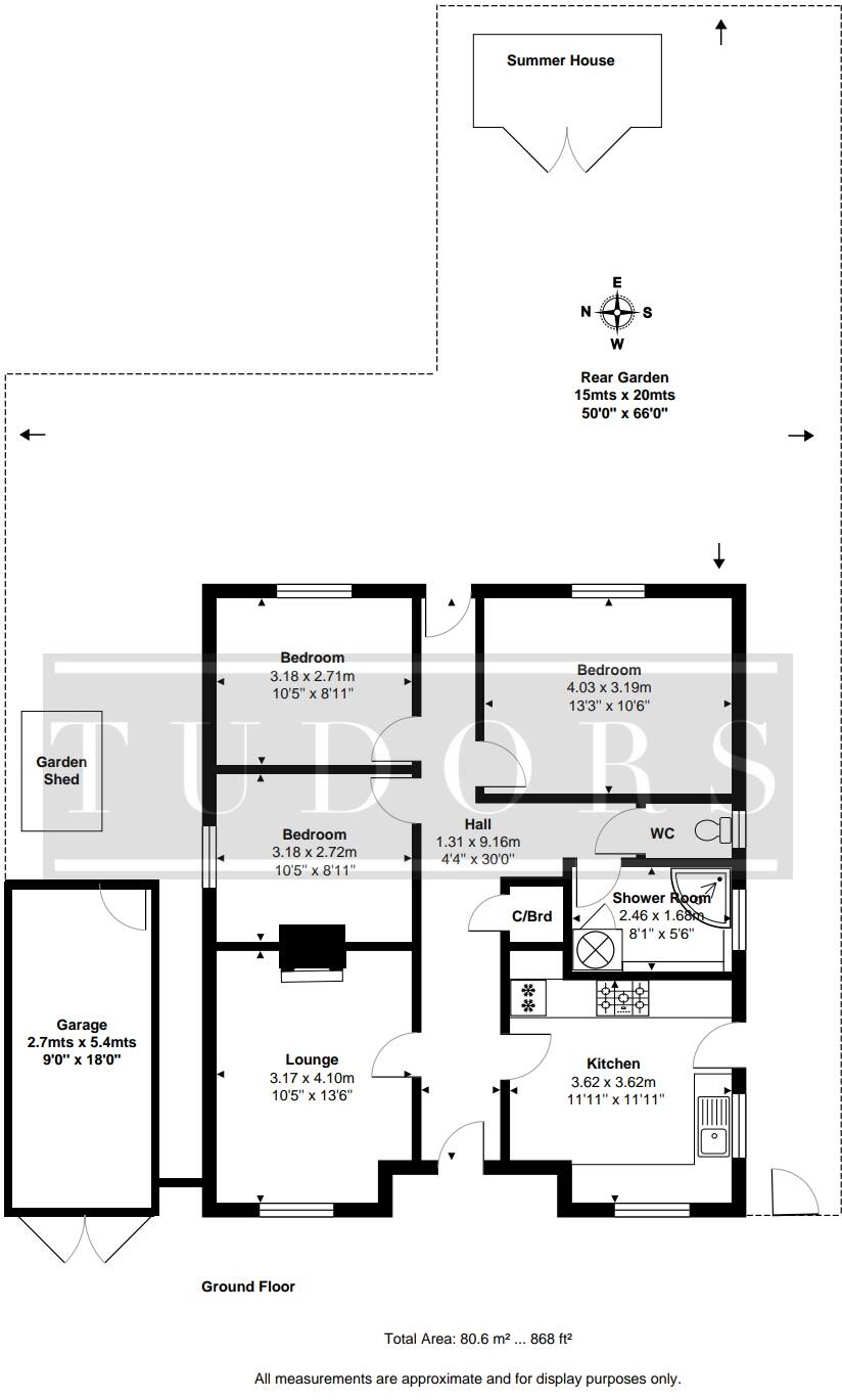
TUDORS are pleased to offer for sale this rare opportunity to acquire this double fronted three bedroom detached bungalow which is set on the cusp of the East Molesey borders in the favourable cul-de-sac of Langton Road. Offered to the market with NO ONWARD CHAIN the property has been updated ...
Property Oracle says ..
This three-bedroom detached bungalow in West Molesey, Surrey, presents a mixed bag. The location is attractive, offering proximity to well-regarded primary schools and reasonably convenient access to transport links. The property itself is habitable but requires some updating and modernisation. While the kitchen seems functional, other areas showcase signs of wear and tear. The garden, though present, is relatively small and needs attention. The list price of £725,000 seems generally appropriate for the area, although a more definitive price assessment would be possible with more detailed information on plot sizes and a complete picture of comparable properties sold recently. Potential buyers should be prepared for some renovation work to bring the property up to a higher standard. The lack of precise plot size information is a notable omission from the listing. Overall, the property represents an opportunity for someone willing to undertake some renovation work.
Therefore, we give this property 5 / 10. *Disclaimer: This is our option and does constitute a recommendation or financial advice. Do your own research. *
- Price
- 7
- Condition
- 5
- Location
- 7
- Land
- 4
- Bedrooms
- 3
- Bathrooms
- 1
- Sqft (est)
- 867.57
The heatmap indicates the level of crime in the area. The color of the heatmap indicates the crime severity and recency.
Metrics Year-on-Year
- Average area value
- 736,658.00 £Decreased by 7.15 %
- Est sale value
- 628,120.68 £Increased by 11.56 %
- Average area rental value
- 2,100.00 £/moDecreased by 8.93 %
- Est letting value
- 1,735.14 £/moIncreased by 100.00 %
- Est rental Yield
- 3.42 %Decreased by 2.01 %
- Crime Rate
- 16.00 %Unchanged by 0.00 %
Agent Activity
Tudor & Co marked this listing as sold.
Tudor & Co created the listing.
Nearby Schools
| Name | Type | Ofsted | Distance |
|---|---|---|---|
| St Alban'S Catholic Primary School | Academy Converter | Good | 0.16 KM |
| St Lawrence Cofe Aided Junior School, East Molesey | Voluntary Aided School | Good | 0.82 KM |
| Chandlers Field Primary School | Foundation School | Good | 0.97 KM |
| Three Rivers Sure Start Children'S Centre | Children's Centre | 1.16 KM | |
| The Orchard Infant School | Foundation School | Outstanding | 1.36 KM |
Images
Nearby Streets
| Name | Average Price | Average Sqft | Distance |
|---|---|---|---|
| Parabola Court | £ 0 | 0 | 0.00 KM |
| Kent Road | £ 1,166,650 | 0 | 0.00 KM |
| The Fairway | £ 536,667 | 0 | 0.00 KM |
| Park Way | £ 890,000 | 0 | 0.00 KM |
| Manor Road | £ 1,525,000 | 0 | 0.00 KM |
Nearby Transport
| Name | NLC | TLC | Distance |
|---|---|---|---|
| Hampton Court | 5561 | HMC | 2.09 KM |
| Hampton | 5560 | HMP | 2.11 KM |
| Esher | 5558 | ESH | 2.43 KM |
| Thames Ditton | 5610 | THD | 2.76 KM |
| Hinchley Wood | 5591 | HYW | 3.63 KM |
Nearby Listings
| Address | Price | Type | Score | Distance |
|---|---|---|---|---|
| Langton Road, West Molesey, KT8 | £ 725,000 | BUY | 5 / 10 | 0.00 KM |
| Langton Road, West Molesey | £ 825,000 | BUY | Unknown | 0.05 KM |
| Spring Gardens, West Molesey, KT8 | £ 515,000 | BUY | 7 / 10 | 0.11 KM |
| Spring Gardens, West Molesey | £ 549,950 | BUY | 8 / 10 | 0.11 KM |
| Hidden Close, West Molesey, KT8 | £ 375,000 | BUY | Unknown | 0.12 KM |
Nearby Properties
| Address | Price | Distance |
|---|---|---|
| 30 Langton Road | £ 420,000 | 0.01 KM |
| 53 Langton Road | £ 699,950 | 0.01 KM |
| 26 Langton Road | £ 850,000 | 0.01 KM |
| 60 Langton Road | £ 1,070,000 | 0.01 KM |
| 57 Langton Road | £ 730,000 | 0.01 KM |