Ridgeway Green, High Bickington, Umberleigh
By Stags
£ 169,950
Reviews
3 out of 5 stars
Stags says ..
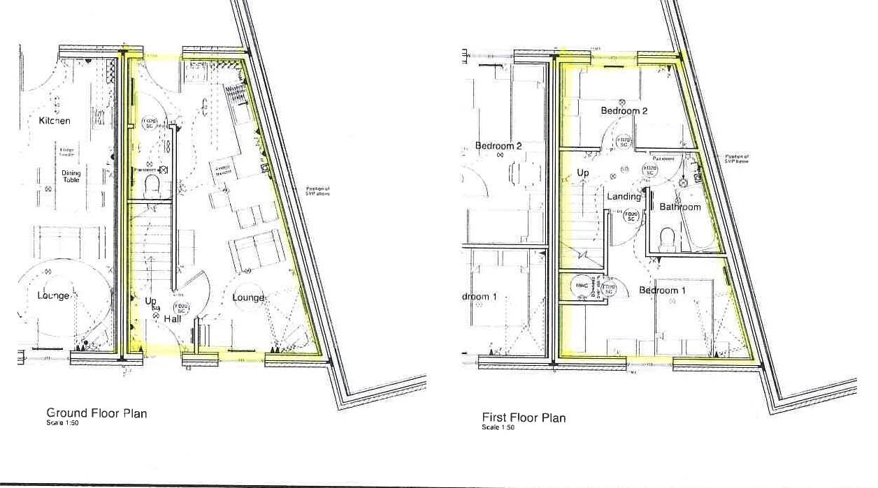
Investment Opportunity. A modern mid terraced house subject to an affordable housing scheme and local occupancy restriction. Entrance Hall, Open plan Living/Dining/Kitchen, Cloakroom WC, 2 Bedrooms, Bathroom, Enclosed Garden area, Communal Parking. EPC band TBC.
Property Oracle says ..
This property is a two bedroom terraced house located in High Bickington, Devon. The property is relatively new and appears to be in good condition based on the provided images. While the plot size is listed as 0.00 sqft, there is some small green space visible in the exterior photos. The location benefits from being close to a primary school (High Bickington Church Of England Primary Academy) and is within a reasonable distance to other amenities, though this requires further investigation. The list price of £169,950 is significantly lower than the average house price in the area (£323,405), and the average price per sqft (£200) is also considerably higher than what one might expect for a property of this size and type in this location. More information on the property size and plot size would be beneficial to provide a more comprehensive analysis of the price.
Therefore, we give this property 6 / 10. *Disclaimer: This is our option and does constitute a recommendation or financial advice. Do your own research. *
- Price
- 8
- Condition
- 9
- Location
- 7
- Land
- 3
- Bedrooms
- 2
- Bathrooms
- 1
- Sqft (est)
- 610.00
The heatmap indicates the level of crime in the area. The color of the heatmap indicates the crime severity and recency.
Metrics Year-on-Year
- Average area value
- 445,667.00 £Increased by 22.12 %
- Est sale value
- 186,660.00 £Increased by 11.27 %
- Average area rental value
- 1,100.00 £/moIncreased by 37.50 %
- Est letting value
- 0.00 £/mo
- Est rental Yield
- 2.96 %Increased by 12.55 %
- Crime Rate
- 73.00 %Unchanged by 0.00 %
Agent Activity
Stags created the listing.
Nearby Schools
| Name | Type | Ofsted | Distance |
|---|---|---|---|
| High Bickington Church Of England Primary Academy | Academy Converter | Good | 0.34 KM |
| Umberleigh Primary Academy | Academy Converter | Good | 3.86 KM |
| Chittlehampton Church Of England Primary School | Voluntary Aided School | Good | 7.43 KM |
| Beaford Community Primary & Nursery School | Community School | Outstanding | 8.98 KM |
| Dolton Church Of England Primary School | Academy Converter | 9.52 KM |
Images
Nearby Streets
| Name | Average Price | Average Sqft | Distance |
|---|---|---|---|
| Cross Park | £ 0 | 0 | 0.00 KM |
| Pound Lane | £ 0 | 0 | 0.00 KM |
Nearby Transport
| Name | NLC | TLC | Distance |
|---|---|---|---|
| Umberleigh | 5826 | UMB | 3.67 KM |
| Portsmouth Arms | 5829 | PMA | 4.80 KM |
| Chapelton (Devon) | 5820 | CPN | 6.67 KM |
Nearby Listings
| Address | Price | Type | Score | Distance |
|---|---|---|---|---|
| Ridgeway Green, High Bickington, Umberleigh | £ 169,950 | BUY | 6 / 10 | 0.00 KM |
| Ridgeway Green, High Bickington, Umberleigh, Devon, EX37 | £ 289,950 | BUY | 7 / 10 | 0.00 KM |
| High Bickington, Umberleigh | £ 289,950 | BUY | 7 / 10 | 0.01 KM |
| Cole Meadow, High Bickington, Umberleigh, North Devon, EX37 | £ 275,000 | BUY | Unknown | 0.09 KM |
| High Bickington, Umberleigh, Devon, EX37 | £ 525,000 | BUY | 7 / 10 | 0.13 KM |
Nearby Properties
| Address | Price | Distance |
|---|---|---|
| 3 Ridgeway Green | £ 215,000 | 0.01 KM |
| 1 Poplar Terrace | £ 52,000 | 0.21 KM |
| Carries Cottage | £ 190,000 | 0.27 KM |
| Shepherds Cottage | £ 178,000 | 0.27 KM |
| Kingsdown Cottage | £ 405,000 | 0.27 KM |