Connaught Close, Shirley, B90
MC

Connaught Close, Shirley, B90

By McCarthy Stone

£ 157,500

Reviews

3 out of 5 stars

McCarthy Stone says ..

Light-filled and thoughtfully finished with contemporary design and elegant fixtures throughout, Apartment 57 is a beautiful apartment with access to communal features including a sociable lounge and large landscaped gardens with seating.

Property Oracle says ..

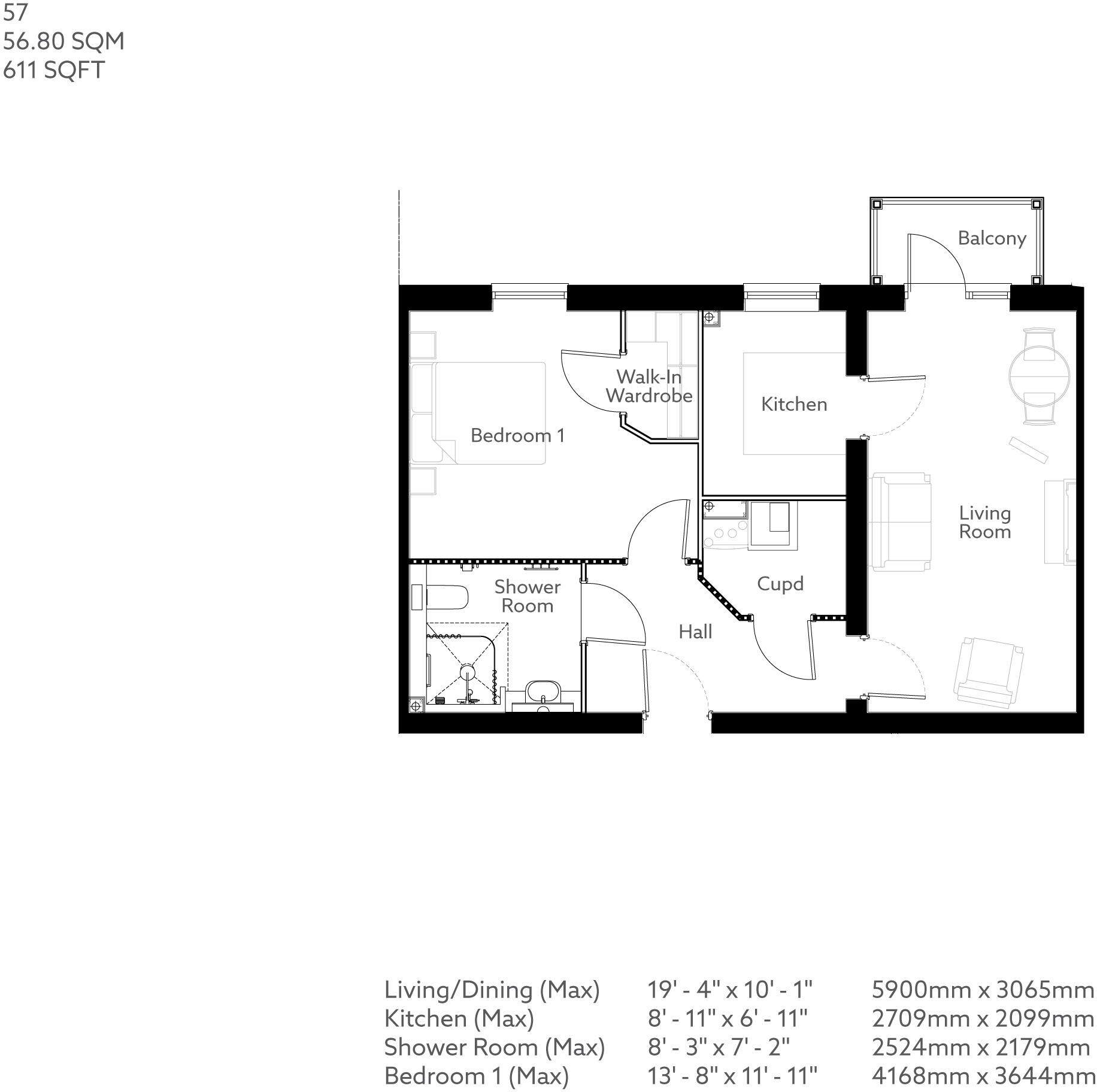
This is a one-bedroom retirement property located in Shirley, Solihull. The apartment is part of a McCarthy Stone development and benefits from communal facilities such as gardens, a rooftop terrace, a gym, a lounge, and a dining room. The property itself appears to be in excellent condition, with modern fixtures and fittings. While the apartment is relatively small at 301.92 sqft, the communal facilities provide additional space and amenities for residents. The price of £157,500 is below the average price per square foot for the area, but is in line with similar retirement properties in the development. The location is generally desirable, with good access to amenities and transport links, although the property is situated on a busy road. Overall, this property would likely suit a single person looking for a well-maintained retirement apartment with access to communal facilities in a convenient location.

Therefore, we give this property 7 / 10. *Disclaimer: This is our option and does constitute a recommendation or financial advice. Do your own research. *

Price
7
Condition
9
Location
7
Land
6
Bedrooms
1
Bathrooms
0
Sqft (est)
301.92

The heatmap indicates the level of crime in the area. The color of the heatmap indicates the crime severity and recency.

Metrics Year-on-Year

Average area value
543,800.00 £
Increased by 17.00 %
from 464,776.00 £
Est sale value
162,131.04 £
Increased by 32.27 %
from 122,579.52 £
Average area rental value
1,669.00 £/mo
Decreased by 26.99 %
from 2,286.00 £/mo
Est letting value
301.92 £/mo
Decreased by 50.00 %
from 603.84 £/mo
Est rental Yield
3.68 %
Decreased by 37.63 %
from 5.90 %
Crime Rate
11.00 %
Unchanged by 0.00 %
from 11.00 %

Agent Activity

  • McCarthy Stone created the listing.

Nearby Schools

NameTypeOfstedDistance
Our Lady Of The Wayside Catholic Primary SchoolAcademy Converter0.40 KM
Shirley Heath Junior SchoolCommunity SchoolOutstanding0.83 KM
Shirley Heath Children'S Centre (Shirley South)Children's Centre0.93 KM
Woodlands Infant SchoolCommunity SchoolRequires improvement1.19 KM
Solihull Alternative Provision AcademyFree Schools Alternative Provision1.25 KM

Images

Wheatley Place, Shirley Wheatley Place, Shirley - Patio Wheatley Place, Shirley - Patio Wheatley Place, Shirley - Roof Terrace Wheatley Place, Shirley - Roof Terrace Wheatley Place, Shirley - Roof Terrace Wheatley Place, Shirley - Exercise Studio Domestic support and personal care available Wheatley Place, Shirley - Living Room Wheatley Place, Shirley - Kitchen Wheatley Place, Shirley - Shower Room Domestic support and personal care available Wheatley Place, Shirley - Bedroom Wheatley Place, Shirley - Bedroom Wheatley Place, Shirley - Bedroom Wheatley Place, Shirley - Homeowners Lounge Wheatley Place, Shirley - Bistro Wheatley Place, Shirley - Bistro

Nearby Streets

NameAverage PriceAverage SqftDistance
Marshall Lake Road £ 437,50000.00 KM
Featherstone Road £ 365,00000.00 KM
Kings Road £ 000.00 KM
Joseph Crescent £ 456,84700.00 KM
Kings Road £ 116,00000.00 KM

Nearby Transport

NameNLCTLCDistance
Shirley4526SRL3.17 KM
Whitlocks End4539WTE3.80 KM
Solihull4527SOL3.80 KM
Widney Manor4528WMR4.76 KM
Olton4533OLT4.94 KM

Nearby Listings

AddressPriceTypeScoreDistance
Connaught Close, Shirley, B90 £ 210,000BUY7 / 100.00 KM
Connaught Close, Shirley, B90 £ 221,250BUY6 / 100.00 KM
Connaught Close, Shirley, B90 £ 157,500BUY7 / 100.00 KM
Connaught Close, Shirley, B90 £ 309,950BUYUnknown0.00 KM
Connaught Close, Shirley, B90 £ 309,995BUY6 / 100.00 KM

Nearby Properties

AddressPriceDistance
695 Stratford Road £ 337,0000.10 KM
693 Stratford Road £ 245,0000.10 KM
697 Stratford Road £ 170,0000.10 KM
691 Stratford Road £ 335,0000.10 KM
87 Swallows Meadow £ 200,0000.19 KM