St. Peters Square, Ruthin
By Cavendish Residential
£ 235,000
Reviews
3 out of 5 stars
Cavendish Residential says ..
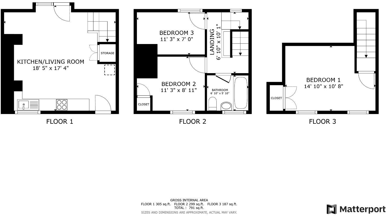
AN ATTRACTIVE THREE STOREY, THREE BEDROOM MID-TERRACED TOWNHOUSE with parking and very extensive gardens to rear with patio, central lawn, modern timber framed cabin providing an ideal home office and fine views across Ruthin towards the Clwydian Hills, located in a quiet and secluded backwater j...
Property Oracle says ..
This property is a 3-bedroom, 1-bathroom terraced house located in St. Peters Square, Ruthin, Denbighshire. The property benefits from a good-sized garden, as shown in the provided images. The interior shows a blend of traditional and modern features, with exposed beams and updated kitchen appliances. The location is close to several primary and secondary schools, making it potentially attractive to families. However, the average house price in the area is significantly higher than the list price of this property. The property appears to be in good condition and well-maintained.
Therefore, we give this property 7 / 10. *Disclaimer: This is our option and does constitute a recommendation or financial advice. Do your own research. *
- Price
- 6
- Condition
- 8
- Location
- 7
- Land
- 7
- Bedrooms
- 3
- Bathrooms
- 1
- Sqft (est)
- 791.00
The heatmap indicates the level of crime in the area. The color of the heatmap indicates the crime severity and recency.
Metrics Year-on-Year
- Average area value
- 326,418.00 £Decreased by 0.78 %
- Est sale value
- 264,194.00 £Increased by 1.52 %
- Average area rental value
- 1,459.00 £/moIncreased by 29.46 %
- Est letting value
- 791.00 £/moUnchanged by 0.00 %
- Est rental Yield
- 5.36 %Increased by 30.41 %
- Crime Rate
- 96.00 %Unchanged by 0.00 %
Agent Activity
Cavendish Residential created the listing.
Nearby Schools
| Name | Type | Ofsted | Distance |
|---|---|---|---|
| Ysgol Pen Barras | Welsh Establishment | 0.74 KM | |
| Borthyn V.C. Primary School | Welsh Establishment | 0.84 KM | |
| Rhos Street C.P. School | Welsh Establishment | 0.86 KM | |
| Ruthin School | Welsh Establishment | 1.23 KM | |
| Ysgol Brynhyfryd | Welsh Establishment | 1.45 KM |
Images
Nearby Streets
| Name | Average Price | Average Sqft | Distance |
|---|---|---|---|
| Castle Street | £ 425,000 | 0 | 0.00 KM |
| Ffordd yr Ysgol | £ 0 | 0 | 0.00 KM |
| Hen Lôn Parcwr | £ 0 | 0 | 0.00 KM |
| Tan-y-Castell | £ 0 | 0 | 0.00 KM |
| Cwrt-Y-Crydd | £ 0 | 0 | 0.00 KM |
Nearby Listings
| Address | Price | Type | Score | Distance |
|---|---|---|---|---|
| St. Peters Square, Ruthin | £ 235,000 | BUY | 7 / 10 | 0.00 KM |
| Castle Street, Ruthin | £ 95,000 | BUY | 5 / 10 | 0.09 KM |
| Castle Street, Ruthin | £ 240,000 | BUY | Unknown | 0.09 KM |
| Upper Clwyd Street, Ruthin | £ 675,000 | BUY | 7 / 10 | 0.11 KM |
| Min Yr Afon, Ruthin | £ 300,000 | BUY | 5 / 10 | 0.12 KM |
Nearby Properties
| Address | Price | Distance |
|---|---|---|
| Saddlers Cottage | £ 145,000 | 0.03 KM |
| Old Stables | £ 185,000 | 0.03 KM |
| The Ingle | £ 150,000 | 0.03 KM |
| 8a Upper Clwyd Street | £ 22,000 | 0.10 KM |
| 5a Upper Clwyd Street | £ 110,000 | 0.10 KM |