Bute Gardens, Wallington
CR

Bute Gardens, Wallington

By Cromwells Estate Agents

£ 779,950

Reviews

3 out of 5 stars

Cromwells Estate Agents says ..

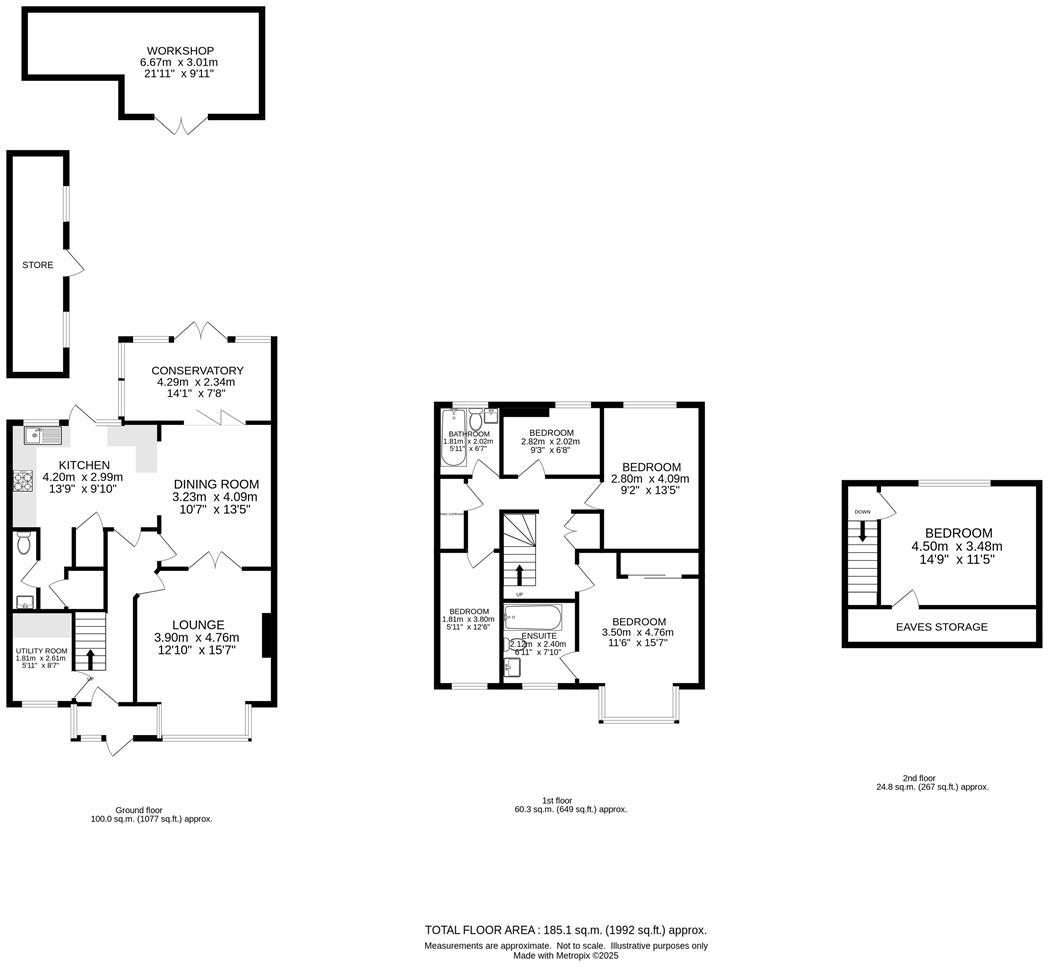
Cromwells Wallington are pleased to offer this superbly presented five bedroom extended semi detached home, situated in a highly sought after road in Wallington, and close to the high street, a wide range of shops, transport links and local parks. It is also ideally located for those looking for ...

Property Oracle says ..

Therefore, we give this property 7 / 10. *Disclaimer: This is our option and does constitute a recommendation or financial advice. Do your own research. *

Price
8
Condition
7
Location
8
Land
7
Bedrooms
5
Bathrooms
2
Sqft (est)
1,437.95

The heatmap indicates the level of crime in the area. The color of the heatmap indicates the crime severity and recency.

Metrics Year-on-Year

Average area value
445,000.00 £
Increased by 0.47 %
from 442,905.00 £
Est sale value
997,937.30 £
Increased by 15.09 %
from 867,083.85 £
Average area rental value
1,592.00 £/mo
Decreased by 5.91 %
from 1,692.00 £/mo
Est letting value
2,875.90 £/mo
Unchanged by 0.00 %
from 2,875.90 £/mo
Est rental Yield
4.29 %
Decreased by 6.33 %
from 4.58 %
Crime Rate
5.00 %
Unchanged by 0.00 %
from 5.00 %

Agent Activity

  • Cromwells Estate Agents created the listing.

Nearby Schools

NameTypeOfstedDistance
Bandon Hill Primary SchoolAcademy Converter0.61 KM
Beddington Infants' SchoolFoundation SchoolGood0.79 KM
Holy Trinity Cofe Junior SchoolVoluntary Aided SchoolGood0.79 KM
Foresters Primary SchoolFoundation SchoolGood1.02 KM
Sherwood Park SchoolFoundation Special SchoolGood1.06 KM

Images

IMG_0157 (1).jpg 00e9ebfb-9f74-485b-a339-e46f051bb40a.jpg IMG_0127.jpg IMG_0176.jpg IMG_0152.jpg IMG_0118 (2).jpg ce75c84f-351c-4d4b-84b9-56532e556f83.jpg 6f96cb1c-daa9-46e2-933e-2148c30d822a.jpg IMG_0093.jpg IMG_0087.jpg IMG_0102.jpg IMG_0082.jpg 314f52fb-60f4-4e12-9936-85a44f8de55f.jpg 2777ae00-34a1-4678-a8fa-2c5396b76cd5.jpg IMG_0108.jpg IMG_0070.jpg IMG_0081.jpg IMG_0010.jpg IMG_0013.jpg IMG_0025 (2).jpg IMG_0033.jpg IMG_0028.jpg IMG_0039.jpg IMG_0067.jpg IMG_0049.jpg IMG_0046.jpg IMG_0005.jpg IMG_0164.jpg IMG_0166.jpg IMG_0169.jpg IMG_0173 (1).jpg 792783d5-d5e2-4253-8f86-e28209a3b8f8.jpg 02c8f776-ef88-46f3-b70f-a94fc99ba71c.jpg IMG_0160.jpg

Nearby Streets

NameAverage PriceAverage SqftDistance
Robin Court £ 000.00 KM
Spring Gardens £ 000.00 KM
Leigham Court £ 000.00 KM
Sandy Lane North £ 575,00000.00 KM
Mulberry Mews £ 394,50000.00 KM

Nearby Transport

NameNLCTLCDistance
Wallington5394WLT0.99 KM
Hackbridge5364HCB2.17 KM
Carshalton5405CSH2.77 KM
Waddon5392WDO2.80 KM
Carshalton Beeches5406CSB3.11 KM

Nearby Listings

AddressPriceTypeScoreDistance
Bute Gardens, Wallington £ 779,950BUY7 / 100.00 KM
Bute Gardens, Wallington £ 625,000BUY7 / 100.12 KM
Osmond Gardens, Wallington £ 700,000BUY8 / 100.14 KM
Osmond Gardens, Wallington £ 645,000BUYUnknown0.16 KM
Osmond Gardens, Wallington, Surrey £ 725,000BUY6 / 100.19 KM

Nearby Properties

AddressPriceDistance
36 Bute Gardens £ 415,0000.04 KM
50 Bute Gardens £ 129,0000.04 KM
52 Bute Gardens £ 295,0000.04 KM
30 Bute Gardens £ 385,0000.04 KM
26 Bute Gardens £ 583,0000.04 KM