SA
Cotleigh, Honiton, Devon, EX14
By Savills Rural Sales
£ 2,175,000
Reviews
3 out of 5 stars
Savills Rural Sales says ..
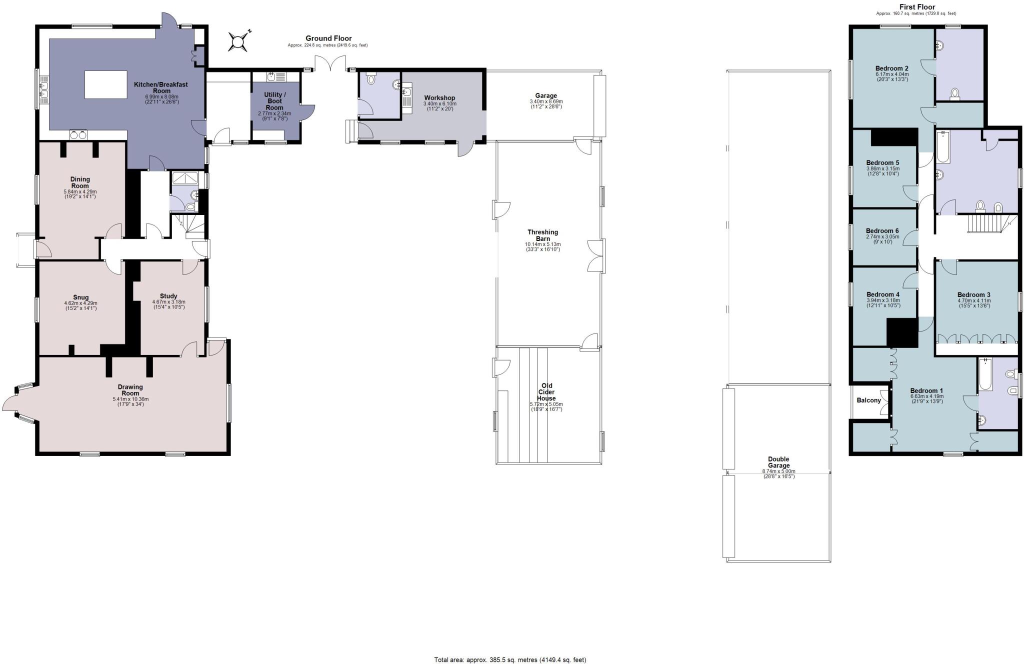
Lot 1 - Pitfield Farm. A productive farm in a favoured, East Devon location with high amenity and recreational appeal.
Property Oracle says ..
Therefore, we give this property 7 / 10. *Disclaimer: This is our option and does constitute a recommendation or financial advice. Do your own research. *
- Price
- 6
- Condition
- 7
- Location
- 7
- Land
- 9
- Bedrooms
- 0
- Bathrooms
- 0
- Sqft (est)
- 4,936.00
The heatmap indicates the level of crime in the area. The color of the heatmap indicates the crime severity and recency.
Metrics Year-on-Year
- Average area value
- 285,000.00 £Decreased by 22.84 %
- Est sale value
- 1,465,992.00 £Decreased by 4.81 %
- Average area rental value
- 1,300.00 £/moDecreased by 22.39 %
- Est letting value
- 4,936.00 £/moUnchanged by 0.00 %
- Est rental Yield
- 5.47 %Increased by 0.55 %
- Crime Rate
- 0.00 %
from 369,362.00 £
from 1,540,032.00 £
from 1,675.00 £/mo
from 4,936.00 £/mo
from 5.44 %
from 0.00 %
Agent Activity
Savills Rural Sales created the listing.
Nearby Schools
| Name | Type | Ofsted | Distance |
|---|---|---|---|
| Offwell Church Of England Primary School | Voluntary Controlled School | Good | 4.83 KM |
| Stockland Church Of England Primary Academy | Academy Converter | Requires improvement | 4.85 KM |
| Upottery Primary School | Community School | Good | 5.55 KM |
| Shute Community Primary School | Community School | Good | 7.83 KM |
| Honiton Primary School | Community School | Requires improvement | 8.56 KM |
Images
Nearby Streets
| Name | Average Price | Average Sqft | Distance |
|---|---|---|---|
| Stockland Hill | £ 0 | 0 | 0.00 KM |
| Post Lane | £ 0 | 0 | 0.00 KM |
| Hayne Lane | £ 1,395,000 | 0 | 0.00 KM |
Nearby Transport
| Name | NLC | TLC | Distance |
|---|---|---|---|
| Honiton | 5717 | HON | 8.60 KM |
Nearby Listings
| Address | Price | Type | Score | Distance |
|---|---|---|---|---|
| Cotleigh, Honiton, Devon, EX14 | £ 2,175,000 | BUY | 7 / 10 | 0.00 KM |
| Cotleigh, Honiton, Devon, EX14 | £ 2,950,000 | BUY | 7 / 10 | 0.00 KM |
| Cotleigh, Honiton, Devon, EX14 | £ 450,000 | BUY | 7 / 10 | 0.00 KM |
| Cotleigh, Honiton, Devon, EX14 | £ 325,000 | BUY | 6 / 10 | 0.00 KM |
| Cotleigh, Honiton | £ 35,000 | BUY | 7 / 10 | 0.54 KM |
Nearby Properties
| Address | Price | Distance |
|---|---|---|
| Post Farm | £ 401,000 | 1.76 KM |
| Lower Bucehayes | £ 385,000 | 1.76 KM |
| Shortmoor House | £ 690,000 | 1.89 KM |
| Hill Cross | £ 495,000 | 1.89 KM |